【黄浦乔家路项目】曝光最新设计方案!规划约150米超高层及别墅
上海搜狐焦点 2024-01-21 17:29:02
用手机看
扫描到手机,新闻随时看
扫一扫,用手机看文章
更加方便分享给朋友
黄浦乔家路项目,254地块,又曝光了新的设计方案。254地块位于蓬莱路与河南南路交叉口。
黄浦乔家路项目,254地块,又曝光了新的设计方案。254地块位于蓬莱路与河南南路交叉口。

从曝光的设计方案来看,项目限高150米,两版方案,方案一将打造全百米高层,方案二将打造超高层+低密产品。


先来看看方案一,根据方案一,项目将打造345套建面约99㎡户型及104套约200㎡户型,或358套建面约99㎡户型及86套250㎡户型。


而根据方案二,项目将打造340套建面约99㎡户型、82套建面约200㎡户型以及17套合院产品。

来看看设计方案里曝光的效果图:



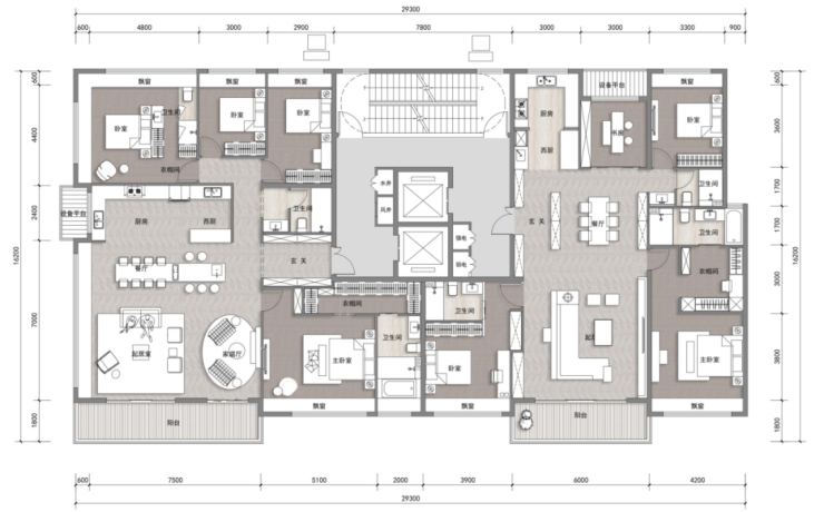
户型过程稿如下:
1梯2户,250㎡+200㎡组合:

设计方案户型过程稿仅供参考。
声明:本文由入驻焦点开放平台的作者撰写,除焦点官方账号外,观点仅代表作者本人,不代表焦点立场。


