看不看前滩尚峰名邸147平样板间实拍视频和照片,这里有哦!
扫描到手机,新闻随时看
扫一扫,用手机看文章
更加方便分享给朋友
已经是2019年7月的最后周末了,对于前滩迷来说,基本又是一个鸽子月过去吧?除了那最后几套依然叨叨叨的东方悦耀还在卖,说好的弘文华唐(华唐名邸)开放,又没戏了!
还有49地块、50地块、尚峰名邸,依然还是没声音!内心等待的焦躁却无法发泄?

如果真的按照之前前滩房房房粉丝们预期的节奏,东方悦耀卖完卖弘文华唐,弘文华唐卖完卖49地块,49地块卖完卖50地块,50地块卖完卖尚峰名邸?这个节奏估计2019年走不完!

上图来源:前滩毛哥
不过,我们先来大胆预测一下2019年最后这小半年前滩各个项目的可能进展把,嘻嘻!

“关于前滩各个项目进展,今天是2019年7月18日,我来做个预期:
2019年8月弘文华唐入市
2019年10月49地块(汇璟名庭-晶萃名邸)入市认筹
2019年10月50地块(江悦名庭-锦绣精品)入市认筹
尚峰名邸可能会在2020年了”
以上均为猜测,不准别怪我,准了是运气哦!一切最终以开发商公示为准!
好了好了,言归正传,依然是感谢魔都房房房前滩系列群的群友粉丝们分享,来,让大家看看吊足了N多人胃口的尚峰名邸项目的147平户型样板实地拍摄视频和照片!可以让尚峰粉们大饱眼福。特别哦!
▲尚峰名邸147平户型样板实拍视频
说是说样板实拍,其实应该是一间装修好了的尚峰名邸147平户型房源更准确,软装等内容都还没有布置,算不上真正的样板间吧,不过能看到也蛮好了!虽然现在尚峰名邸的临时售楼展示中心已经关门撤场,但是可以把期待的心重新唤醒来对吧!

下面是多张实拍的照片,还有部分车库和小区内实景哦:


















对了,之前很多人已经看过的尚峰名邸47平小户型现场实拍视频也有新版本了:
更多问题和更多希望得到的一手全新前滩资料,欢迎来魔都房房房的前滩群。和超过6700名前滩粉丝一起分享。
看完较新爆料,我们老生常谈,再回顾一下前滩几个目前最受关注的项目吧。
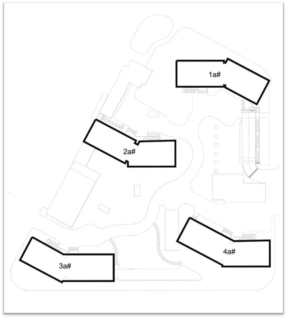
前滩尚峰名邸:
现在预期哈,九宫格有机会排名前列开的尚峰名邸很可能2019年内开不出来了,目前尚峰名邸展示中心都关门谢客了。最开始大家所预期的单价8.6万元左右,到真正启动时候会不会已经偏离太远?我们暂且猜测尚峰名邸会在2020年有机会入市吧。

尚峰名邸共56套193㎡户型,28套147㎡户型,150㎡45(毛坯)户型。户型图如下:
尚峰名邸45平,这个45平的跃层,跟海航(海悦华庭)那个不一样,这个45平据说层高在3.6-3.7米左右,是可以自己隔出来一层类似loft的部分作卧室。


一房所在楼栋1-2楼为挑高层,3楼开始为实际一房。
其中3-4楼为一种户型,5-13楼为一种户型,三梯十四户,共150套房子。
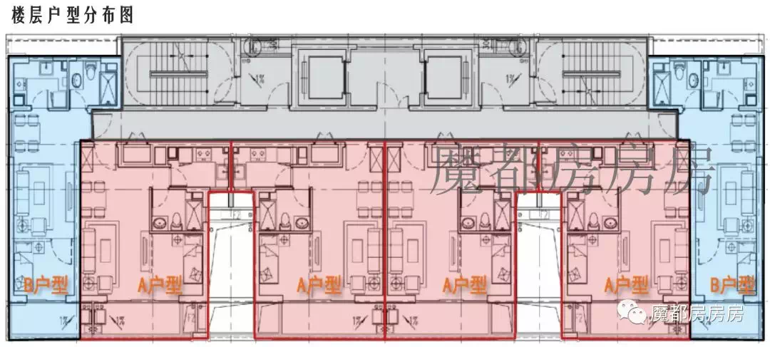
当然尚峰名邸更加引人关注的是147平和193平左右的大户型,下面是147平户型图:

147平的大三房分布在一个单元的楼栋,两梯两户,共14层,约28套房子。该户型是整个前滩比较少有的改善大户型,而且舒适度很高。户型方正,南北通厅,三开间朝南,户型的采光通风效果很好。主卧是飘窗卧房+衣帽间+带浴缸带飘窗主卫,舒适度颇高。其他的一些细节做的也很到位,比如入户玄关、U型厨房、观景阳台、大量飘窗等。
下面是193平户型图:

193平的大三房分布在两个单元的那栋楼,两梯两户,共约56套房源。该户型格局上和147平三房类似,除了尺度上加强,较大的特色是三套房设计(带独立卫生间)。
尚峰名邸更多的外景实拍、室内视频收实拍可以参考下列历史链接:
前滩硬核推送,东方悦耀样板/毛坯房视频全集,外加尚峰名邸
前滩华唐名邸(弘文华唐):
较新预期是8月可能会开放样板间和接待开售。但价格预期还是在10万+左右。

项目一共4栋高层组成,总户数在212套:

户型面积从115-273㎡ 2房-4房:

最终正式的户型图也出来了:






继续来点硬核的,看看4月份时候粉丝分享的华唐名邸(弘文华唐)总长达5分15秒室内房间拍摄视频,那种什么10秒版本的就算了!发车要坐稳啦,视频拍得有点打CS般的眩晕感!点击链接看:
11万单价?前滩弘文华唐突发将入市!特别5分15秒内部实拍视频!
前滩49地块项目(备案名:汇璟名庭)晶萃名邸:
这也是一个令人期待的前滩中小户型,提供306套建筑面积约95-143㎡ 2-3-4房户型。被众多房房房群友称为前滩众多奇葩楼盘中难得的好户型。价格预期应该和50-1地块住宅差不多,可能也是8.7-9万左右吧。目前预期可能10月份有机会入市。

49地块住宅的晶萃名邸(汇璟名庭)的终稿户型图(建筑面积):





49地块住宅的晶萃名邸(汇璟名庭)的网传室内效果图:






前滩50地块住宅项目(备案名:江悦名庭)锦绣精品:
*有4栋住宅楼宇,住宅建筑层数:19、21层。
*均为小面积的一房户型,建面56㎡的153套,建面61㎡的154套,建面63㎡的154套,总计房源为460套。
*预期在2021年5月交付。
*预期价格在8.75万元左右。目前预期可能10月份有机会入市。
另传言该项目的装修标准有可能超越前面几个前滩“鸽子笼项目”的水准。






详细的PDF文档会在魔都房房房的14个前滩粉丝群发放
特别注意:以上信息均为粉丝爆料,最终发布状态以开发商公示为准!

上图来源:前滩毛哥。需要清晰大图,加微信号modululu

上图是某号6月预测的前滩2019年后续新盘进度,排名前列个弘文华唐已经被鸽,后续项目是否会顺延不得而知,如果时间轴都往后推后1个月或者更长时间呢?
至于前滩的其他几个项目,也就简单说一下,三湘、格力、前滩10地块、前滩21地块等,都是2019年无望入市,较快也是等来年了。具体可以参考下列历史链接:
2019年6月了,前滩新盘还在静悄悄吗?!


免责声明:
1.本文转载自: 魔都房房房
2.凡注明转载来源的文章,均为其他媒体或平台的作品,均为转载,转载目的在于传递更多信息,并不代表本平台赞同其观点和对其真实性负责,本平台不承担任何法律责任。
3.如有侵权,请及时告知删除。或者联系搜狐焦点上海站版权部:021-23081573
声明:本文由入驻焦点开放平台的作者撰写,除焦点官方账号外,观点仅代表作者本人,不代表焦点立场。


