保利越秀·和樾天汇预计2月认购!建面83-102㎡3房均价约11.5万/㎡!
上海搜狐焦点 2023-01-28 14:08:53
用手机看
扫描到手机,新闻随时看
扫一扫,用手机看文章
更加方便分享给朋友
三轨交汇畅达全城

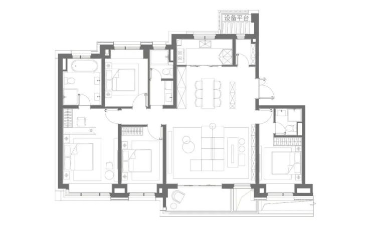
项目主力户型建面约99㎡3房2厅2卫、约103㎡3房2厅2卫、约173㎡4房2厅3卫。八批次入市的为建面约83-102㎡3房。



声明:本文由入驻焦点开放平台的作者撰写,除焦点官方账号外,观点仅代表作者本人,不代表焦点立场。


