金港·星海湾户型曝光!建面约89-167㎡高层&洋房&叠墅预备入市!
上海搜狐焦点 2023-01-31 15:14:04
用手机看
扫描到手机,新闻随时看
扫一扫,用手机看文章
更加方便分享给朋友
金港·星海湾包括三个住宅组团,分别是综合区站TOD南侧的10个地块,平和教育综合体的住宅部分,及105北区的F09地块,规划住宅近万套,是临港名副其实的超级大城。
金桥集团在临港综合区及105北区相邻住宅组团,合计近万套住宅体量的超级大城,以“六朵金花”之临港“金港”为前缀命名的——金港·星海湾,即将揭开面纱!
金港·星海湾包括三个住宅组团,分别是综合区站TOD南侧的10个地块,平和教育综合体的住宅部分,及105北区的F09地块,规划住宅近万套,是临港名副其实的超级大城。
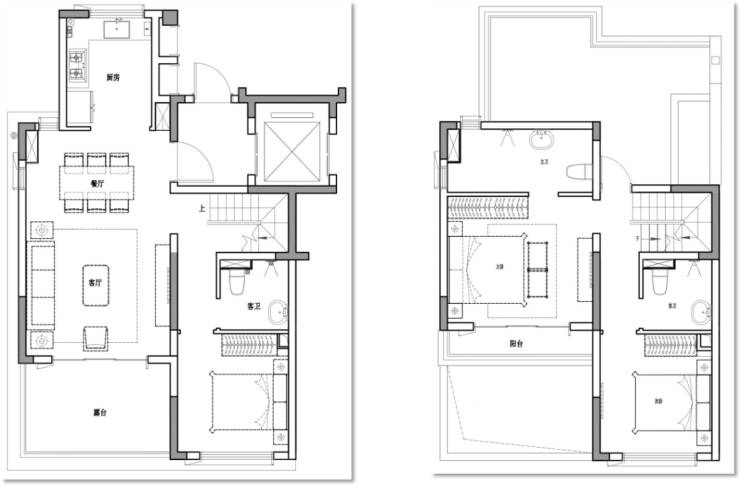
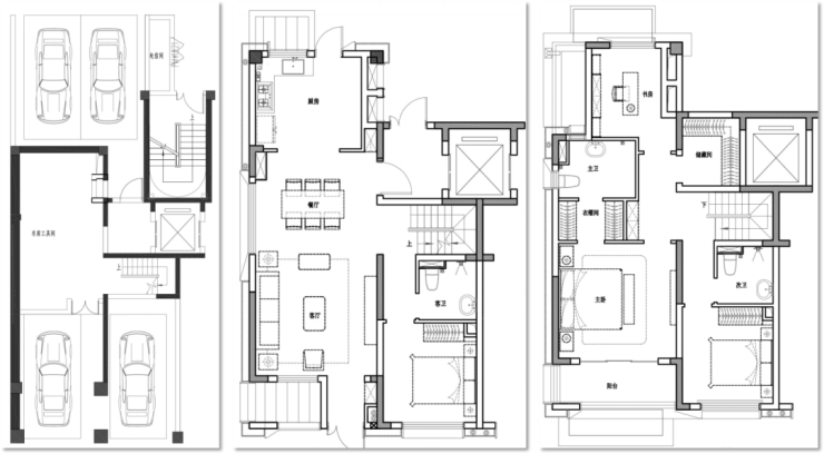
据悉,金港·星海湾首期住宅入市在即,将推出建面约89-167㎡高层&洋房&叠墅。
位置就在上海临港平和学校东侧。

全套户型图独家首发:




效果图:


声明:本文由入驻焦点开放平台的作者撰写,除焦点官方账号外,观点仅代表作者本人,不代表焦点立场。


