各种户型,合院别墅分析!!
扫描到手机,新闻随时看
扫一扫,用手机看文章
更加方便分享给朋友
合院住宅是中国传统建筑的重要特点之一
传统建筑中有很多细节
在现在豪宅设计中值得借鉴。

北方民居和合院体现了厚重的特点。

理想的合院模型

中式合院意向

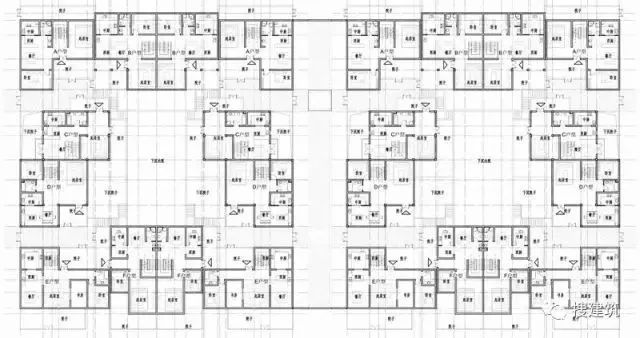
十二合院

户型分布

十六合院

剖面

合院双拼

屋顶组合

组团



透视



立面


案例:龙湖香醍溪岸
前提:
容积率:0.8
主力户型:250平方米
十二合院
12合院:250x12户=3000
占地面积:3000/0.8=3750平方米
扣除公共部分的面积损耗:
一个合院带道路占地大约3500平方米,
东西退4米,南北退9米,
纯合院大约2400平方米。
48x51=2448
45x54=2430
42x57=2394



十六合院
16合院:250x16户=4000
占地面积:4000/0.8=5000平方米
扣除公共部分的面积损耗:
一个合院带道路占地大约4800平方米,
东西退4米,南北退9米,
纯合院大约3300平方米。
66x51=3366
60x54=3240
57x57=3249

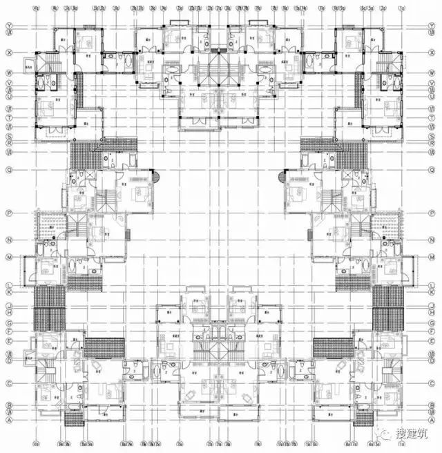
合院别墅平面图(案例)

地下一层平面图(改造前)△

地下一层平面图(改造后)△

夹层平面图(改造前)△

夹层平面图(改造后)△


合院别墅资源分析△
南向看庭院
户户共享庭院
100%赠送面积
(内天井全赠)
坐拥中心庭院
双面宽朝南


合院别墅剖面对比△
龙湖原山:1.室外地坪与地下一层高差2000,人防面积以建筑面积5%计算。2.夹层与地下一层一起以半地下室报规划,夹层图纸体现,不计入容积率。
中式分析
把市场上的对传统中式的尝试,
进行归纳和总结为4类:
1、新中式
特点:平屋顶、现代材料、白+灰色调为主,少量的坡顶。
代表项目:万科棠樾、万科第五园、上海九间堂

上海万科第五园△


万科棠樾△

上海九间堂△
2、民国风
特点:青砖、坡顶
代表项目:紫庐、上海新天地、中国美院南山校区

紫庐△

上海新天地△
3、纯中式
特点:比较尊重传统的符号元素。
代表作品:杭州的四季酒店


杭州四季酒店△
4、伪中式
特点:新古典的构图,类似东南亚的风格,又比较厚重。
代表作品:万科公望、万科长风别墅


万科长风别墅△

万科公望△
探讨中式的价值感
1.新中式——格调高,平民化。
2.民国风——青砖的材质,很难用于设计豪宅。
3.纯中式——参考传统的“豪宅”,胡雪岩故居,控制白墙的
比例,木雕的细节。
4.伪中式——不怎么像中式,但是立面成熟,比较成熟的豪
宅。
别墅设计中,中式的价值
别墅、排屋——西方的生活方式
合院——中国的生活方式
方向:
1.纯中式——原方案的基础上,推敲屋顶
2.伪中式——对长风别墅的改造,更加中式
中式合院问题与对策
问题1:中式建筑如何体现价值感?
对策:摈弃中式建筑由繁入简的设计思路,尊重传统比例、细节。屋顶形式采用传统建筑中等级较高的卷棚歇山为统领。飞檐的造型,增加的建筑的历史感和价值感。

问题2:中式建筑比较好的比例为1层或者2层,但是本案立面要做到3~4层。如何达到比较好的比例是个难点。
对策:吸取传统建筑中大基座的想法,借鉴“万科长风别墅”的细部。在建筑的1、2层用石材做一个错落的基座,削减它的体量,从而凸显上部的造型。



石材与传统建筑的搭配,削弱了由于高度造成的比例失调问题,同时很好的解决了价值感的问题。

杭州汪庄


西湖国宾馆


周恺对传统建筑的尝试

感谢杭州九米稿件
合作、宣传、投稿
声明:本文由入驻焦点开放平台的作者撰写,除焦点官方账号外,观点仅代表作者本人,不代表焦点立场。


