11号线马陆站,越秀保利·嘉悦云上较新户型图&效果图曝光
上海搜狐焦点 2022-10-19 17:08:45
用手机看
扫描到手机,新闻随时看
扫一扫,用手机看文章
更加方便分享给朋友
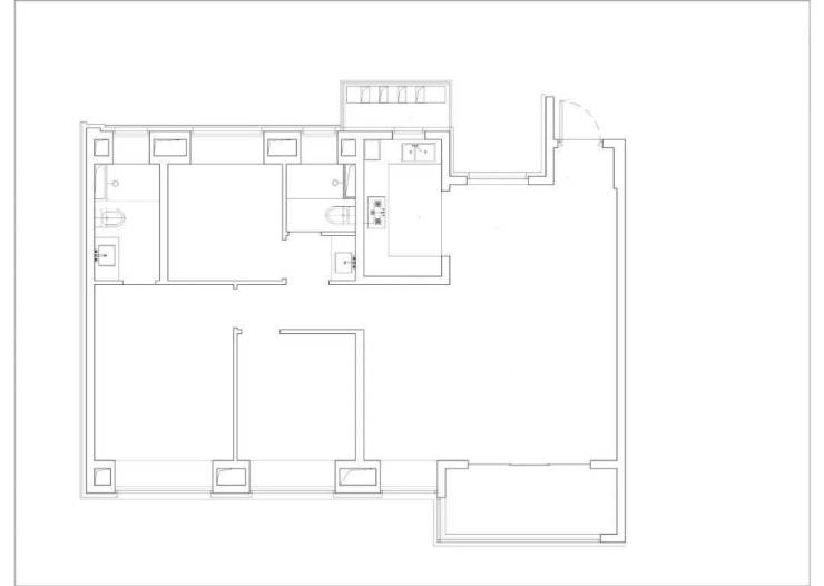
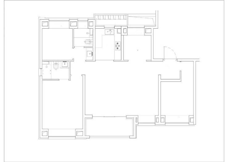
据较新消息,嘉定11号线马陆站旁,越秀保利·嘉悦云上将推出建面约103-141㎡3房,预计第七批次入市。项目首推主力产品包括建面约103㎡3房、约132㎡3房、约141㎡4房,户型如下:(过程稿仅供参考,最终…
据较新消息,嘉定11号线马陆站旁,越秀保利·嘉悦云上将推出建面约103-141㎡3房,预计第七批次入市。
项目首推主力产品包括建面约103㎡3房、约132㎡3房、约141㎡4房,户型如下:
(过程稿仅供参考,最终以开发商发布为准)
声明:本文由入驻焦点开放平台的作者撰写,除焦点官方账号外,观点仅代表作者本人,不代表焦点立场。


