【华润三林滨江项目】户型图曝光!将推出建面约90-223㎡洋房、平层、叠墅!
上海搜狐焦点 2023-01-28 14:21:58
用手机看
扫描到手机,新闻随时看
扫一扫,用手机看文章
更加方便分享给朋友
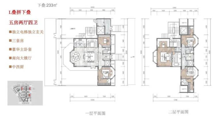
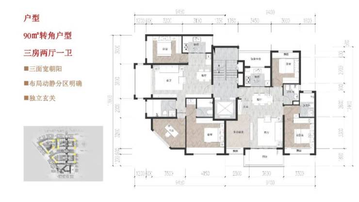
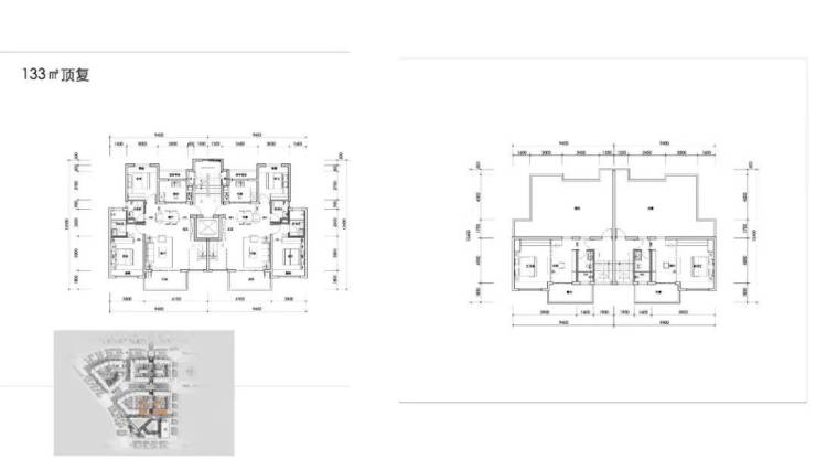
25-01地块共326套,28-01地块共160套
2022年10月,三林滨江西区第二块土地,正式完成产权交易,该地块由央企华润竞得,成交价为35.26亿元。
华润拿下的三林滨江新地块分为25、28两个子地块,用地性质为商业住宅混合土地包。

其中,25-01地块占地面积21472㎡,容积率2,地上计容面积42944㎡,为住宅用地,限高30米,共326套,套均面积约131㎡;
28-01地块占地面积12916㎡,容积率1.6,地上计容面积20665.6㎡,为住宅用地,限高24米,共160套,套均面积约129㎡;28-02地块,占地面积8389㎡,容积率1.3,地上计容面积10905.7㎡,为商业用地,限高24米,共326套。
声明:本文由入驻焦点开放平台的作者撰写,除焦点官方账号外,观点仅代表作者本人,不代表焦点立场。


