过会价8.25万/㎡!华发古美华府将首开295套,户型曝光
上海搜狐焦点 2023-02-05 21:02:19
用手机看
扫描到手机,新闻随时看
扫一扫,用手机看文章
更加方便分享给朋友
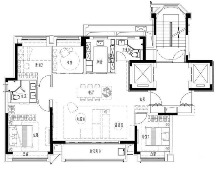
闵行古美全新盘,华发古美华府已过会。项目将推出建面约107-145㎡3-4房,预计首开295套,过会价为8.25万/㎡。根据设计方案显示,项目容积率为2.0,拟建7栋14-16F高层住宅、1栋保障房以及配套用…
闵行古美全新盘,华发古美华府已过会。项目将推出建面约107-145㎡3-4房,预计首开295套,过会价为8.25万/㎡。
根据设计方案显示,项目容积率为2.0,拟建7栋14-16F高层住宅、1栋保障房以及配套用房,可售商品房约523套。
约107㎡3房2厅2卫
约145㎡4房2厅2卫
声明:本文由入驻焦点开放平台的作者撰写,除焦点官方账号外,观点仅代表作者本人,不代表焦点立场。


