华漕下个红盘抢先看!【中铁建项目】将推99-140㎡3-4房,联动价涨了!
扫描到手机,新闻随时看
扫一扫,用手机看文章
更加方便分享给朋友
今年以来,闵行华漕板块大华紫樾府、南山前湾拾缦先后三次开盘,均触发积分。大华紫樾府入围分55.55,南山前湾拾缦入围分57.44、53.12。板块热度一直居高不下。
关注华漕的购房者注意了!华漕将上新,纯新盘【中铁建华漕项目】预计月底开放展厅、11月左右取证入市。

该项目为今年上海第二轮土拍中吸引了18家竞买人的闵行区华漕镇MHP0-1402单元16-05、17-04地块,最终中铁建通过摇号方式以61.475亿元摇中该地块,溢价率10%,成交楼面价40920元/㎡,房地联动价6.95万/㎡。
相比大华紫樾府、南山前湾拾缦,【中铁建华漕项目】联动价上浮近3500元/㎡,接近7万/㎡大关。值得一提的是,该项目拿地条件里,是有写明3000元/㎡的装修标准,品质值得期待。
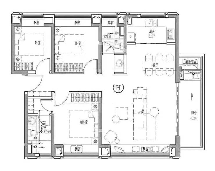
【中铁建华漕项目】出让面积60093.4 ㎡,容积率2.5。项目由两个地块组成,预计西地块率先入市,推出主力建面约99㎡3房、115㎡3房、140㎡4房。
【中铁建华漕项目】所处的虹桥前湾是虹桥商务区北拓重点发展板块,规划能级高,发展前景可期。根据规划,虹桥前湾在《上海市城市总体规划(2017-2035年)》中已被纳入上海主城范围。“十四五”期间,虹桥主城前湾地区将重点开发北青公路以北的10平方公里,总开发体量大约1200万㎡,约等于4个前滩的规模,包含:459万㎡住宅、189万㎡办公、96.85万㎡商业以及产业办公及公共设施。

交通方面,项目周边双轨环绕,距在建13号线西延及示范区线换乘站芳乐路站仅约600米,此外可通达沈海高速、沪常高速、嘉闵高架等。
商业方面,项目近COSTCO开市客,附近还有虹桥前湾印象城(在建)、上海超极合生汇、坤赢旭华广场等。

教育方面,周边以国际、双语学校为主,包括上海闵行区诺达双语学校、上海新加坡国际学校、上海美国学校、公办九年一贯制学校诸翟学校等。此外,华漕镇政府和华师大教育集团签署合作框架协议,合作共建7所公办学校,包含幼儿园到初中的十二年教育。

医疗配套有复旦大学附属华山医院(西院)、华山医院西院、上海百汇医院等。
声明:本文由入驻焦点开放平台的作者撰写,除焦点官方账号外,观点仅代表作者本人,不代表焦点立场。


