上海养云安缦酒店 | 魔都的世外桃园
扫描到手机,新闻随时看
扫一扫,用手机看文章
更加方便分享给朋友
养云安缦
魔都的世外桃园,10000棵古樟树与50座江西明清古宅在此重聚
坐标:上海市闵行区马桥镇
修建10年,耗资33亿;全球占地面积较大的安缦酒店;13个别墅,24个套房,国内房价较高的的酒店,每晚均价6000起。
“养云”,来自北京紫禁城乾隆时期一处名为养性斋的匾额,意为“养蓄云气”。乾隆诗曰:天云养以湖,山云养以室。居山复近水,云相兹合一。

项目描述来自建筑师:养云安缦的选址,遵循了安缦一贯的“避世”风格,低调却又不失内涵。酒店所在的上海闵行马桥镇旗忠村,一直被誉为上海的“龙脊之地”。4000多年前,上海陆地还未完全成型之前,有沙岗、竹岗、紫岗三片陆地像龙脊一样浮于海面,旗忠区域正是这三岗汇聚之地。项目建筑和室内概念设计是新加坡 Kerry Hill Architects,中方建筑设计机构是华建集团华东建筑设计研究总院。
传统地域文化的当代表述
2002年,因新建水库,有志之士马先生从江西抚州迁移数十栋明清老宅,万棵香樟于上海闵行马桥镇旗忠村。2009年,安缦选址此处开启养云安缦设计。

较高水准的“动迁”行动,当江西抚州的古村落和树木因为修水库而岌岌可危时,安缦的施工队执行了一个大胆的计划,把50栋明清古宅与10,000多棵古树“动迁”到上海;

当古树开始适应上海的气候环境吐露新芽、枝繁叶茂时,2007年安缦的加入,这个细致而精密的修复工程有了重大转机。投资33亿,安缦养云将诞生于一个长达10年的宏伟的保护计划。

安缦内部的这座森林公园从原先20公顷增至160公顷,包括水梯田、莲花池塘,以及野生动物丰富的自然湿地。

这些古树全部由马达东先生带领由植物学家组成的团队亲自在江西选择移栽的1000余棵树木,从设计落地到今天已经过去10年,环绕这些宅邸的古樟树已经蔚然成林:


如果不及时异地迁建,这座古村将长眠于水库之下;这次园林景观总设计师是远在伦敦的Dan Pearson, 他敬重自然, 设计了一个因地制宜的规划方案, 把这些“老家伙”重新安家。


“我们将这里打造成一片世外桃源般的绿色港湾。”-Dan Pearson
地面上都全部种植了来自中国本土的植物(睡莲, 荷花),与古树相辉映, 所有的设计都遵循着 "碳补偿carbon offset"这一环保概念,通过森林,花园与园林艺术使人们接触自然;

▲ 在中国传统建筑中,“圆”有着广泛的运用,较具代表性的便是园林中的洞门。圆弧形的洞门因圆形如月而被称为月亮门。对待细节上他也同样用心, 为了映衬园林景观,专程赶赴江西景德镇烧制了一些列的“缸”,缸的釉色也经过特别调制, 做为暗灰色的(不突兀), 以便巧妙地融入在大景当中。

老宅之魂+Kerry Hill=“养蓄云气”之地
修建难度:赣派建筑在上海复兴?中国地大物博,各民族、各地域的文化、风情颇具特色,其中民居就是一种典型的代表。然而,因道路拓建、兴建水库、老城拆迁等等因素这些江西老宅生死未卜。安缦刚好为这些古老记忆找到了重生的地方。

在紫禁城的深处,一个叫养性斋的馆舍中乾隆帝命人悬起一块题着“养云”二字的匾额,意为“养蓄云气”。这便是“安缦养云”之名的灵感源泉。这种浩大的工程需要建筑师、设计师、园林学家、工程师以及美学家一起制定出非常详尽的方案。

与之前杭州的法云安缦以及北京的颐和安缦类似,养云安缦亦属传统建筑再利用,即异地迁建,这对于文化底蕴深厚的中国是非常有利的保护措施。

也就是说你不仅是住在了安缦酒店,而且住在了一座充满精美文物的博物馆之中;精通中国古建筑的工程师和专家团队从江西30个村落中拆解、运输珍贵古代建筑,在上海进行重建;


远道而来的50座古建筑零件被工匠重新搭建出了26座古宅,中国传统的榫卯结构为古建的异地移建提供了有利条件;光看一眼细节, 就知道这堪称是一次文物修复级别的老宅翻新工程。


这些石雕和它们承载的故事一样,这个抱负远大的项目将继续细述历史,用希望和对未来的期待滋养下一代人。

老建筑的新生继由当年一批负责迁徙的资深工匠担任。酒店新建部分,源自传统老宅空间组织逻辑的提炼,体现地域文化的时代真实性。设计之初,整个设计团队深入老宅所在的江西原址调研,让建筑师对于建筑院落生成的地理环境和生活成因有深入内心的理解。


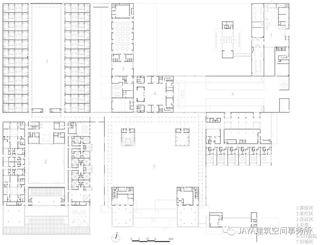
整个项目的用地总面积接近20公顷,总建筑面积约9.9万平方米,其中约一半的面积位于地下,地上的建筑则主要以一层的院落形式组成。作为养云安缦酒店运营的部分,则由 Club 和 Antique Villa 两部分组成,分别提供24间套房和13个老宅院落。


Club 区总体布局,围绕接待大堂为中心展开。东西向的游廊连接着餐饮、宴会、水疗与客房的功能区。从可容纳200人的正式宴会到滨水茶座,提供六种不同氛围的餐饮场所。

Antique Villa 平面图
每一套 Antique Villa 则包含一座复建的明代与清代民居,同时配套新建的辅助建筑。辅助建筑根据院内木结构古宅规模情况不同增建套房。复建木构古宅是利用原来的木构件和青砖的改建建筑,遭破坏的构件被替换成新的构件。在原有框架的原则上进行现代功能的置换,使其满足现代生活的舒适要求,是这一复建设计的基本原则。


将现代主义的设计和建造技术融于传统地域文化,是当今建筑文化的重要主题。为满足当代起居要求,原本狭小的空间需要作出相应的改善。利用钢梁减柱做法使开间扩大,可放下一组圆桌椅子;设计夹墙和夹层,充分隐藏空调和新风设备,使新鲜适宜的空气贯通空间;原本封闭山墙上开出大玻璃窗,改善室内光环境;采用地源热泵系统,避免室内外巨大的温差。

养云安缦

典型套房总平面图
从共享的外部庭院进入私密的内部庭院,以曲折的空间序列塑造江南园林的游览体验。村落原有一处私塾,如今更是被打造成养云安缦的书房“楠书房”。在这里,修身养心、崇尚天然、敬畏造化,进行一场时空的对话。


空间界面的材料集具文化底蕴。主要围护墙体的饰面,采用了一款产于江西的中灰色石材,不同块材不同疏密的组合,产生出丰富的墙面质感和光影效果。几何的铜质、木质屏风,概括出传统花格窗的意象。

环境的保护与重塑
酒店隐在一片香樟园林,宛如隐蔽在城市中的一座静谧村庄。设计采用一层的小尺度体量建筑,院落式空间布局,从规划到平面布局、空间塑造,从造型设计到材料、色彩的选用,都在着力削弱环境的人造感,突出与自然的对话。

景观设计更是充分利用外部资源,将青登河对面规划建设中的森林公园同步考虑。依托内向型的院落式庭院空间,以密集香樟树为基调,搭配场地原生感的植被,营造原始静谧的森林氛围。

徽派建筑大多是精巧的二层房屋,安缦养云的赣派古宅大多都有一层半的高度,更显大气和宽敞,房屋的天井也够宽敞(是石库门那种几倍大小)。

整个项目安缦御用建筑师-Kerry Hill亲自操刀;一直传说青岛涵碧楼(风水玄妙的巨作)是他的收官之作,他再次以东京安缦震惊世界。Kerry Hill绝不想放弃任何一个挑战。

青岛涵碧楼设计费就高达6000万,他在业内设计费不讲价、不得修改方案是出了名的;老道的Kerry Hill也不是排名前列次为安缦设计了,东京安缦以及Amanemu背后的设计团队都是他的建筑事务所操办。亚洲文化对于他来说已经非常熟悉了,养云开业之后,大受好评是必然的。
从Kerry Hill的亲手手稿可以窥视出赣派古宅中的精巧结构, 全原木的建筑在今日太难能可贵了 ;

走在养云安缦得门廊中,仿佛回到古宅庭院的幽幽曲径,放慢脚步,便可欣赏沿途风景。

Kerry Hill不仅通过精巧的设计与编排向人们展示了鲜为国人所知的赣派建筑,更是一位深谙中国风水之道的建筑师。 最显著的特点就是,江西人建造村落的时候通常会把戏台、祠堂放在村落中心,房屋强调开天门、闭地户。

养云就是很典型的强调中轴线建筑的对称设计,公共空间设于地理中心,典雅又仪式感十足。
03.基础居住空间是全上海面积较大!
关于大家最关心的居住问题, 此次的房型一共分为两种, 即套房(Suites)和庭阁(Pavilions), 套房即是最普通的基础乞丐房, 庭阁就是独幢的古宅, 当中有中庭, 私家游泳池和按摩池。

13座赣派风格的古典别墅,和24间现代单卧套房就 布局在中轴线两边。连普通的明庭院套房居住面积都高大99平方米!这已经是全上海奢华酒店当中居住面积较大的了, 比第二名的上海柏悦68平方米还大了30个平米。内部是这种简洁古朴的原木框架装饰, 一看就很 “安缦” :


面积足足有99平方米的基础庭院套,起居与卧室空间融为一体,配有格纹百叶窗,自然光影透窗而入。以往酒店业中所谓的独栋别墅,说穿了无非就是一幢大房子而已。而在中式建筑史中能被称为真 别墅的恐怕只有北京的四合院和赣派古宅。而今天的安缦别墅群与其说这是古宅院落,不如说是富甲一方的世外桃源!

安缦的居住环境被古老而祥和的樟树林环绕着,是一种历史文化与当代居住环境的融洽结合。这种庭阁样式的古典别墅比较适合多于一个家庭的出行,较大的甚至有五卧房别墅(想必是参照古代大家族土豪的出游人数设计的),位于四周新式厢房中. 更为霸气的是当中还有一个通透的中庭, 私家游泳池和按摩池。

卧室外部看似很古朴,内部却很现代(依稀可以看见几分北京安缦的影子),由不同深浅、纹路的原木与大地色系相结合;

内饰以竹木,岩石为主, 因地制宜;屋内的灯光非常因地制宜, 只在使用的时候才会亮起,以凸显出明清老宅以天井为几何中心的特色。


房屋结构精巧大气,与极简清隽的家居融为一体,让人感觉轻盈无比;
准备了什么“养蓄云气”项目?
一般度假酒店提供的体验项目也就那几样:cooking class,spa,各种非机动运动等;那么号称“养云”会有什么惊喜呢?除了住进文物级的中式老宅,你还能去古罗马风的澡堂洗浴,再感受一下俄罗斯木屋蒸桑拿,让全身每个细胞都得到放松!


没错,这里除了安缦血统的经典水疗和具有本地特色的中草药理疗,还有罕见的土耳其浴和俄罗斯桑拿;不得不说,安缦对于丝绸之路文化带领悟很深;另外酒店的餐饮你也抱有期待,要知道没人能比上海人更懂吃,这里的6间餐厅还包括俱乐部酒廊,湖畔餐厅以及一家安缦小食村庄店。(树莓头牌就是上海人,跟着他吃遍12城从没让莓粉们失望过?)

在中心地带,还有一座曾经作为古村落私塾的宅子被命名为“楠书房”,全屋以金丝楠木为主要载体, 在古代书房作为怡情养性的地方,那来到这里,你就有机会拜师学书法,甚至体验中国传统茶艺。


安缦在每个度假村都有图书馆,而楠书房就是安缦养云的“书房”所在。最不能错过的是这160公顷的森林公园,徒步、探险还是跑步,这里无疑是上海市郊最棒的天然氧吧。



古村落原有一处私塾,如今被打造成养云安缦的书房,因景仰紫禁城内的“南书房”而命名为“楠书房”。楠书房承袭了古宅的传统建制,将私塾的精神内涵及功用隐于幽香沁脾的金丝楠间。在这里,看书、会客、修养身心、品茶……难得的是大隐于市的清净感。



新旧客房以相同的风格,不一样的建筑而区别,也在老与新之间找到了一个动态平衡。

餐厅


Lakeside Cafe Terrace

泳池

客房








Club Lounge

除去建筑本身,起居空间内设计极简配色也更为明亮。为的是将现代的居住体验,融入进老宅里。




古代别墅还会拥有一个自己私有的餐厅,在这里设计师使用了大量的留白。

在餐厅中可以清楚的看到酒店架构完全还原江西老宅,从梁到柱由内自外。
主卧室是一个非常简单的空间,没有过多功能性的堆叠,一切都看起来简单的刚好。

窗内设计师创意的放入了一份盆栽,让室外的园林景观融入室内又兼顾隐私。门窗与建筑本身都充满时间感,呆在这里只看建筑都能过上一天。


卫浴空间的设计风格与起居室相似,只是地面又木质换成了石砖,还专为梳妆准备了一个小椅子。

龙头等用品均为定制,以铜制成略有一点工业风。窗外是被围墙围住,盆景与古香樟等组成了景观庭院。

现代套房与古代相差较大,类似日本酒店内日式与西式房间的区分。套房的客厅就用了安缦标志性的极简主义风格,且每个现代套房内都带有两个独立庭院,新旧在这里交替。
走进养云安缦,你一定会惊讶,在距离五光十色的上海大都会仅一步之遥的地方竟有这样一片被古樟林和江西明清风格古村落环抱的世外桃源,如此宁静神秘。
来源:gooood谷设计网
版权归原作者所有,如有侵权请联系后台删除
—
以持之以恒的专注
创造无限的精彩
演绎不凡的设计价值
With perseverance
Create infinite excellence
Deductive value of design
—
J A Y A S P A C E I D E A S
•
建筑。室内。家具。视觉。
Architecture。Interior。Furniture。Graphic。
•
更多请关注
For more information, please contact us via:
www.gdjiaya.com
•
欢迎分享至朋友圈
Welcome to Share to friends
转载请注明嘉亚建筑空间设计院,侵权必究
Reproduced please specify
JAYA architecture space design institute,
Rights Reserved.
声明:本文由入驻焦点开放平台的作者撰写,除焦点官方账号外,观点仅代表作者本人,不代表焦点立场。


