上海绿地中心(Shanghai Greenland Center )- Nikken Sekkei
扫描到手机,新闻随时看
扫一扫,用手机看文章
更加方便分享给朋友
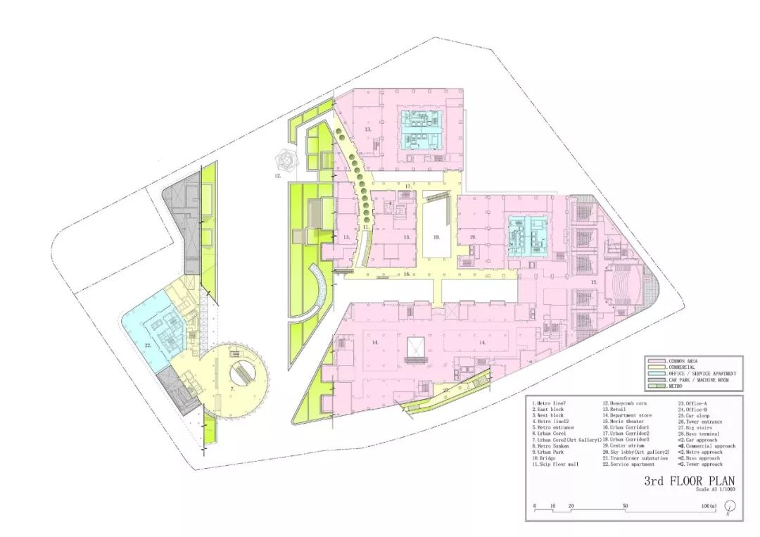
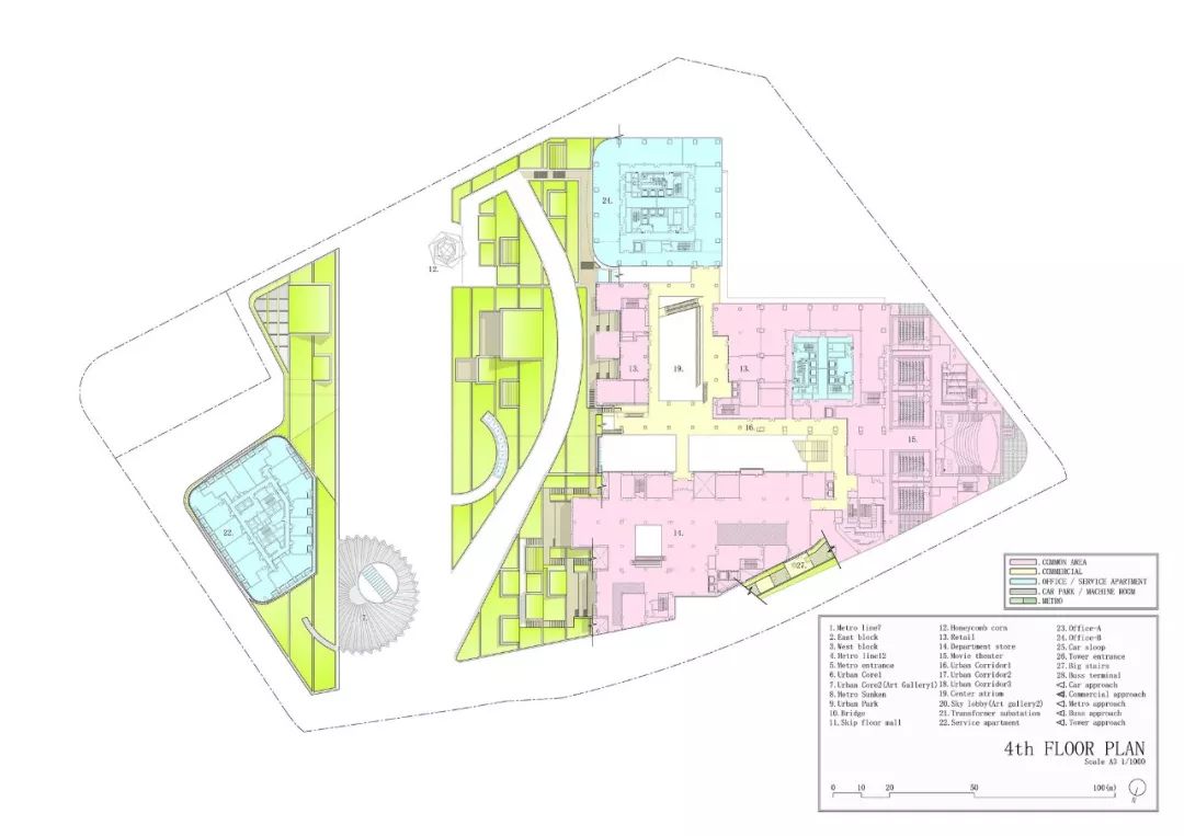
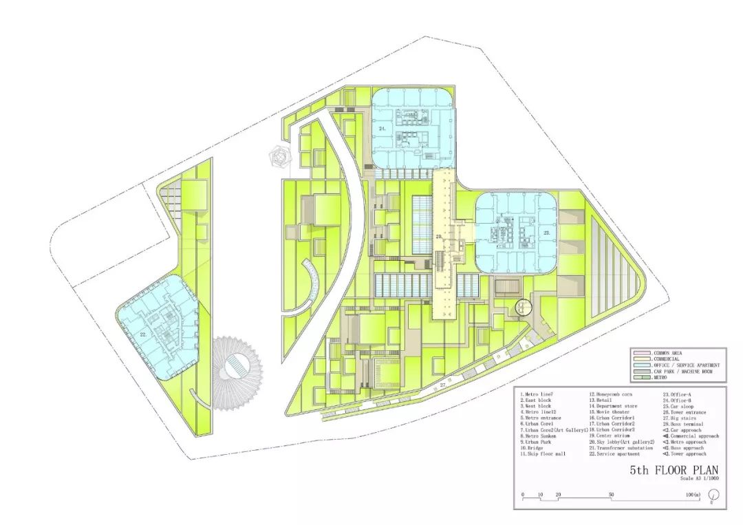
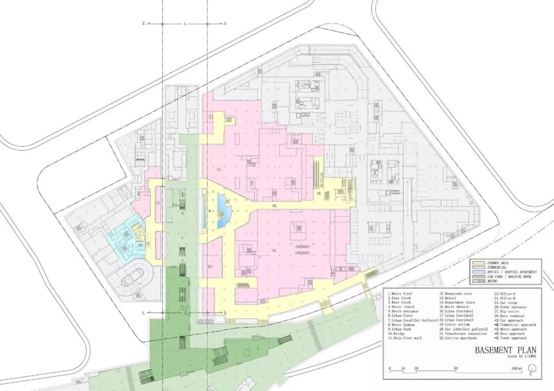
项目概况:建筑设计:Nikken Sekkei地点:上海市,徐汇区,东安路 562 号(562 Dong An Lu, Xuhui Qu, Shanghai Shi, China)主持建筑师:Lu Zhong Xiao, Tetsuo Tonouchi, Hiroyuki Suga / NIKKEN SEKKEI建筑面积:304910.0 m2完工时间:2017年
项目简介: 在该项目中,“城市与自然生活相融合的城市农场”是贯穿整个设计的核心理念。这座绿色城市山谷综合建筑,以“街道景观公园”作为建筑空间的亮点,坐落在上海最常用的地铁站正上方。 这座面积为20000平方米的绿色城市山谷综合建筑,以融合自然与人类空间的城市农场为理念设计。通过智能屋顶的几何结构,将其融入城市居民的日常生活中。这座 “屋顶”被分割成不同的大小,并且通过趣味性的露台和户外斜坡以3D的方式将不同的高度连接在一起,同时也响应了下面的建筑功能和室内人们的各项活动。 这座城市综合体很好的利用了大自然的冷却系统来抵消热岛效应,同时也让这里的城市环境和社会环境焕然一新。与我们的自然绿色景观一起,这里的清新环境确保了我们的城市农场是较受欢迎的城市空间。 另外,该城市农场还被确定作为 TOD 项目(以交通为导向的开发项目),具备所有功能:零售、办公和服务公寓都能够通过公共交通顺畅连接。在上海的快速发展的同时,它让每个地方都可以步行到达,创造出了发展城市网络的新价值。

































声明:本文由入驻焦点开放平台的作者撰写,除焦点官方账号外,观点仅代表作者本人,不代表焦点立场。


