【中粮海景壹号】陆家嘴核心1.36亿顶楼少有复式
扫描到手机,新闻随时看
扫一扫,用手机看文章
更加方便分享给朋友


中粮海景壹号位于上海陆家嘴CBD核心,正滨江少有地段。直面浦江,一线江景。

整个中粮·海景壹号由5幢超高层江景公寓围合组成。社区中央设有双会所、配备室内室外双泳池、多功能厅、健身按摩设施、娱乐设施等,功能设施齐全。由国际知名大师设计,采用先进家装品牌装修,是中粮集团作为世界500强的实力巨献。

项目共有4栋塔楼,分别为31层、 36层和37层超高层住宅公寓。
地块中央设置两座会所,一号会所 主要为商务理疗用途,位于地下, 顶部设露天游泳池;二号会所为健身用途,地上设室内泳池,地下设健身房等。

小区详情编辑
地址 上海市浦东新区银城中路600弄 总建筑面积 70000平方米物业类型 公寓 容积率 4.0建筑类型 高层 绿化率 51%开发商 中粮地产(集团)股份有限公司 竣工日期 2010-12物业公司 高力国际 停车位 600物业管理费 12.00元/平方米·月

周边配套辑
公交 961,313,795轨道交通 2号线 陆家嘴站学校 ——商场 易初莲花、正大广场银行花旗银行医院 东方医院 仁济医院餐厅 龙池餐饮娱乐 俱乐部、健身房、游泳池

2003年11月,鹏利海景项目开始施工,2005年,封顶;2007年年中,中粮决定将5、6、7号楼350套房源转为酒店式公寓出租,同时引入新加坡辉盛国际管理有限公司入驻,将鹏利海景更名辉盛阁公寓。2008年底,中粮·海景壹号(原名鹏利海景)内的2栋高层公寓正式变身上海鹏利辉盛阁高级服务式公寓,由新加坡辉盛国际负责管理。良好的楼盘素质和周边强大的租赁需求,使其入住率持续高达90%以上,大多数客户来自财富500强或福布斯上榜企业高管精英。

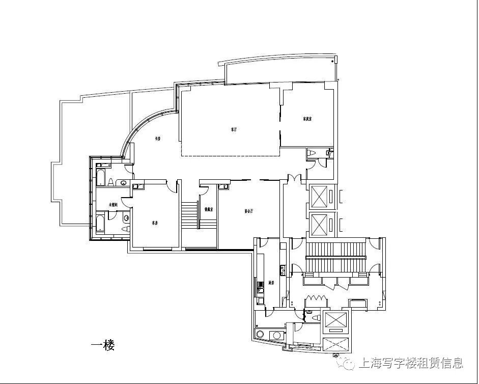
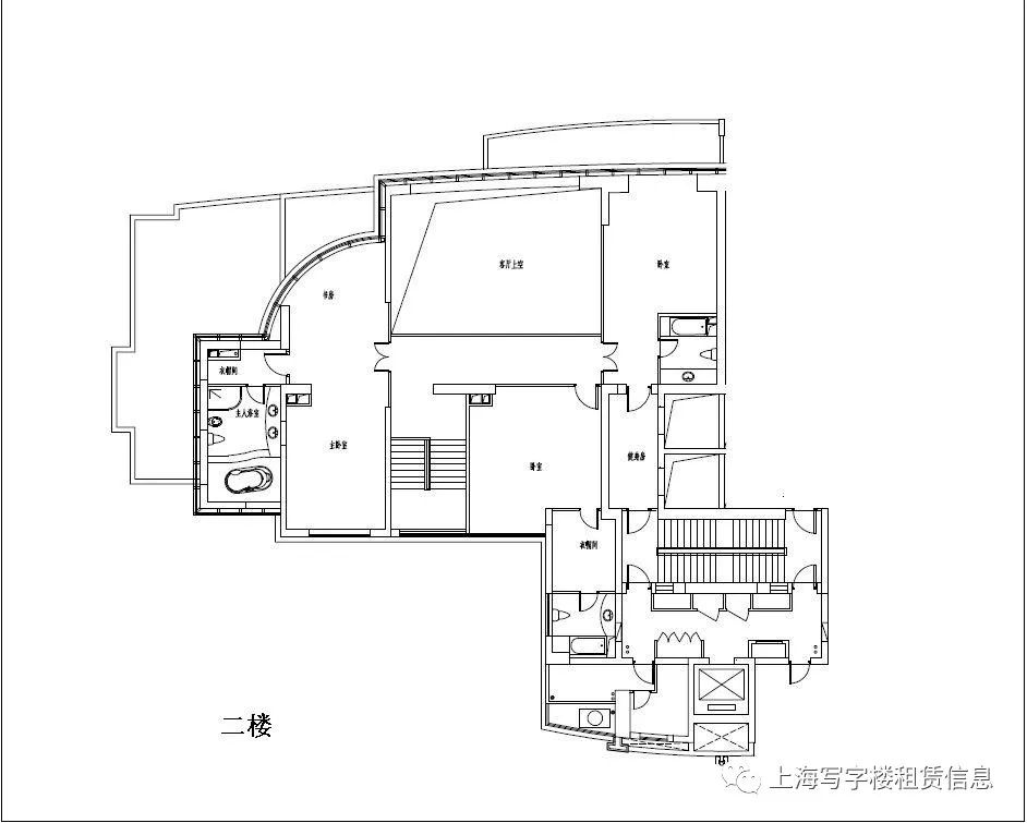
1和2号楼共有7套复式,目前一手房仅剩此一套1号楼39楼产证面积592.8平样板房复式在售136344000元,整个汤臣一品和中粮海景壹号前排江景较好的三栋仅此一套一手房

39楼户型图

40楼户型图










朝南江景

朝北外滩江景

1号和2号楼业主户籍分析

声明:本文由入驻焦点开放平台的作者撰写,除焦点官方账号外,观点仅代表作者本人,不代表焦点立场。


