徐汇滨江的最后一块拼图即将落子,或将重塑长桥板块价值定义
扫描到手机,新闻随时看
扫一扫,用手机看文章
更加方便分享给朋友
徐汇滨江作为上海黄浦江两岸城市更新的模范,8.4公里的滨江岸线,已经成为徐汇区高质量发展的缩影。
目前,徐汇滨江的核心段(瑞宁路-龙水南路)的建设已取得阶段性成果,西岸传媒港、数智谷等组团已基本建成,金融城也进入冲刺阶段。下一阶段,徐汇滨江南段区域,将进入深度开发阶段。最近又有重磅消息传出,位于长桥板块,上海植物园以东的区域,将打造为滨江中央公园,成为徐汇滨江发展的最后一块拼图。
在上海新兴的滨江岸线中,徐汇滨江能取得如此的成就,重要原因还是赢在了起跑线上。在2010年前后,徐汇区利用黄浦江两岸综合开发及世博会筹办的契机,使徐汇滨江实现了飞跃式发展。
熟悉徐汇滨江的市民都知道,这里还有个洋气的名字叫“西岸”,这也是徐汇滨江建设之初的定位,对标巴黎左岸和伦敦南岸。
根据此前规划,整个西岸将打造“一港一谷一城一场一湾一心”六个百万级产业组团,随着中央公园的规划方案被提出,未来或将有“一园”加入其中。
下面是申度君整理的徐汇滨江当前各大功能组团的具体情况:
一个区域的开发,最核心的资源是地和钱。没有土地就没有空间、没有资金就没有力量。
徐汇区凭借早些年打下的基础,拥有夯实的家底。徐家汇商圈、漕河泾开发区为徐汇区财政“大量输血”,不仅如此,徐汇更不惜掏空漕河泾开发区,腾讯、商汤、复星、麦当劳、游族等企业纷纷从漕河泾大本营迁至徐汇滨江。所以说徐汇滨江除了强大的开发能力,实力企业入驻是它强势发展的压舱石。
那么回到这一次备受关注的西岸中央公园,根据"上海徐汇"官微在1月的报道,徐汇滨江第七组团(龙水南路-淀浦河)是贯通向南延伸的关键节点,将延续一江一河”发展动能和热力向南传递。纵深较窄使得黄浦江在该段区域与腹地的上海植物园紧密联系,轨道交通23号线在此范围设2个站点,有条件结合TOD模式整体开发。综合上述因素,比起打造产业标杆而言,更需要联动整体需求,成为地区高质量发展有力补充。
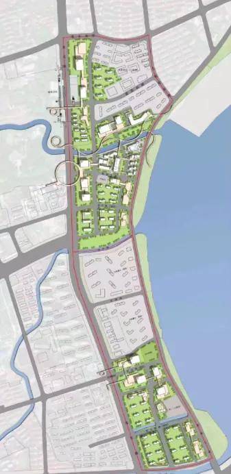
从网传的规划图可以看出,西岸中央公园将结合上海植物园的先发生态优势,在龙吴路以东区域,打造大面积的生态、居住及商业的组合业态。此外,上海植物园有望在龙吴路上方,建设一座观景桥梁,用来串联植物园与滨江地带,未来有望成为区域一大网红打卡点。要知道今年的上海国际花展,主会场首次跨出上海植物园,拓展至徐汇滨江区域,未来这样的生态共融、水岸联动可能会更多。
西岸中央公园规划效果图,图源网络仅供参考
虽然美好的蓝图已经绘就,不过当下还面临不少难题。地产申度从现场来看,位于规划效果图(红框)的区域,当前还有大量厂房、园区、城中村、旧改房屋等,例如位于中环线上的苑宏新村,当前正处于征收阶段,未来地块腾出后将作为公共绿地使用。
考虑到地块位于上中路隧道上方,或很难开发商业或住宅项目,因此打造绿地使用无可厚非。而位于苑宏新村北侧的,是当前上海博物馆文物保护科技中心和上海图书馆龙吴路书库。有路边社消息称,未来百色路将打通至滨江岸线,而这两大仓库或将进行迁移,未来土地将腾出他用。
另在图书馆书库的东侧,目前是遗留的工业厂房。而在规划图中未来将被设计为住宅用地。
在走访中申度君还意外发现,片区内还留存有零星的城中村,这在徐汇滨江板块中还是比较少见的,未来这些土地或都将纳入西岸中央公园的开发范畴。
目前徐汇滨江的核心是在中北段,包括金融城、传媒港和数智中心等,而南段的滨江岸线虽然早已贯通,但周边的配套能级比较弱,也没有产业导入。
总体来看,中央公园组团也是结合了上海植物园的生态优势,衔接北部传媒港和南部热力秀场的发展,提升这一滨江段的城市界面和未来的滨江能级。
另一方面,城市中央公园的概念近年来也比较火,很多区域更是打出了CLD中央居住区的概念。有了上海植物园作为铺垫,西岸中央公园的发展自然也是水到渠成。去年下半年,上海植物园北区也投入运营,出众的景观环境,也是徐汇滨江版图内不可多得的生态资源。
所以以生态资源为契机,再结合23号线上海植物园站,加上未来区域内会腾挪出大量土地,利用TOD模式整体开发,进一步强化徐汇滨江的影响力,推动徐汇南片区的城市更新,实现经济效益与生态效益的双赢。
据悉,徐汇滨江第七组团的方案征集工作近期正在展开之中。主要基于“公园城市示范区”更新单元,暨上海植物园周边约8.87平方公里。从目前来看,长桥板块有望成为这一轮徐汇滨江城市更新中的最大受益板块。此外,中央公园组团还能辐射周边的南站,南部的华泾等板块,成为市民休闲娱乐的新去处,也能间接受益。
虽然长桥板块早就有徐汇滨江岸线的光环,但并没有因此站上“神坛”,反而被人诟病南滨江岸线缺乏吸引力。
对比全市中环附近板块,例如静安的大宁,普陀的长风,长宁的古北,闵行的古美,浦东的张江、碧云等地,这么一对比,长桥的竞争力还是偏弱。不过,这里的新房价格却在连年上涨,与以上这些板块相比有过之而无不及。
当然要说长桥城市界面差,缺少商业,交通不便,确实也没太大毛病。但长桥也有它的绝对优势,板块内堪称名校云集。
“徐汇四大民办”之一的逸夫小学就坐落于此,此外还有上海小学、上海实验学校附属小学、徐汇实验小学、徐汇区教育学院附属中学、徐汇中学南校区、园南中学等徐汇区”公办一二梯队”学校均云集于此。不仅如此,上海”四大高中”之首的上海中学国际部也在板块内。
加之长桥近年来始终在努力发展,首先是15号线通车,打破了徐汇南的“地铁荒”。其次今年上半年,徐汇区中心医院从市中心淮海路迁移至此;再加上加上长桥二村的旧改和徐汇滨江岸线的再度开发,可见区里对发展徐汇中部区域的决心。因此,用一个前瞻的眼光来看长桥板块11万+/平的新房价格,似乎就合理了。
而在住房方面,这里以老破小、动迁房社区为主。近10年来,长桥板块的商品房用一只手就能数过来。稍早期入市的明星项目中海瀛台,依然是当前板块内挂牌价格最高的二手房,均价突破12万/平。
此后的10年时间,长桥板块都没有新房入市,直到2020年,长桥板块迎来了一波新房的供应小高潮。先是永业集团打造的梧桐公馆以7.82万/平的均价上市,当时项目的入市节点处于市场横盘期,起初去化也并不理想,随着时间推移,加上新房价格的走高,还是逐渐去化。
时间来到2020年7月,热门项目汇成南街里登场,首开认购率289%。也从这时起,长桥迎来高光时刻。2020年12月,汇成南街里二期开盘,均价7.95万/平,推出237套房源,最终收得认购人数3007组,认购率高达1269%,成为当年上海认购率最高项目。
而在随后地产·尚海悦庭项目也先后两次开盘,均价95000元/㎡,平均认购率120%,首次开盘面临南街里的竞争,不过第二次开盘也算是捡漏了南街里没上车的购房者,整体表现也还算可圈可点,这也不难看出长桥板块内的改善住房需求依然很大。
长桥板块近年来新房开盘情况
伴随着这些项目的售罄,长桥板块内的新房告一段落,直到2024年5月,长桥二村的旧改地块被上海地产和徐汇城投拿下,如今地块引入招商蛇口、徐汇城投、南昌市政联袂打造,项目案名为海上·清和玺,包含7栋25-33楼高层、2栋6-7楼洋房,1栋10-14层小高层等,预计推盘均价为11.5万/平,户型为112-117平。
从2020年到2024年这4年时间里,长桥板块的二手房经历过一番震荡,目前二手房价格基本已经回落到2020年前的水平,尤其是老破小住房,基本在6-8万/平的价格区间徘徊。
不过这里新房的价格却出现了明显的上涨,从当初的7.8万/平来到了现在的11.5万/平,涨幅在47%。其中经历过2次比较明显的跳涨,首先就是2022年,长桥新房价格站上了9万+/平,而在今年,房价进一步走高,一涨就是2万/平。
当然,徐汇的新盘历来不愁卖,加上徐汇南部区域的改善需求很大,当下的难点是新盘价格水涨船高,对于购买力提出了很高的要求。尤其是4公里外的梅陇板块,均价才7.5万/平。选择一个近市区的大户型产品,还是退而求其次买个中环旁的中小户型,在地段和性价比上该如何抉择,就看购房者自己来权衡了。
结语
徐汇滨江岸线的开发,不仅仅是为市民带来一个更开放的休闲空间,滨江景观带,它更是城市提振经济的重要抓手,创造新型消费空间并塑造滨水生活新方式。而西岸中央公园的规划出炉,对于发展比较薄弱的长桥而言,赋予了板块新生的机会。相信若干年后,长桥会迎接真正属于自己的辉煌新篇章。
来源:地产申度
声明:本文由入驻焦点开放平台的作者撰写,除焦点官方账号外,观点仅代表作者本人,不代表焦点立场。


