户型图曝光!约0.36容积率,万科掌心湖·原舍将推出约180-360㎡大平层、合院
上海搜狐焦点 2022-11-07 16:30:35
用手机看
扫描到手机,新闻随时看
扫一扫,用手机看文章
更加方便分享给朋友
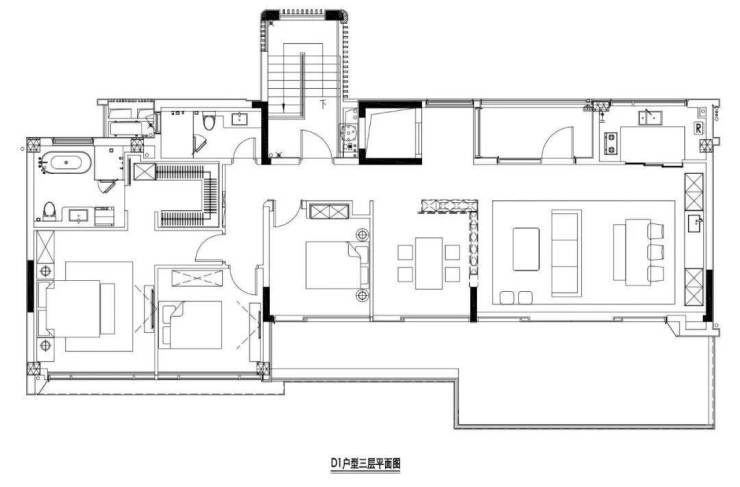
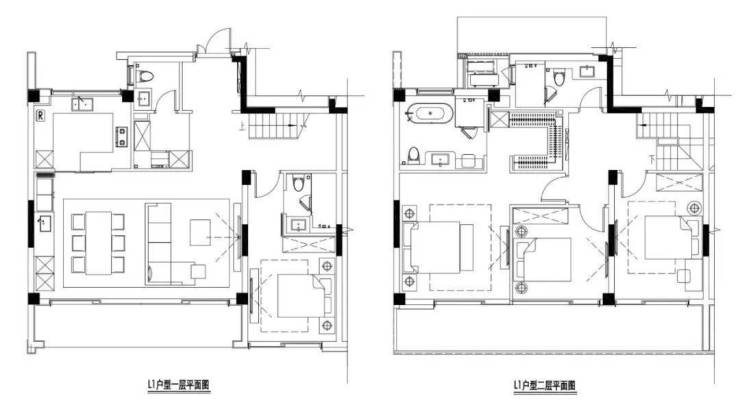
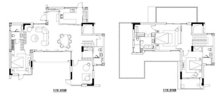
项目用地面积约12万方,建筑面积约4.4万方,容积率低至仅约0.36,规划户数208户。平层180户型:约800-1050w下叠190户型:约800-1100w合院190户型:约900-1100w合院360户…
安亭新镇一期收官之作,万科掌心湖·原舍建面约180-360㎡大平层、合院即将入市。
项目用地面积约12万方,建筑面积约4.4万方,容积率低至仅约0.36,规划户数208户。产品包括:
平层180户型:约800-1050w
下叠190户型:约800-1100w
合院190户型:约900-1100w
合院230户型:约1150-1350w
合院300户型:约1600-1700w
合院360户型:约2200-2400w
声明:本文由入驻焦点开放平台的作者撰写,除焦点官方账号外,观点仅代表作者本人,不代表焦点立场。


