嘉定金地双子待入市!联动价45200元/㎡起
扫描到手机,新闻随时看
扫一扫,用手机看文章
更加方便分享给朋友
2021年6月24日,金地在嘉定一举摘得2幅宅地。
嘉定区嘉定工业区南门社区JDC1-0801单元62-03地块成交总价20.97亿元,成交楼板价20749元/㎡,溢价率9.21%。案名金地嘉源。
嘉定区嘉定新城(马陆镇)马陆社区43-05B、51-01地块成交总价25.092亿元,成交楼板价22989元/㎡,溢价率9.47%。案名金地峯汇。
金地嘉源

金地嘉源占地面积56147.1㎡,容积率1.8,全装修比例100%,套数下限为902套。
项目距离11号线白银路站和嘉定西站均约2公里,四周以厂房为主,东侧为嘉定老城区,老城区内发展起步早,商业配套成熟。
金地嘉源由高层和叠加产品组成,将推出建面约97-98㎡高层、建面约155-175㎡叠加,房地联动价为45200元/㎡。


金地峯汇

金地峯汇占地面积43659㎡,容积率2.5,全装修比例100%。项目距离11号线马陆站约600米,位于次新房安高东方御府东侧。
项目规划方案已公示,拟建1109套住宅,其中43-05B地块住宅户数448户,机动车停车位485个。51-01地块住宅户数661户,机动车停车位731个。
项目将首开103㎡3房、143㎡4房,位于4-8号楼内。(户型仅供参考,以项目官方信息为准)房地联动价为48100元/㎡。

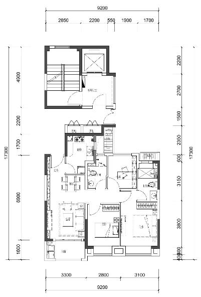
100㎡高层中间套

92㎡高层边套

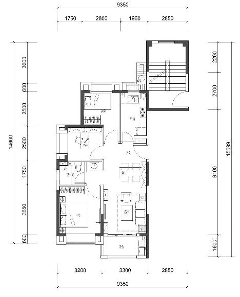
101-102㎡高层中间套

101-102㎡高层边套

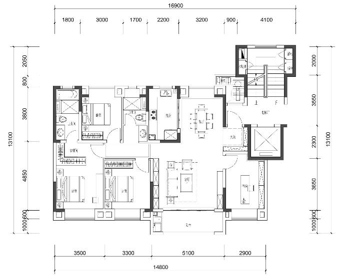
143㎡洋房

金地嘉源预计率先随二批次入市,金地峯汇此前也已开放城市展厅。想在嘉定置业的刚需改善族都可以关注起来了。
声明:本文由入驻焦点开放平台的作者撰写,除焦点官方账号外,观点仅代表作者本人,不代表焦点立场。


