45㎡上海老宅,改造后暴增30㎡,变身清新小别墅!
扫描到手机,新闻随时看
扫一扫,用手机看文章
更加方便分享给朋友
原标题:45㎡上海老宅,改造后暴增30㎡,变身清新小别墅!

设计部落:shejibuluo
你家有没有一套这样的老房子?
它狭小、阴暗,似乎听得见衰朽之声,
户型更是奇怪得令人难以忍受……
可是在它的身体里,
盛满了一家人的欢声笑语,
盛满了你成长中一点一滴的记忆。

给你一个机会,也许就有奇迹——
何不尝试将它改头换面、焕然一新呢?
曾经的“老破小”,也许就摇身一变,
化身明亮宽敞又舒适的新家,
让老房子里的温情在岁月中延续。
今天喵喵要讲的案例,
就是一个这样的故事。
❖

上海陕西南路培福里是最早一批新式里弄,
临近最繁华的商区淮海中路地段,
屋主的老房子就位于这里,
在上世纪20年代砖木结构公寓楼底层。


在高楼耸立、行人如织的繁华地段,
却拥有一片娴静美好的院落,
简直是世界上最奇妙的事情了~

它的问题与多数老房子一样,
采光差、面积狭小,设施老化......
因此,设计师面临的较大挑战,
是如何较大化改造利用曾经的“老破小”,
尽可能引入明亮光线,
使各个空间彼此独立又保持联系,
同时预留充足的储物收纳空间。
❖
先认识下两位胆大心细的设计师——

木木卡
用建筑和园林思维认真解读每个人居空间 / 用工艺和匠心营造不同诗意生活。

李梦婕Maggie
家是心灵归属地,设计营造专属和更优化的生活方式。
屋主是三口之家,80后海归夫妻,
还有他们5岁的可爱儿子。

▲ 原始平面图
原始户型为45㎡的一室一厅,
少有光线来源是面向庭院的一扇窗户,
孩子和父母同住,洗手间也很拥挤,
整个室内给人感觉阴暗又逼仄。

▲一层平面图

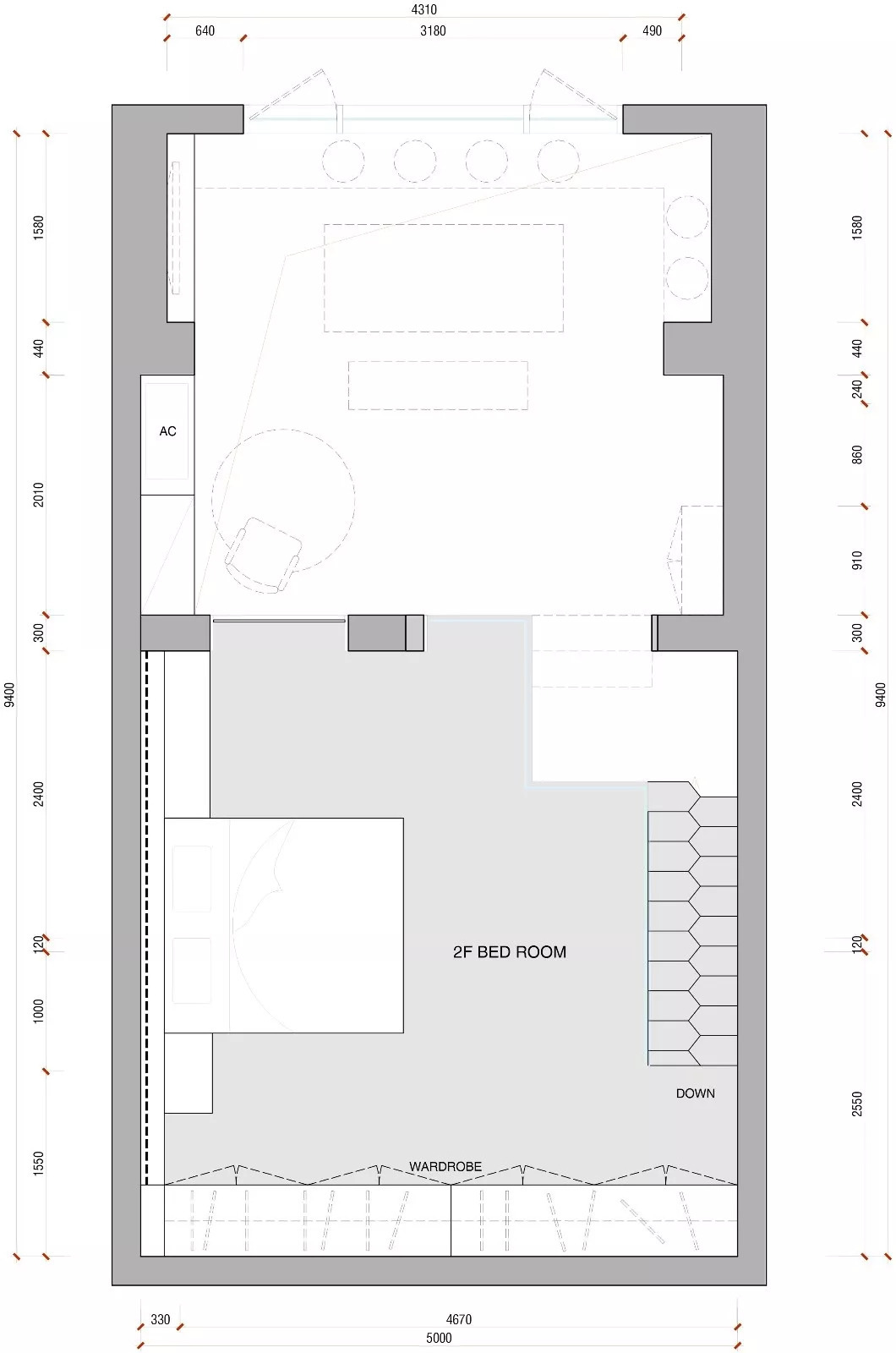
▲二层平面图
两位设计师综合考量后,
将房型增加一层,改成了时尚的loft。
原房高3.7m,将部分地面下沉一米,
给房屋重新做了钢结构加固,
地基浇筑重新做了防水防潮工程。
完工后整体空间层高达到了4.1m,
就满足了做loft的基本条件。

通过新建的钢结构楼板,
将空间分隔成两层。
一层作为主要活动的公共空间,
包括餐厅、厨房、洗手间和儿童房,
二层则是夫妻俩的主卧。
客厅

客厅本身的空间就比较迷你,
不足20㎡,还要作为主要活动场所,
因此设计师保留了客厅的完整高度,
加上前后的通透立面,
给人的感觉会比实际更开阔。


材质和颜色的选择上,
考虑到有限的预算和空间的特质,
最终决定以白色和原木色为主,
搭配浅灰色的水泥地面。
整体偏浅色的色调,可以提升亮度,
营造更加宽敞明亮的感觉~


考虑到一家人都爱看书,
设计师利用墙角结构柱后方的空间,
为他们设计了顶天立地的实木书架。
空间有限,因此客厅也兼做餐厅,
旁边的大餐桌就一物多用了~

书架顶部预留了给壁挂式空调的空间,
空调不用时可以优质隐藏起来,
还将二楼的换气管、空调管一并隐藏了。
这些机智的收纳心机,
让整个空间看起来一派清爽!

电视放在了面对餐桌的一侧墙壁上,
旁边是与整体风格相似的米色亚麻窗帘,
餐桌上方是简洁清爽的纸质吊灯。
夕阳西下时,打开吊灯,
一家人看着电视,边吃边聊,
窗外的人群、花草一并投射进来,
生活就是由这些平凡的幸福组成的。
儿童房

儿童房的设计超级有趣,
除了方形大窗,还有一扇可开启的小窗,
它成了孩子最爱的“快速通道”~

对活泼好动、爬高爬低的小男孩来说,
从客厅越过书桌直接跳上榻榻米,
可以说是一件超酷的事情~

榻榻米增加了储物收纳空间,
旁边的大衣橱可以容纳超多的衣物。
考虑到孩子的成长和学习,
设计师专门定制了高度可调的实木桌。
洗手间


浴室和洗手间是完全分开的,
两间的门都做成了不设把手的隐形门,
关上后就是一面清清爽爽的木质墙。
对于小空间来说,这种“减法”很实用哦,
分分钟有增加10㎡的既视感。

定制的浴室柜抽屉收纳,
即使面积小也要保持干净清爽。
水磨石瓷砖的地面高度微微降低2cm,
防止浴室的水面外溢。

隔壁的卫生间采用了壁挂式水箱,
地板采用同样的水磨石瓷砖。
侧面还设计了可以放置物品的木格板。
厨房

开放式厨房也是小户型的佳选,
屋主不经常开火,清洁问题不用担心。
油烟机选择了350*600mm的尺寸,
可以完全隐藏在吊柜下,
又是个心机满满的收纳妙招。

操作台选用了浅米色的人造石,
柜门全部是隐形把手,
一点一滴的用心,都为了最清爽的呈现,
楼梯


楼梯的位置是经过反复推敲后决定的,
全木的材质与整体风格保持一致。
设计师还贴心设计了交错的菱形踏步,
以方便个头较矮的孩子上下楼。

楼梯下方的空间也完全不能浪费哦~
设计师塞入了冰箱和嵌入式烤箱。
隐形的柜门内安装了反弹器,
聪明的你大概猜到了,为了隐去把手。
总而言之,一切的一切,
都为了较大化简洁这个不大的空间。
主卧

主卧地板是水曲柳的复合实木地板,
临近玻璃窗的一侧设计了长凳,
既可以做储物收纳柜,
也可以在夜晚打开靠背的灯带,
作为和家人促膝而谈的温馨角落。

这个“偷”出来的主卧有25㎡大空间,
开阔又明亮,俯视可以看到客厅,
也保证了灵活的休闲空间。


卧室内定制了4.5*2m的白板大衣柜,
内部采用了阁室美的轻质衣物悬挂系统,
全部打开后也很整洁利落。
心机收纳小结
一个曾经只有40多㎡的小户型,
住进一家5口人,还要保证功能区独立,
除了多出来的一层空间,
各种心机满满的收纳妙招也要get起来。

一层(戳图片可以放大来看)

二层(戳图片可以放大来看)
❖
看完这个案例,喵喵都心动了,
好想把老家的旧房子也改造一番啊。
房子在它有限的生命里,
默默陪伴我们一程一程长大,
房子与主人的感情,
就镌刻在每一道使用痕迹里。

我们终究敌不过时光流逝、亲人老去,
可我们还可以用一颗温热之心,
较大化延长那些美好的事物——
无论是对老房子的悠长记忆,
还是对世界如陈酿般醇和的爱意。
房屋信息
坐标:上海 徐汇
设计公司:木卡工作室
设计师:张英琦,李梦婕
面积:45m²
户型:两室
装修花费:35w
☟
——
祈愿人人能设计
人人可建造
设计部落返回搜狐,查看更多
责任编辑:
声明:本文由入驻焦点开放平台的作者撰写,除焦点官方账号外,观点仅代表作者本人,不代表焦点立场。


