吾舍-MUJI轻日系原木风
扫描到手机,新闻随时看
扫一扫,用手机看文章
更加方便分享给朋友
我来更新了~
其实现在越来越多的原木风流行了起来,日本人做东西呢,严谨简洁,尤其是设计更甚,市面上能买到的无印良品的东西还是蛮便宜的,包括一些日系的家具和摆件,所以,轻日系原木风比较适合小户型和预算不太充裕的童鞋啊,来来来上原图(无耻的腾讯崩一次我竟然找不到之前编辑的东西,这会困死)

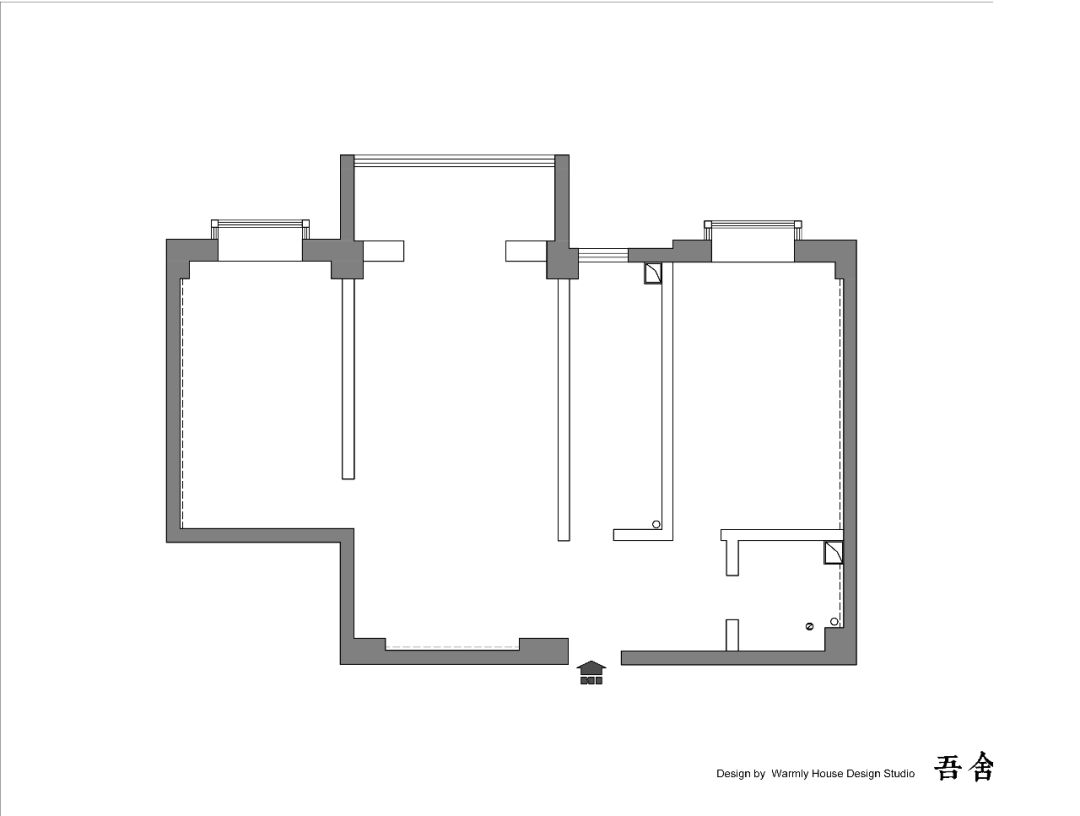
以上为原始户型,可以看到狭长的厨房和偏小的卫生间,还有墙面上各种梁。客户这面预算也不是很充裕,轻改造。上图(其实,轻质墙都砸了可以做的很漂亮啊)

由于卫生间较为窄小,两个卧室窄长,于是 将卫生间墙面想内推进60公分,留出来了独立的淋浴间(各位同学默认个尺寸,淋浴间最小尺寸为90cm,亲测有效),烟道旁边多于的地方加砌壁龛,可以放洗漱的东西,这样,卫生间就做出了三分离,洗面盆的空间加大了,然后把洗衣机拿到厨房里面(Ps:市面上的滚筒洗衣机都是上排,有个小水泵,各位家里面积不大的童鞋可以把洗衣机放在厨房里面试试,挺省空间哟,滚筒洗衣机最小高度85公分,大家注意放在厨房里面的话要注意橱柜台面哦~)
次卧也比较狭长,做了轻质隔墙,将冰箱嵌入进去(各位嵌入式冰箱美观实用了解一下哈~),原始户型进门左手有两个很讨厌的墙垛子,延伸出来了20公分,木工板做出来了十公分保证餐边柜(最小30公分)嵌入,然后做了卡座。客户这面对进门看见厨房门有讲究,于是把门改掉了,飘窗上沿加了射灯烘托氛围。

SKU鸟瞰图,轻日系卡住这几点就能做好:
1、原木色,日式的话以打柜子为例:云杉木(属于松木)或者东北松木,俄罗斯松木。一般不是板材加工,而是大料用压刨加工成方料或者板料,做出来的颜色偏向原木稍微泛白,这个费用感人,可以尝试找一些市场上的替代品或者类似颜色的饰面板,对细节有要求的童鞋还是提倡定制,毕竟机器封边收口的功夫木工手工作业是达不到的,但是现场木制也不是没有好处;
2、白色,这个话不多说,起到点缀作用,大面积的木纹色配白色可以起到淡淡的点缀作用,(如图所示)

由于鬼子这个民族独特的民族调性偏爱性冷淡,多数都是原木色+白+其他亮色,抓住这个特点,基本不会跑的太偏;
3、可以结合现在北欧风的一些元素,譬如:小白砖+黑缝、莫兰蒂灰(可以实地参考IKEA和ELLE或者ins看看国外网红的东西)直白的说,就是有质感的纯色的墙壁,黄铜元素(慎用,不好把握)网红吊灯,比如这些年流行的烂大街的分子灯,MUUTO吊灯,餐厅逼格利器,强推,网上一堆仿品质量样子都不错,vita eos羽毛灯,少女感卧室必备,mirror ball light电镀吊球灯...等等这些,再比如说壁挂置物件(木纹色一定是),圆镜,绿植,当然还有断舍离的生活态度,装修的再好,试试几天不打扫?
4、家电这些,不用说当然是以白色为主了;
这面我用草图拉出来的参考方案,放这可以参考下~

所有的嵌入式冰箱还都挺好看的,而且真的不会影响制冷。

主卧由于边上有个极其讨厌的梁边,做了衣柜比常规稍微矮了一点,石膏板吊顶封平,旁边做了轻质隔墙,衣柜嵌入感强一点,主卧床头15公分灯带洗墙,两边网红吊线灯。

再上个洗墙示意图

对了主卧散点照明,过道和顶面稍微有点落差;


卫生间壁龛、淋浴间和洗手盆,话不多说,还是原木色+玻璃+小白砖黑缝,结合北欧风做的耐看一点(喜欢小砖的同学,小砖是半瓷的,较好不要泡水,找平以后瓷砖胶上去搞,而且这个东西工费奇高,手艺再好的师傅一天也弄不了多少,还有一种做法成品的60cm*60cm的砖,上面直接4片15cm的小砖烧制好的黑缝可以直接贴,如果硬贴小砖的话,1、预留2mm的缝子,做美缝;2、网上直接有隔砖的小收口条,淘宝出品,神器,贴出来也是美滋滋。至于小花片推荐网红店:小火柴、小马哥)

门口讨厌的垛子放试衣镜,厨房封堵门的墙作为玄关,放置一个小的玄关柜,上面一盏洗墙灯(geled的7W 星光洗墙斗胆灯了解一下,照度合理显色指数高还稳定不容易坏,少有的缺点是太贵,或者kyd、雷士照明,上海企一。)

餐厅区域加了卡座,电视背景墙和餐厅区域直线灯槽吊灯拉通,电视上方没有加射灯(没必要,看灯还是看电视?)沙发区域吊顶拉通,沙发墙上方射灯,客厅区域分子灯,餐厅工业风树杈吊灯。做了餐边柜嵌入处理。

次卧嵌入的冰箱墙后面拉通做衣柜,衣柜连榻榻米现场木制书架和书桌;


原始户型窗户下沿不足85,没办法,地柜距离只能做低,嵌入的洗衣机只能这么处理;
完了施工结束以后上成品照片;
我们希望:
不是只发“开工大吉”
能天天发完工实景照片~
END
(昨天健身拉伤了,哎)看比赛,天禄加油!
声明:本文由入驻焦点开放平台的作者撰写,除焦点官方账号外,观点仅代表作者本人,不代表焦点立场。
