抢先剧透!上海5大TOD新盘“杀”到,谁更有爆款潜质?
扫描到手机,新闻随时看
扫一扫,用手机看文章
更加方便分享给朋友
TOD在上海,早已不是什么新鲜的名词。
TOD(transit-oriented development),是指以公共交通为导向的综合发展模式。
一般来说,就是以轨道交通站点为中心,以400-800米(约5-10分钟步行路程)为半径进行高密度开发,打造能同时满足居住、工作、购物、娱乐、出行、休憩等需求的多功能社区。
TOD模式示意图
出家门就是地铁口,走几步就是Shopping Mall,TOD缩小了人们的日常生活半径,同时又可以通过轨道交通便捷去往更远的地方。这样的生活,谁不爱呢?
放眼全上海,从青浦徐泾的万科天空之城,到闵行莘庄的TODTOWN天荟,再到宝山美兰湖的中集金地美兰城,每有TOD新盘入市,几乎都是屡开屡罄。
据搜狐焦点统计,2022年,上海有5大TOD新盘等待入市。有购房需求的小伙伴们,不妨提前关注一下,看看谁是值得期待的“潜力股”!

TOD新盘区位示意图
META CITY|天元府
上海西站前TOD
近日,由先进集团和金地商置联手打造都普陀内中环上海西站前TOD综合体,案名定为META CITY|天元府。
据了解,项目预计供应850套左右房源,主力户型为建面约105-148㎡,房地联动价9.6万/㎡。
META CITY|天元府是约50万㎡站前TOD综合体,体量规模巨大,由三幅子地块组成。
X101-01地块:办公楼、商业用地,容积率3.84;
X102-02地块:办公、商业、住宅用地,容积率3.5;
X103-01地块:住宅用地,容积率2.5。
项目地块规划
根据规划,META CITY|天元府将聚合超15万㎡总部办公、7万㎡商业MALL、2万㎡地下商业街、1.8万㎡独栋商业、9500㎡行政公寓、10万㎡高端住宅等多种业态。
项目效果图
目前,项目X102-02地块、X103-01地块设计方案已公示。
X102-02地块拟建5栋19-33F高层、人才公寓、商业、办公楼、社区配套以及公共服务设施等。规划464套可售房源,总建筑面积283920.88㎡,容积率3.5。
X102-02地块规划方案
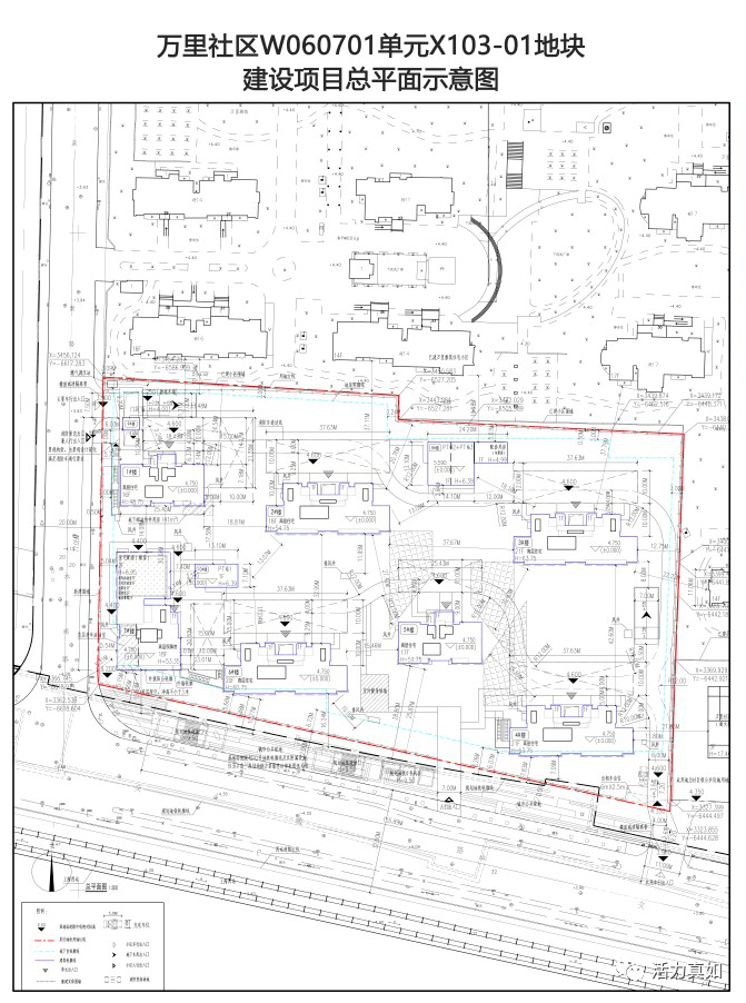
X103-01地块拟建6栋16-21F高层住宅、1栋保障房以及配套用房。规划386套可售房源,总建筑面积约63365.87㎡,容积率2.5。

X103-01地块规划方案
招商璀璨城市
9号线顾唐路站TOD
招商璀璨城市位于浦东9号线顾唐路站,是集住宅、商业、办公等业态为一体的TOD综合体,包含约9万方商业、约1.9万方办公、约4.6万方住宅及400余套自持公寓。
项目包含两幅地块,总出让面积68057.1㎡,整体计容面积163781.17㎡。
D1B-6地块为商办用地,容积率2.5,拟建7栋5-13F办公商务楼;
D1E-11地块为住宅+办公楼,容积率 2.3,需自持7%的住宅面积用于租赁。拟建6栋高层住宅,分别为:1栋11F高层住宅,2栋17F高层住宅,3栋18F高层住宅,住宅套数下限为476套。
地块规划方案
项目效果图
招商璀璨城市首开房源预计二批次入市348套105㎡户型房源,房地联动价4.5万/㎡。目前项目处于验资阶段,验资要求提供全套认筹材料PDF扫描件+200W(首套)/400W(二套)资产证明。
2号线创新中路站TOD
浦发唐城为2号线创新中路地铁上盖TOD项目,分为两个地块进行开发,集住宅、商业、办公等丰富业态于一体。
据了解,项目主推建面约85-150m²3-4房,兼顾刚需和改善需求,预计年内入市。
浦发唐城项目规划

浦发唐城效果图
C-13C-01地块将建设6栋14F的住宅,容积率2.0,住宅套数下限341套。住宅东侧是办公+商业+下沉式广场构成的综合体。
C-13C-01地块规划

C-13C-01地块效果图
目前,C-13C-01地块已经动工,将作为项目一期率先入市。

C-13C-01地块已动工
C-13B-04地块将建设5栋14F高层住宅,容积率2,住宅套数下限316套。住宅的东北侧和南侧为商业服务和文化产业配套。
C-13B-04地块规划
C-13B-04地块效果图
嘉里巨峰路项目
6/12号线巨峰路站TOD
嘉里巨峰路项目位于6/12号线巨峰路站交汇处,计容面积超过25万方,为大型商住办TOD综合体。
项目地上包含1栋办公塔楼及其商业裙房,3栋住宅楼,1栋公共租赁房及公共服务配套楼。

嘉里巨峰路项目规划方案
根据规划,巨峰路18.4万㎡的商业部分将主打“未来城市+生态峡谷”的双重概念,建成后将成为继静安嘉里中心、浦东嘉里城后的上海第三座嘉里中心。
项目为双轨交上盖,还规划了8条公交线的总站。丰富的交通资源可让该项目成为TOD级城市综合枢纽。

周边交通情况
据了解,项目将推出约60-125㎡1-3房户型,涵盖刚需和改善。
5号线萧塘站TOD
悦澜天地位于奉贤新城5号线萧塘站旁200米,由国企奉贤交能集团打造。萧塘站同样是以TOD模式开发,项目西侧是与项目同一家开发商打造的约17万方综合体。
去年年底,悦澜天地一期入市,入围分数线44.8分,开盘当日即售罄。目前,项目二期入市在即,将推出建面约86-135㎡3-4房,参考前期均价3.8万/㎡。

悦澜天地一期售罄
悦澜天地住宅由3栋洋房、7栋高层组成,共852套房源,目前还有644套将在二期一次性推出。

项目主力户型约86-135㎡3-4房,不仅保留了一期热销的小户型,更全新推出了品质更高的洋房产品,可以说是刚需友好的性价比之选。
有人说,TOD是见证一座城市交通高速发展以及土地合理规划的较好证明。
随着TOD项目的四面开花,上海城市空间被高效激活,美好生活蓝图呼之欲出。即将入市的这5大TOD新盘,既有内中环改善盘,也有刚需心头好,你会PICK谁呢?
声明:本文由入驻焦点开放平台的作者撰写,除焦点官方账号外,观点仅代表作者本人,不代表焦点立场。


