媳妇不顾反对买二手房,找熟人重新装修,完工后反而漂亮极了!
扫描到手机,新闻随时看
扫一扫,用手机看文章
更加方便分享给朋友
我和我媳妇毕业出来恋爱不到一年结婚了,从小我的家庭条件一直都很差,结婚的时候基本什么都没有,婚礼也很简单,考虑到我们家的条件,我媳妇当时连彩礼都不要,一直我都觉得很愧疚于她,结完婚后我们便去了上海一起打拼,存了三年的钱,手头上的存款也够在老家买一套80平的小窝,但是没想到我媳妇不顾反对非得要在深圳买一套37平的二手老房,家人朋友都劝了好久,媳妇还是执意买这套二手房,当时因为这件事情我们俩还大吵了一架,闹的有点不开心,装修的事情我也没管,随后媳妇还找了熟人把这套老房子重新翻修,前后花了大概3个月的时间房子终于装修完工了,我去参观的时候都懵了,房子装修完工后反而漂亮极了!全屋简洁干净又美观,真的很感谢我媳妇,后来为了感谢我媳妇,我专门去了香港给她买了一套12只的口红给她赔罪,我媳妇开心的像个孩子一样嘿嘿,如今我们也已经入住新家了,忍不住给大家晒晒我们翻修的新房啦,真心觉得很棒啊~
改造前的家

先给大家看看我们家原始的户型,这房子很窄,最宽处也就3.1m,而且它也不像照片一样属于房子的户型,现实中的户型是婉婷曲折,高低错落的,现在先给大家看看房子装修之前的照片吧!

大门一进来较先看到的就是厨房,厨房是L型的橱柜,看上去有点拥挤,还没有餐桌,日常生活非常的不方便。

厨房的一边便是老房子的卫生间啦,旁边的区域还放置了一个冰箱,里边就是卧室。


这个是卫生间,非常的局促,没有放台盆的地方,日常洗漱也都是在厨房里解决的!

这边是主卧室,放了床基本就没啥空间了,家具零散的布置,看起来有点凌乱。

从卧室处有个小小的楼梯,走上去就是洗衣房和小房间

走上来就可以看到一个神奇的小房间,空间只有7平左右,房间黑暗潮湿,住着有压抑感。

洗衣房,还贴了瓷砖,看起来很凌乱,有种潮湿阴冷的感觉
改造后的家

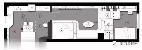
这个是我们改造后的户型平面布置图,厨房的改造上是将鞋柜、台盆、煤气灶、冰箱、洗衣机、卫生间干区,整理为L型橱柜;缩小卧室空间,增加一张餐桌,满意我们一家子的就餐,卧室结合了多功能的多功能木结构,将床、沙发、楼梯、书架等以及收纳功能放入这个空间,空间布置的很合理很不错!

这个是多功能木结构的效果设计图,一起来看看房子改造后的实景图吧,全屋真心大方漂亮!
玄关

房间的空间很小,重新规划后将橱柜的一部分空间留出来做玄关,墙上订一个木质的挂钩,进门换鞋放置随手的东西也是很方便也很简洁美观。
厨房

往里走就是厨房区域了,厨房的设计也是明智很贴心,将摘洗、烹饪、存储一气呵成,操作台旁边放了留出来一个空间,方便放置冰箱,这些做法的时候方便多了,省的跑来跑去。

L型的木质橱柜,满足厨房的收纳空间,贴心的设计了热水器,冬天就不怕洗碗被冻着啦

厨房的另外一角的空间还做了卫生间的干区,冰箱旁设置了洗手台,以及洗衣机,房子小也能做到干湿分离,空间利用的很优质,美观又实用。
餐厅

缩小卧室后,又重新调整了卫生间,腾出一块地方,放了1m长的餐桌,墙上还做了时尚好看的卡座,以后有了宝宝,也能满足我们一家三口用餐的空间啦,餐厅出也做了一个小收纳,真是寸土必争啊。
卧室


这边是主卧,右侧处的区域设计了一个整体的多功能木结构,上面是床、卡座、楼梯、下方是书架或者收纳格子,满足收纳书籍或者杂物,屋顶做了轨道,晚上可以拉上帘子,成为一个独立的空间,保证了空间上的私密性。

床我买的是舒适的软绵垫,很舒适,床的对面靠墙边上设置了木质的五斗橱,收纳我们的一些衣物。
客厅

卧室的旁边就是客厅了,因为空间上的局限,所以新房不买沙发,而是墙上设置了一个1.35m长的卡座,搭上一个小茶几桌,小小的空间看起来很舒适大方,因为平时我媳妇很爱看书,所以卡座下方和床下方都设置成了“书柜”,便于收纳平常看的书籍,所以这个区域也算是我们的书房。

另一侧是电视柜和电视机,还可以做投影仪,周末晚上看看电影也是很浪漫。

卡座过来是通往露台的台阶,向下通往下沉式小卧室,宽大的窗户,保证了室内的采光 和通风。
台阶

这个区域是往下走的台阶,利用房子高低错落的地势,定制成了到顶的高柜,解决了房间的收纳问题,非常的实用。
儿童房

我们俩虽然还没孩子,但还是准备了儿童房,之前的小黑屋通过改造变了模样,小房间做了而是室外全部防水,内墙采用了抗潮抗霉的硅藻泥,彻底跟潮湿阴冷说拜拜啦,床头处做了一个木格栅,让房间通透明亮的同时对视线起到一定的遮挡。

床旁边还做了块黑板,不仅起到安全作用,小孩子还能在上面写写画画,非常的有趣。

楼梯边上设计了小书桌,方便孩子以后学习读书,也是很蛮不错的
卫生间


餐厅旁边那隔类似玻璃盒子的空间就是卫生间的湿区啦,这样做既能节省空间还可以借光照明,比之前的小窄条宽敞明亮太多了,地板还铺设了时尚好看的花砖,淋浴区用了窗帘做个区分,很简洁干净又便捷。
房子装修完以后我觉得,家不管是二手房还是新房,只要用心装修,一样也能打造一个漂亮温馨的小家,在这里我要感谢我的媳妇和帮我们装修的好朋友,房子住着很舒适很幸福,我越来越喜欢,希望大家也喜欢,也希望这次分享能帮到大家,感恩!
声明:本文由入驻焦点开放平台的作者撰写,除焦点官方账号外,观点仅代表作者本人,不代表焦点立场。
