亚洲十大豪宅~绿城玫瑰园~(全球排名前列)
扫描到手机,新闻随时看
扫一扫,用手机看文章
更加方便分享给朋友
每一栋,世界仅一栋!
上海绿城玫瑰园,位于闵行旗忠国际别墅区
小区为纯独栋别墅,共有227户,容积率0.175%
建筑风格为西班牙式、法式、英式
每户占地面积3-10亩不等
三条天然河流,七重园林景观
双向车道及人行道等设计
得天独厚的自然条件及建筑规模
令上海绿城玫瑰园在上海别墅圈首屈一指




上海玫瑰园小区实景图
西班牙独栋,恢弘大气
占地1615.1㎡,建筑面积827.52㎡
四个套房,容纳更多家庭成员
大面宽设计,挑空玄关,尽显尊贵
窗户采用天然大理石收口
配以铝包木的尊贵门窗
精装修庭院,数十种绿植
设有泳池、草坪、凉亭、烧烤台等
多功能庭院,享受墅居乐趣




本案实景图


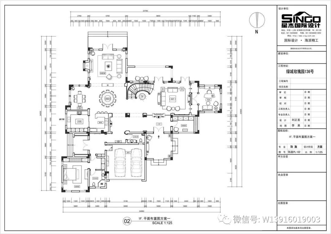
地上一层(1F)
挑空玄关,旋转楼梯,豪宅气势凸显
大面宽,落地窗,采光效果极好
会客厅与家庭聚会区分离,确保私密性

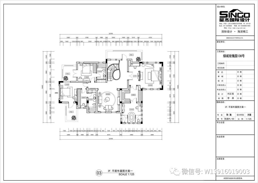
地上二层(2F)
挑高设计,居住体验感优质
三套房设计,提供足够居住空间的同时确保私密性

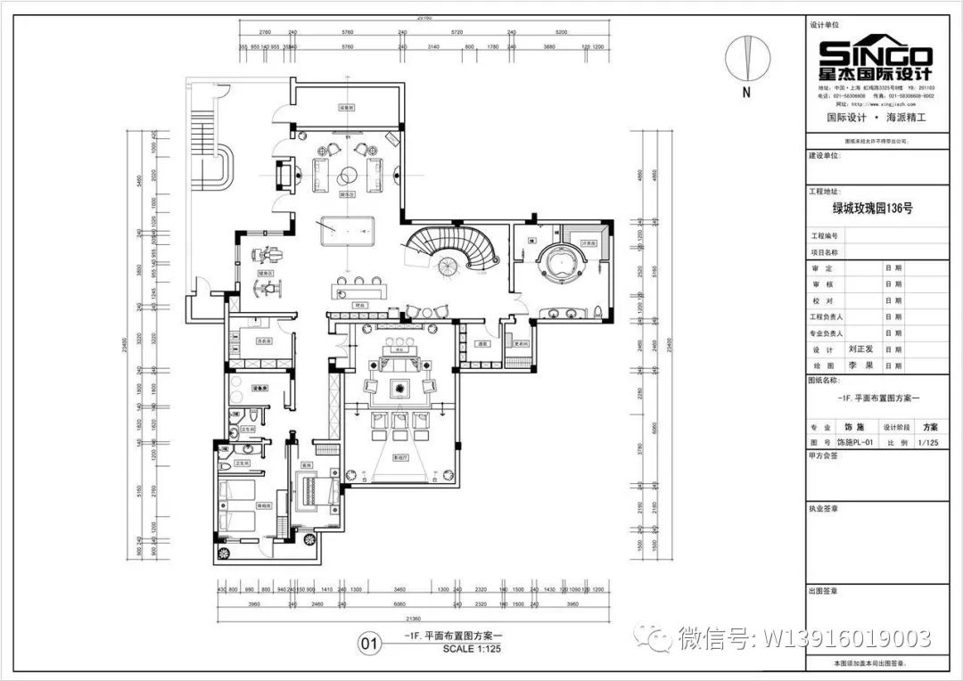
地下室(-1F)
全明地下室,空气流通性强
可设计影音室、棋牌房、运动空间、SPA、桑拿房、红酒窖、洗衣房、佣人房等多功能空间,收纳贵族的兴趣爱好









上海绿城玫瑰园周边配套
上海绿城玫瑰园所在的旗忠国际别墅社区
云集上海市先进高端配套,如:
全亚洲仅三座的~安缦酒店之一
英国德威国际学校(家庭有外籍护照,方可就读)
民办德宏双语学校(有上海居住证、名下有房,方可就读)
占地千亩的森林体育公园(森林氧吧)

高端惠林顿国际学校(待建中)
高端联仲商业中心(在建中)
现有并成熟运营的旗忠高尔夫球场、旗忠网球场、昆阳湖乐园
嘉闵高架在元江路有上下匝道,实现了出入繁华,入则宁静

安缦酒店

德威学校、德宏学校校区

旗忠高尔夫球场

嘉闵高架

马桥森林体育公园

国际网球中心
恭迎品鉴!
声明:本文由入驻焦点开放平台的作者撰写,除焦点官方账号外,观点仅代表作者本人,不代表焦点立场。


