【尔湾】尔湾公司打造新盘,紧挨光谱中心,豪华社区,超低房产税和HOA,纯独栋别墅!
扫描到手机,新闻随时看
扫一扫,用手机看文章
更加方便分享给朋友
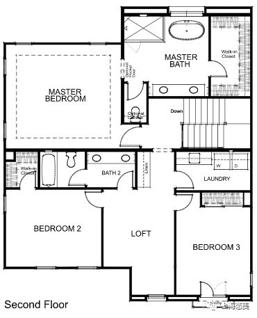
Barcelona社区是由建筑商Irvine Pacific在尔湾打造的新盘,共设计了3款户型:西班牙风格、意大利风格、以及经典风格。3款户型的基础户型都是4房3浴的设计、统一都配备一个双车位的车库,每一款户型都有设计位于一楼的一房一浴。

建筑商同时也提供了一些可定制的选项,包括可选择的书房、以及卫浴间定制等选择。小区设有安全大门,房屋类型均为独立condo(Detached Single Family Home ),共计将建造169栋别墅,社区费用(HOA)为:$150/月,地产税大约为1.2%。

Barcelona小区的地理位置非常好,除了紧邻光谱中心之外,日常购物以及健身房等也都在街对面,生活十分便利,同时小区里面以及旁边的社区公园都正在建造中,完工后将为居民提供更多的户外运动以及休闲空间。

作为尔湾全新豪华社区,小区设有安全大门,四周有围墙,没有申请进入的外来人员不能入内,加之安保人员不断巡查,保证业主的居住安全。
Barcelona小区的住户将享受到Barcelona小区公园和Los Olivos社区公园的全套设施,这两座公园都是全新建造的公园。

Barcelona小区公园是小区专属公园,预计将在今年夏天完工,公园内将配备5泳道的游泳池、SPA、烧烤及野餐区、草坪、凉亭等。

Los Olivos社区公园的预计将在2018年年底完工,公园内将配备:社区中心、灯光足球场、灯光棒球场、灯光网球场、灯光篮球场、烧烤及野餐区、儿童游乐场、凉亭等。

Barcelona小区连通了超过57,000英亩受保护的开放空间,小区旁有San Diego Creek Trail。小区距离Laguna Coast Wilderness Park仅几分钟的路程,该公园拥有超过40英里风景优美的步道,住户能轻松享受到这郁郁葱葱的山谷以及太平洋海景。Barcelona小区的位置非常便利,只需要几分钟的车程住户就可以到达美丽的拉古娜海滩享受海滨周末。
尔湾光谱中心-Irvine Spectrum Center®

光谱中心是尔湾市较具人气的商业中心,汇聚超过130家优质的店铺、拥有Target、Apple Store、以及巨幕电影院等,是一站式的购物、餐饮、及休闲娱乐中心。而Barcelona小区的住户可以通过小区旁边的San Diego Creek Trail直接走路去光谱中心。
Los Olivos® Marketplace

Los Olivos Marketplace是Los Olivos社区购物中心,距离非常近,Barcelona小区的住户直接走路过去就可以,该购物中心拥有超过35家店铺、拥有Whole Foods Market、 Puesto、Angelina’s Pizzeria Napoletana、24 Hour Fitness、Starbucks等,轻松满足居民的日常所需。
Quail Hill®Shopping Center

Quail Hill Shopping Center是临近的一个社区购物中心,从Barcelona小区过去大约需要10分钟的车程,该购物中心设有银行、餐厅、购物店等三十多家店铺。
Barcelona小区地处品质先进的尔湾联合学区,小区的孩子将可以就读尔湾市优秀的公立学校,目前的划分情况是:2018至2019学年,Barcelona小区的孩子将就读以下学校:
小学:Cypress Village Elementary School(加州杰出学校)
初中:Rancho San Joaquin Middle School(加州杰出学校)
高中:Portola High School(Best of the Best K-12 Education Award in California and the Nation)、University High School(加州杰出学校、美国蓝丝带学校)
高中的孩子根据年级被划分到两所学校:9-11年级的孩子将在Portola High School(Best of the Best K-12 Education Award in California and the Nation);12年级的孩子将在University High School(加州杰出学校、美国蓝丝带学校)

根据目前的规划,到了2019至2020学年及以后,学校的划分会有一些调整,届时,Barcelona小区将被划分到下面的学校:
小学:Alderwood Elementary School(金丝带学校)
初中:Rancho San Joaquin Middle School(加州杰出学校)
高中:University High School(加州杰出学校、美国蓝丝带学校)
本期推荐新盘 —— Barcelona at Los Olivos Village
Barcelona 由巴塞罗那设计,配有最精细的细节和特色,让您享受各种可能性。
在这你可以体验加州风格的较佳生活,这是一个综合空间,全景式落地滑动玻璃门将室内优雅与户外光彩融为一体,在每个家庭的中心创造一个连通空间,适合聚会,娱乐和放松。
巴塞罗那的房主可享受一楼的卧室和现代化的厨房。 私人度假式休闲娱乐为这个封闭式社区带来户外乐趣和休闲。

地址:310 Gitano, Irvine, CA 92618
户型 1
4房3卫 2302尺 137万美金















户型 2
4房3卫 2466尺 142万美金













户型 3
4房4卫 2637尺 155万美金


















尔湾
Irvine
尔湾(Irvine)是位于美国加州橙县中部的一个合并城市,于1971年12 月28日建市。主要是由20世纪60年代由一个叫尔湾的私人房地产公司发展而成的。她合并了北部的不发达的区域, 同时也合并了前埃尔托罗海军陆战队航空站,大部分的面积成为了橙县大公园的一部分。

01|地理位置
Location and Communication
尔湾市坐落于加州的技术海岸中心,总面积180.5平方公里。它位于高速公路405号和5号公路之间,两条公路往南并为405线道,可通往圣地亚哥。三个出口Jamboree,Culver,Jeffrey都属于尔湾市的管辖区。从尔湾市出发,走5号去迪斯尼乐园,只有二十分钟车程。

02|人口结构
Population Structure
尔湾人口大约为21万,主要居民是中上阶层家庭。该城市的种族结构包括白人61.06%,黑人0.18%,亚裔美国人29.83%,其他种族人2.54%,西班牙裔7.39%和混血4.82%。
03|环境气候
Environment
尔湾像大部分的南加州的城市一样,具有地中海气候。夏天由暖转热,冬天凉, 但是气温很少降到冰冻温度以下。在尔湾,雨水主要集中在冬季,尽管冬天没有雪,但偶尔还会出现霜冻。

04|生活配套
Living Facilities
尔湾是全美规划最良好的城市之一。拥有最宽阔的开放休闲空间和完善的社区服务设施,超过1万6千英亩的土地用于公园和开放休闲空间。尔湾市有超过40英里的自行车道,可以骑到山上或海边,其中包括一段近40分钟沿太平洋的路程都海风徐徐,风景优质。

尔湾有两个华裔大华超市,有四个韩国超市,也有日本超市。中餐馆很多,新鲜蔬菜,有机食品的超市很方便。尔湾较大最全的购物中心Woodbury Town Center里面有银行,加油站,Trader Joe's和Ralphs Fresh Fare等超市,Starbucks咖啡,Niko Niko Sushi等风味餐厅,First Class Pizza等快餐店,家装用品店The Home Depot,健身房LA Fitness,此外还有干洗店,眼镜店,理发沙龙等。


05|学校评价
School Evaluation
尔湾的学区闻名全美,城市拥有强大的师资力量。学校教育水平高,生源优良,经费充裕。尔湾联合学区拥有22所小学,6所初中学,4所综合性高中,2所替代教育中心,培育超过30,000名多元背景的学生。高中以University High School, Rancho San Joaquin Intermediate School, Northwood High School 尤其出色。


【洛杉矶】推荐一套自住、出租性价比很高的独栋别墅,65万美元
声明:本文由入驻焦点开放平台的作者撰写,除焦点官方账号外,观点仅代表作者本人,不代表焦点立场。


