方案 | 城市的建筑:浦东美术馆竞赛方案 / 大舍建筑设计事务所
扫描到手机,新闻随时看
扫一扫,用手机看文章
更加方便分享给朋友
2015年11月,大舍建筑设计事务所与Jean Nouvel、SANNA、David Chipperfield、Open、如恩以及同济大学建筑设计研究院共同获邀参加浦东美术馆的国际竞赛,大舍的设计提案未能进入第二轮深化比选。
2018年,大舍主持建筑师柳亦春再次提及浦东美术馆这个方案,还是深感惋惜。在大舍的设计中,这既是一栋“作为美术馆的建筑”,更是一栋“城市的建筑”——“在这个时间与地点的上海,我们几乎已经准备好,去迎接一个优秀美术馆的出现,一个可以为这个城市贡献——与黄浦江一同奔涌流动的——更具开放性与公共性的文化空间。”

浦东美术馆大舍方案 沿江渲染图 ©大舍建筑设计事务所
项目地点 上海市浦东新区滨江大道、明珠塔路
方案设计 大舍建筑设计事务所
建筑面积 28500平方米
设计时间 2015.12-2016.2
浦东美术馆选址在上海浦东的小陆家嘴,紧邻黄浦江,背倚东方明珠电视塔,与外滩从南京路到福州路这一黄金区段遥遥相对,是黄浦江沿陆家嘴转弯及与苏州河的交汇区域。
区位分析图 ©大舍建筑设计事务所
这一选址的重要性决定了,与其说这是一个美术馆的建设,不如说这是一个借助于美术馆所做的更大范围的都市更新计划,它需要带动更多城市要素的更新与复兴。对于一个未知藏品的美术馆,它更多地将从艺术特展开始,意在构建城市公共空间和公共艺术活动。因此这既是一栋作为美术馆的建筑,更是一栋城市的建筑。


浦东美术馆模型图 ©大舍建筑设计事务所
作为城市的建筑,它将面对来自城市景观的压力,并考虑着如何作为一个积极的更具公共性与开放性的空间回应城市景观与城市生活,活化所处地块的周边环境并辐射至更远的范围。

区位分析 ©大舍建筑设计事务所
经过视线分析,从外滩方向看过来,美术馆在30米左右是恰当的高度,顶部下凹的曲线造型与东方明珠电视塔相互协调。在建筑形态设计上,从适应地块周边的基地形态到面向黄浦江对岸外滩的陈毅广场方向(同时也是黄浦江转弯半径的法线方向)的大约30度的扭转,是我们对这个地块与城市关系的一个重要理解。黄浦江是上海市区最完整的自然,小陆家嘴的一弯是最重要的景观段,通过一个含在内部的坡,建筑有着黄浦江的自然地形般的空间处理,将黄浦江的空间引入内部,并通过室外阶梯和坡道从不同高度、方向定义了建筑与黄浦江及其对岸景观的关系。

建筑景观地形策略 ©大舍建筑设计事务所
作为美术馆的建筑,它以自身的艺术与文化属性对城市产生着影响,同时城市对美术馆展览空间的公共性与开放性也提出了新的要求。从国际范围来看,美术馆自身的运营也正在深刻地影响着美术馆的功能构成。

室内空间 ©大舍建筑设计事务所
本次设计有意通过美术馆面对东方明珠电视塔的城市这一侧,也就是它的东立面,将美术馆以剖面的方式暴露给城市,以期建立一种新的美术馆建筑的公共性。人们在城市中,不论是东侧公园还是东方明珠下的高架步道,均可透视至美术馆的内部,随着一天不同的明暗时段,阴天或晴天,美术馆通过内部遮阳设施的开合,将在它的这一面展现或隐或现的内部风景。而通过高架步道与城市的步行系统连为一体的上部室内艺术公园,既为城市生活构建了一处具有强烈地理方位特征的极具艺术氛围的公共空间,也为美术馆的良性运营提供了可能性。


展厅的公共性与开放性 ©大舍建筑设计事务所
步行系统分析图 ©大舍建筑设计事务所
这里既有公共艺术陈列,又有诸如书店、艺术与设计品店、咖啡和餐厅、公共论坛和表演等多功能复合空间,从功能流线上,在美术馆闭馆后,室内艺术公园仍然可以对市民开放至深夜,而穿过美术馆的高架步道则是24小时开放的公共空间。



各功能室内空间 ©大舍建筑设计事务所
设计通过将两种不同尺度的结构形式并置在一个建筑里,诠释着作为美术馆的内部展览空间,以及有着城市尺度的上部公共空间。

分析图 ©大舍建筑设计事务所

©大舍建筑设计事务所
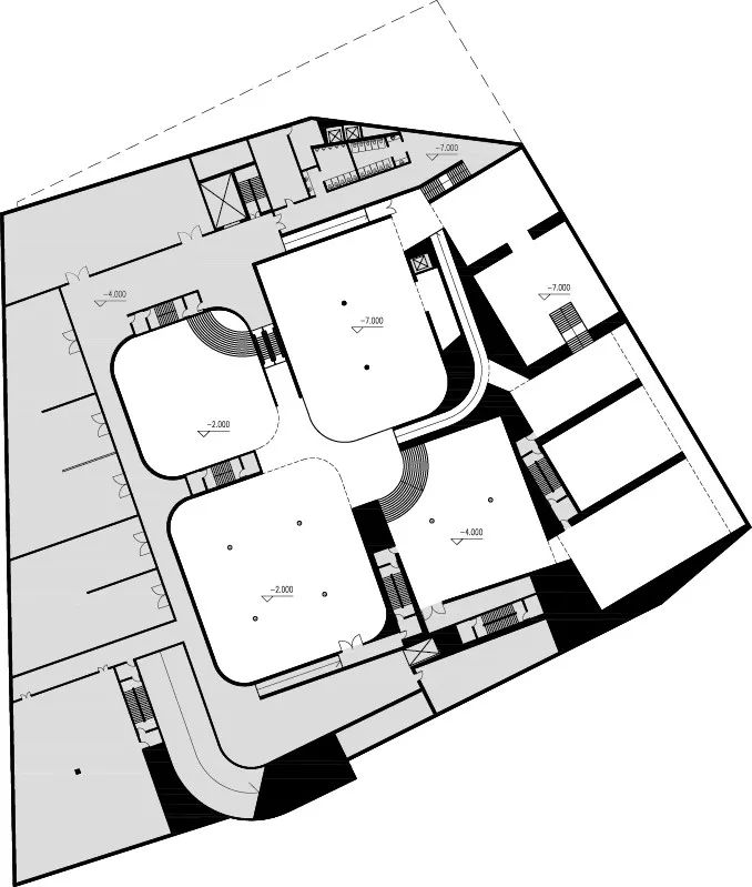
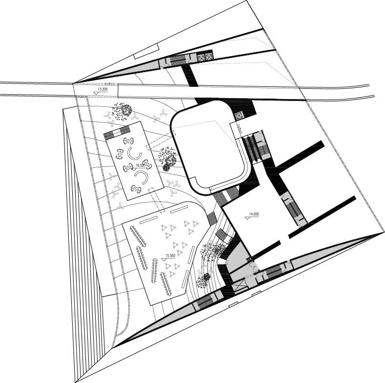
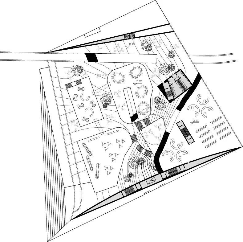
设计图纸

首层平面 ©大舍建筑设计事务所

2至7米标高平面 ©大舍建筑设计事务所

8米标高平面 ©大舍建筑设计事务所

14米标高平面 ©大舍建筑设计事务所

16至20米标高平面 ©大舍建筑设计事务所

24米标高平面 ©大舍建筑设计事务所
沿江立面 ©大舍建筑设计事务所

剖面 ©大舍建筑设计事务所
完整项目信息
项目名称:浦东美术馆(国际竞赛方案)
项目地点:上海市浦东新区滨江大道、明珠塔路
设计团队:柳亦春、陈屹峰、王龙海、南旭、沈雯、王伟实、周梦蝶、丁洁如、陈昊
建筑面积:28500平方米
设计时间:2015.12-2016.2

视觉 / 李茜雅 校对 / 胡康榆
本文由大舍建筑设计事务所授权有方发布,欢迎转发,禁止转载。
声明:本文由入驻焦点开放平台的作者撰写,除焦点官方账号外,观点仅代表作者本人,不代表焦点立场。


