总投资14亿!1038户华新动迁二期11月18日动工!三期亦不远!
扫描到手机,新闻随时看
扫一扫,用手机看文章
更加方便分享给朋友
11月18日
华新镇安置基地二期破土动工!
快随小西到现场看看!
开工排名前列桩

施工现场



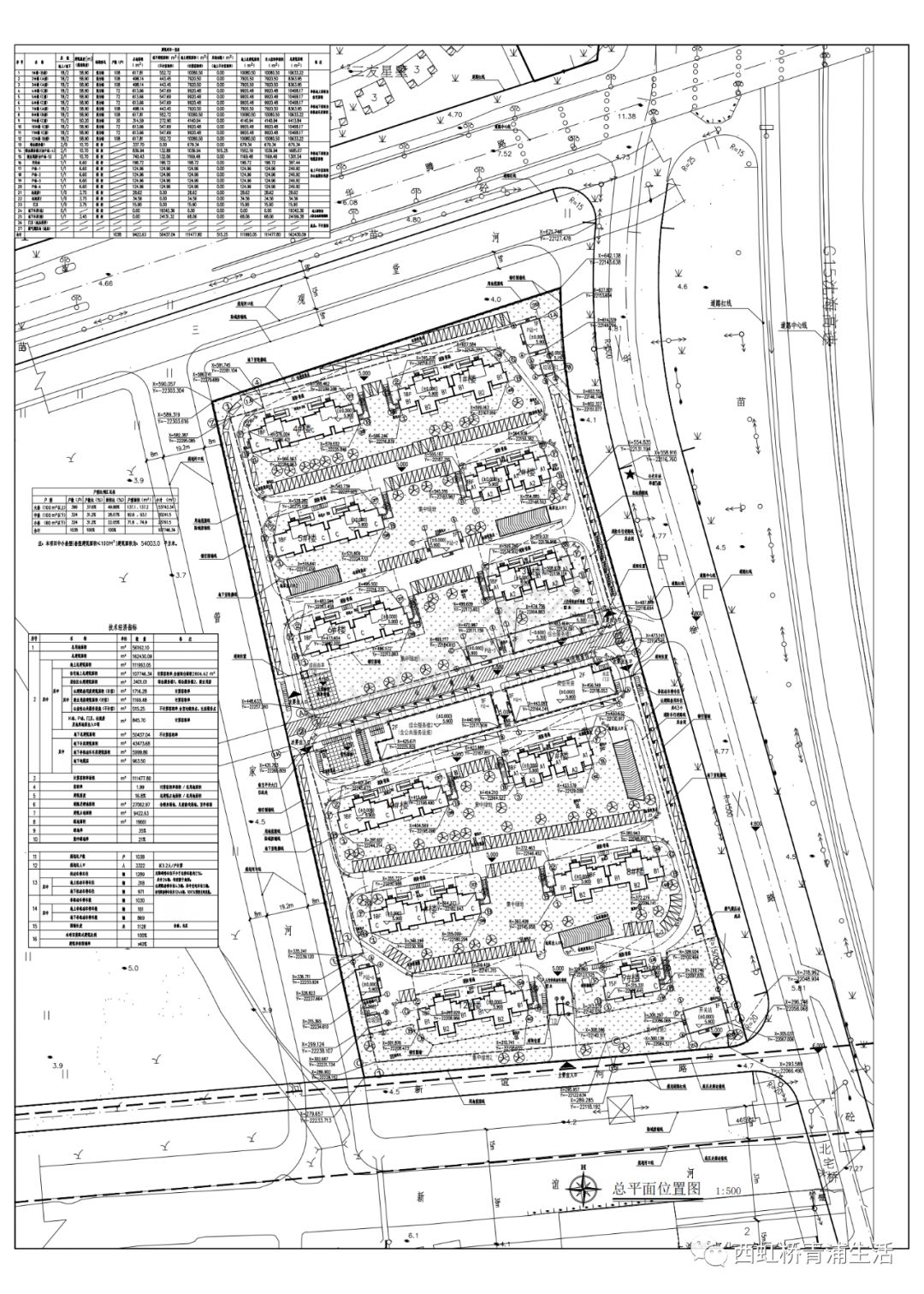
华新镇二期动迁安置房位于华新镇东至华徐路、南至新谊河、西至管家河、北至三观堂河区域。

项目总建筑面积162430.09平方米。其中,地上总建筑面积111993.05平方米,地下总建筑面积50437.04平方米,分别由11幢18高层住宅楼、1幢15层住宅楼、2栋二层商业用房、一幢单层综合服务楼和1个全地下停车库组成。

项目建成后预计可入住总户数1038户,分别有A、B、C三种户型供动迁户选择。经初步设计,本小区绿化率达到35%,机动车停车位达到1279个。

目前,项目已列为青浦区重大项目和华新镇十大实事项目,预计2019年底基本完成结构封顶,2020年底全面竣工,2021年上半年交付使用。
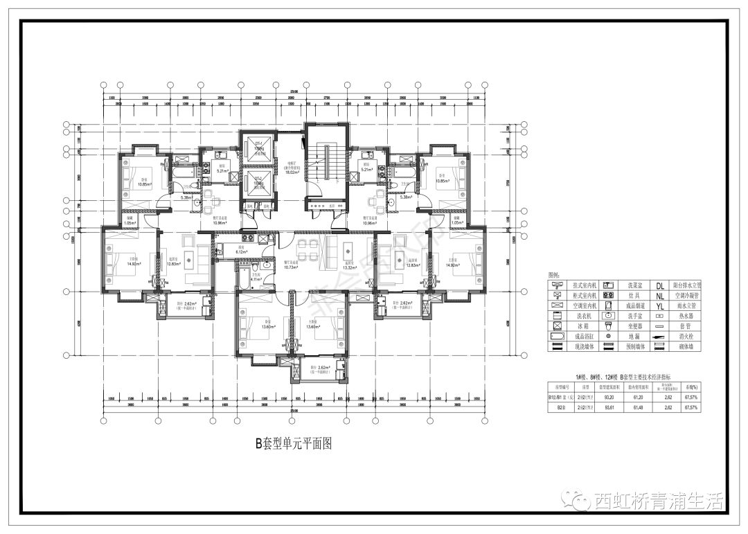
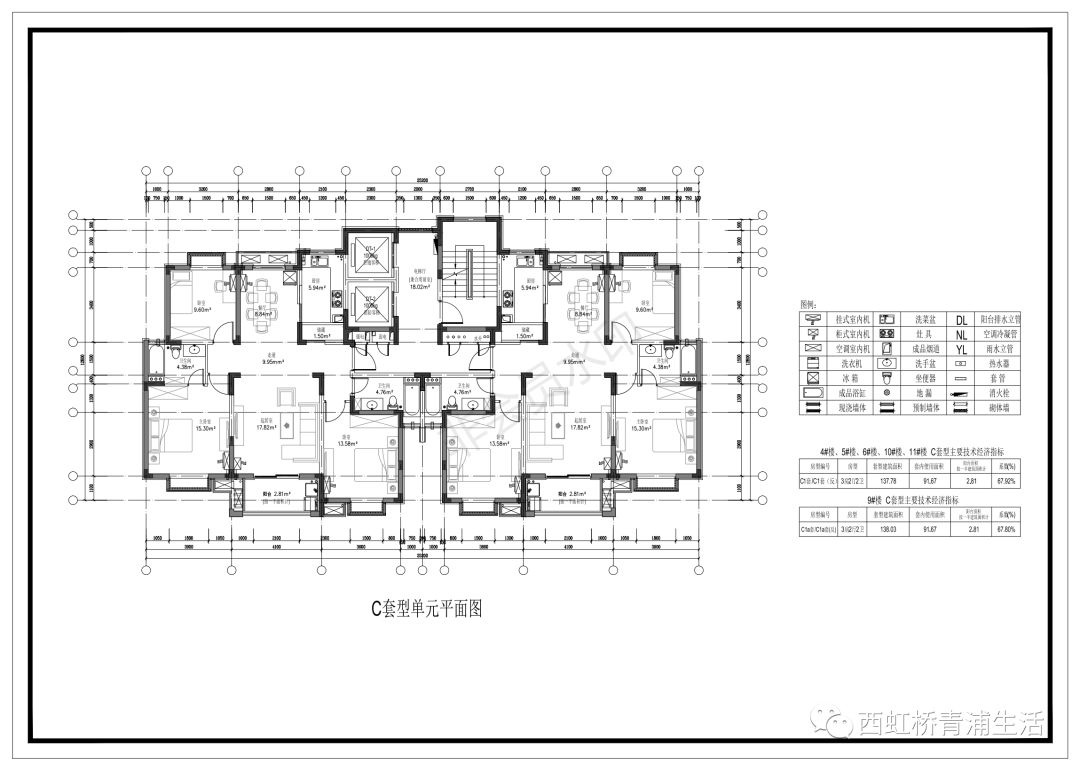
华新动迁房二期户型设计图





最后小西给你们透露下
动迁房三期也在这块区域哦!
隔壁金茂集团的项目也准备动工
上周刚看过了徐泾蟠龙馨苑的新房
大家都觉得品质不错呢
动迁房的品质越来也好!
延伸阅读:
金茂集团重掷17亿的华新住宅用地准备动了!楼板价2.1万,就在动迁房旁!
总投资14亿,总面积16万²,华新「二期动迁房」平面户型图来了!
共1572套,近20万m²!大徐泾高品质动迁房「蟠龙馨苑」来了
欢迎和西虹桥小溪交流
更多规划资讯你懂得
需要加西虹桥青浦本地群交流的请加小溪留言
阅读原文,查看往期规划
来源:华新视野
声明:本文由入驻焦点开放平台的作者撰写,除焦点官方账号外,观点仅代表作者本人,不代表焦点立场。


