站在客厅看丁香花园和丁香别墅
扫描到手机,新闻随时看
扫一扫,用手机看文章
更加方便分享给朋友
丁香大楼:华山路894弄近武康路复兴西路,小区共两栋(1/2号楼),总高18层,2T8H,户型73平-108平2房/3房为主,物业费超低(0.85元/平/月),
卖点:
1,重点名校学区:江苏路第五小学(昭化东路81号)300米,市重点学区房,安福路247号--爱菊小学(私立)约450米,世界小学(武康路280号)约650米;延安中学500米,五原路幼儿园(五原路400号)约350米,中福会幼儿园(华山路639号)约500米,上海戏剧学院等
2,知名“小资情调”:对面申粤轩,夏都餐厅,镇宁路COSTA COFFEE,安福路JUSTGRAPES,像夏味馆,唐宫等均在500米范围各式传统知名餐厅,
3,生活:门口世纪联华超市;兴国宾馆,龙之梦大酒店,日航酒店等知名星际酒店;华山医院,华东医院知名三甲医院等各式配套均在100米--2公里范围,
4,LOCATION:华山路,老上海知名马路(上篇有介绍),丁香别墅隔壁,丁香花园对面,各式老洋房林立的背后意味着老上海过往的贵族之地!

本案推荐1:丁香大楼2号503,74.23平 760万净,户型改成朝南一房,目前外国租客(1.3万/月),5年前装修,一直外国白领入住,保养很好,看房每周六上午方便,
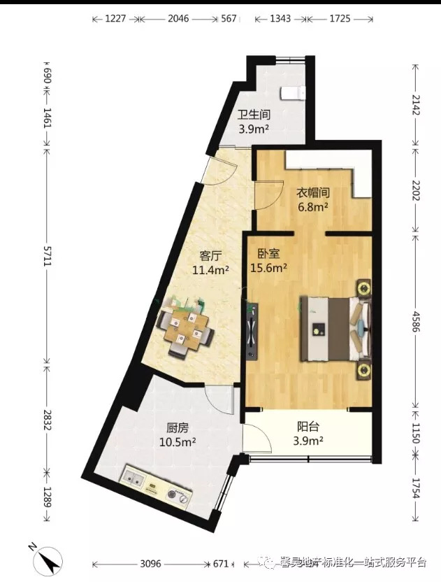
户型图

客厅




朝东厨房




阳台景观

小区环境

本案推荐2:丁香大楼2号901,80.3平2房,800万净,
户型图

朝北厨房


客厅


朝南卧室


朝北卧室


朝东卫生间

外景图

小区景观

丁香大楼:或许您会觉得她房龄老,您会觉得她每层户数多,您会觉得物业便宜没有管理;但是如果您过来看看楼道,看看小区干净程度,您就会问我业主大部分是什么人在住,您了解丁香大楼的前身和故事,您就会知道楼盘的质量为什么这么好!结合前面的配套,丁香大楼应该可以评为上海易居小区之冠!

(以上图片和部分文字素材来源于网络,其著作权与所有权归原作者所有;如原作者要求我们停止使用,请及时联系我们)
Meny团队:本团队2010年进入上海房地产经纪行业,进入镇宁路高档住宅区服务周边业主,近8年的中高端豪宅的服务经验,周边嘉里华庭,东方剑桥,汇贤居,华山夏都,嘉天汇等高端楼盘成交过多套,本团队创造了单月成交镇宁路周边包括嘉里华庭,汇贤居,东方剑桥,华山夏都等11套千万以上豪宅,当月近2亿销售额的历史记录。
馨昊地产一站式服务平台:中国合伙人式的经营模式;最早的2010年进入房地产经纪行业,从业人员均在2年半以上,镇宁板块华山路高端豪宅客户的实际服务经验,造就了馨昊人服务排名前列的理念,本团队二手根植于中高端豪宅产品,我们主营业务包括两部分:
1,一二手房租售
2,房屋托管服务:房管家打理/家政/搬家/房屋设计装修/房屋维修/各类家具新购更换/管道油烟机清洗/其他相关社区服务等一站式服务类别!
我们的文化:品质专业,共赢感恩 !
我们的使命:让客户安心,省心,开心!
我们的愿景:成为行业先进标准化一站式服务平台
因为专心,所以专业
因为专注,所以精通
END
声明:本文由入驻焦点开放平台的作者撰写,除焦点官方账号外,观点仅代表作者本人,不代表焦点立场。


