直击认筹!静安府东区收官取证,“王牌”户型归来,此次开完只能二手见了!@楼市特别
扫描到手机,新闻随时看
扫一扫,用手机看文章
更加方便分享给朋友
12月2日,我们《楼市特别》排名前列时间向大家爆料了静安府东区取证并开启认筹的消息,可复习文章盘点!12月刚开始,又有四盘“扎堆”认筹!附一房一价表、户型&样板间爆料@楼市特别
消息发出后群里不少小伙伴询问认筹情况,我们也排名前列时间赶到现场,虽然这周天气不大好,下雨又降温,但就是这种天气,静安府现场热度不减,据我们在现场了解到认筹已破200组!以下是认筹现场实拍照片,满眼望去People mountain people sea~




还记得今年8月,静安府东区开盘,总房源数298套,366组有效认筹,当日公寓住宅去化率超90%,这也是静安府自16年首开至今再一次热销,其实今年静安府也是开盘过三次,战绩都不错,算是当之无愧的“红盘”。
本次静安府东区再次取证,房源数234套,户型为建面约95-118㎡3房、147㎡4房,均为精装交付,预计2019年年底交房。(关于价格,可拉至文末,详见完整一房一价表)
项目现在认筹中
感兴趣的小伙伴可扫下方二维码
进入少有官方预约通道
了解更多认筹、价格、户型等信息
01
—
见证新静安、大宁板块价值飞升
静安府东区收官取证!
新静安合并3年以来,从“中环两翼”发展带、南北二通道到大宁久光、新静安体育中心…… 话题就一直没离开过大宁!我们许多热心粉丝作为大宁土著也直呼:新静安、大宁板块发展真是飞起~
更在11月29日,新静安一幅纯住宅用地挂牌出让,将以30.5亿底价拍出!备受大家关注,目前已确认有效申请人数1人,也可复习我们当时的地块解读突发:新静安纯住宅用地 确认本月即将30.5亿底价拍出!
该地块与静安府隔南北高架相望,起始楼板价为4.66万/㎡;而2015年出让的华发华润联合地块(静安府),平均楼板价:3.66万/㎡,足足高出了一万;而2016年出让的,新静安中兴地块楼板价:10万/㎡,可以预想未来静安府的升值潜力之大,而待出让土地也保持了区域房地产市场的新鲜度和活跃度,撑起了新静安的全新规划。

大宁作为新静安重点发展区域,商业综合体、产业、基建等都已经非常丰富。
目前已有多个商业综合体:如大宁音乐广场、大宁国际商业广场、静安大融城、大宁久光(据说年内会开)、协信星光广场等…消费能级从大众化到高端化,涵盖面很全。交通有南北高架、南北二通道、中环路高架、1号线、汶水路公交枢纽等。
目前大宁已有的产业市北高新园区、大宁多媒体谷、环上大国际影视产业园区、协信办公园区、静安新业坊文化创意产业基地。文化地标还有上海马戏城和大宁剧院。

见证新静安飞速发展的同时,我们也见证了大宁板块内新房的迅速去化。
今年我们已经跟金茂府的公寓住宅say goodbye,静安府也已第四次取证,东区住宅即将收官!
几个IP新盘剩下的未取证主力房源也以复式别墅为主。(除了静安府之外,大宁金茂府和揽翠艺墅都只有叠墅了,静安慕舍已经超过1年没有加推,前期房源建面164平米4房,之后预计加推的公寓住宅仅有1幢。)而这一次静安府东区收官取证,开完也只能二手见了~
02
—
堪称“史上最全”三房
最后72套 118平“王牌”户型归来!
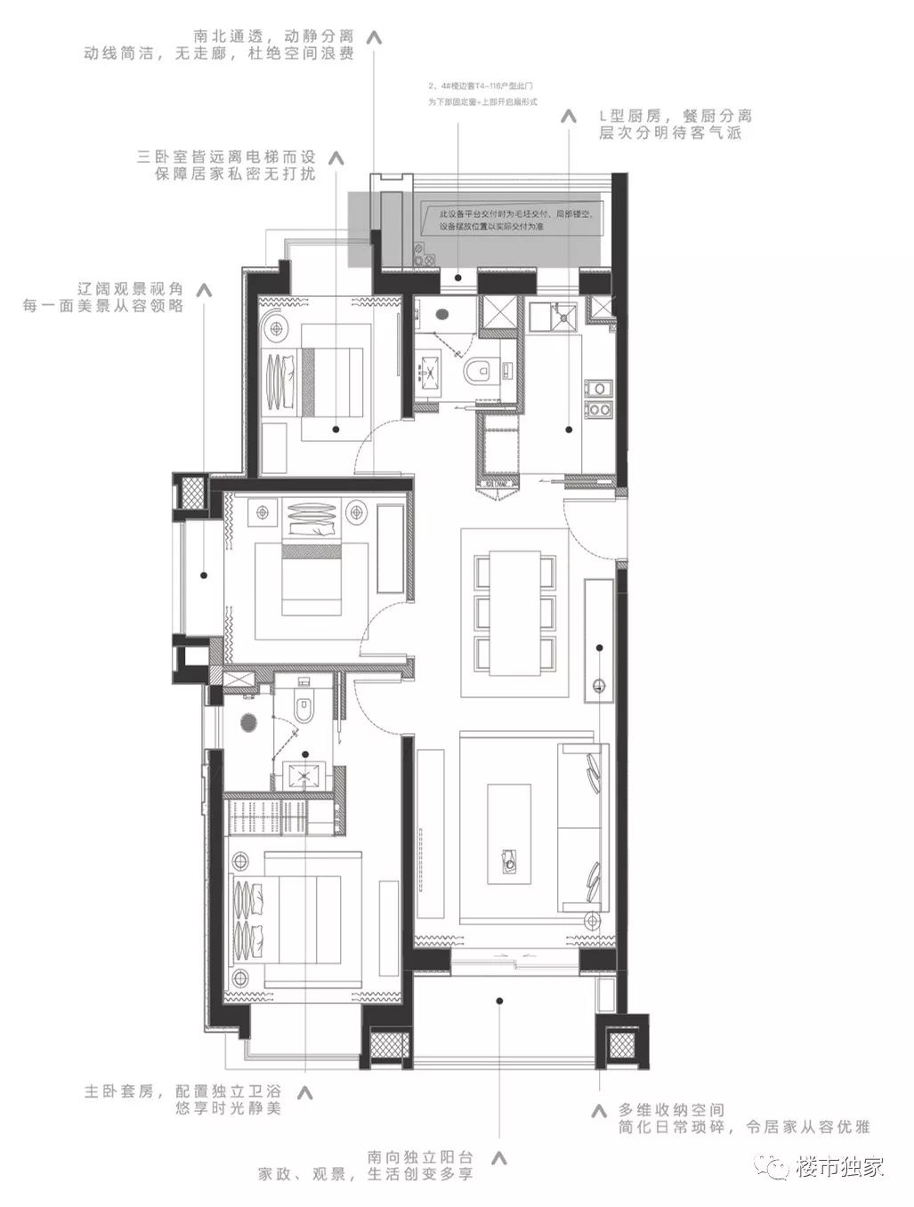
作为静安府东区最后一批的公寓住宅,户型分布堪称静安府“史上最全”!
本次预计推出的高层住宅为3、4幢,靠小区中心位置。面积段约95、111、114、118、147平,共计234套。

楼座分布图
118平三房 “王牌”户型归来
重点来看看静安府东区本次“压箱底”的118-T2户型,最早出现在2016年华润静安府首次开盘时,此后再也没有“准一梯一户”的118户型入市,而且这次只有72套,清完这批,在大宁板块这样的3房等于“少有”了。
这个面积段的南北通+三开间朝南+准一梯一户的三房,在市区项目中已经非常稀缺。同样是大宁板块的二手房,宝华差不多的户型,要达到144平米的总价段才能买到同样的格局设计。
对市区新房来说,准1梯1户多设计于在大面积段的平层,(私密性强+电梯到入户门的空间也可以就近使用),在120平以下的小面积段,非常罕见。


95平米 三房两厅两卫
95平米的3房,非常适合家庭成长周期,无论是小夫妻自住、三口之家,都可满足居住需求。户型十分方正,动静分离。3房设计,功能性和空间利用率上做得很到位。3开间朝南,且3个卧室均带飘窗,北向房间可布置为书房。

111平米 三房两厅两卫
111平米的户型双开间朝南,动线设置合理。卧室均有飘窗。L型厨房可以合理分配烹饪空间。强大的收纳系统让空间利用率更高,较为适合二胎家庭。

114平米 南北通 三房两厅两卫
114平米的户型空间感更大,自由度更高。无论是夫妻婚房、三口之家、二胎家庭、与老人同住均比较推荐。南北通透,位于边套,采光更佳。3个卧室均远离电梯而设,位于中间的卧室设有观景角,居住环境视野更好更安静。

147平米 四房两厅两卫
147平米的户型是本次高层房源中面积较大的,少有的四房公寓住宅,即使是二胎家庭居住,还能余出一间作为书房。
一梯一户设计,私密性和空间感俱佳。主卧+衣帽间+独立浴室的套间设计更具有平层的舒适度和质感。3间卧室做了飘窗,南向阳台连接客厅,保证足够的进光量和日照。

03
公园式景观已实景呈现
带给业主满满归家仪式感
静安府的社区采用海派特色的公园式景观设计,内部景观面积约7万平米,相当于两个“静安公园”那么大。
10年以上树龄的银杏阵列两侧,石材景墙与艺术雕塑构成的迎宾大道,园区内丰富树种,四季常青,约25种乔木,33种灌木,29种开花植物。归家仪式感满满。


静安府在社区景观的工艺打造上也是下了手笔的,小区里的雕塑都有讲究。由整石打造的花钵、精细打磨的铺装、水景石材按形切割、铁艺激光切割、石材六面防护干挂工艺,让整个社区更添精致及观赏性。


整个小区南北各具特色,北侧高层区讲求空间尺度和功能配置,南侧讲求私密和错落有致。


以下为实拍完整一房一价表





历经十余年开发的新静安“中环两翼”——集学校、体育、办公、住宅、公园功能的大宁核心片区,虽然地处中环,但是其配套、出行、整体规划、界面,在很多业主看来,是超越内环的。
目前现场成功认筹即可参与砸金蛋活动,100%中奖!更有机会赢取网红戴森吹风机,Ecovacs真空吸尘器、Ecovacs扫地机器人等豪礼~


史上最全面积段“三房”
华润静安府最后一期住宅公寓
火热认筹中
对项目感兴趣的小伙伴
扫下方二维码
了解更多认筹、价格、户型等信息
更多较新楼市咨询,敬请关注《楼市特别》!
点击左下角“阅读原文”,进入华润静安府此次认筹的少有官方预约登记链接!
声明:本文由入驻焦点开放平台的作者撰写,除焦点官方账号外,观点仅代表作者本人,不代表焦点立场。


