突发 | 古北又一块价值200亿土地改成租赁住宅,面积近20万㎡
扫描到手机,新闻随时看
扫一扫,用手机看文章
更加方便分享给朋友
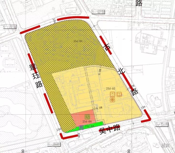
6/20,闵行规土局发布重磅公告,拟将虹桥社区S110103单元控制性详细规划25D街坊,即光明乳业的吴中路乳品厂地块,改为租赁住宅。
该幅地块位于闵行的古北片区,紧邻古北壹号、名都古北等豪宅项目,吴中路古北路交叉口。占地面积超过7.76万㎡,是上海规划的较大一幅租赁住宅地块,土地价值保守估计超过200亿。

根据2.5的容积率计算,该幅地块可建租赁住宅面积超过194,000平方米,3034套,规划建设各种社区文化体育配套设施及一所幼儿园。

该幅地块的位置可谓是少有,位于中环线内,属于闵行的古北板块。
也是古北最后一副可供开发的地块,建完后古北就再也没有地了。

紧挨古北壹号、古北名都城、珠江古北项目以及滨江中崇等众多超级豪宅项目,该幅地块周边可谓众星云集,对面的古北壹号独栋别墅的较高成交价格已经超过20万/㎡。
古北壹号项目

珠江的古北项目

中崇集团与滨江合作的古北项目


而在此前,上海地产集团已经将古北国际广场以南的E1-06地块及E1-10地块租赁住房用地收入囊中。

在古北二期规划初期,这两幅地是规划为领事馆用地,一直空置到今。E1-06地块与E1-10地块占地面积接近4.8万方,共有11.3万平方米可建面积,除去配套,可建约10万平方米租赁住宅,规划1250套租赁住房。

以此计算,古北三幅地块的总开发租赁住宅面积已经超过30.5万平方米,共提供超过4284套住宅,与古北二期两幅地块不同的是,吴中路地块套均面积仅有64平方米,未来将会建设大量小户型租赁住宅。

此前上海国家队已经在一年之内完成了3万套租赁住宅的布局,以上海地产拿下古北的租赁住宅地块仅1.3万的楼板价计算,古北地区的租赁住宅毛回报率超过10%,可谓印钞机。
3万套| 国家队1年在上海完成超200万㎡租赁住房布局
不出意外,此次古北的地块将有国企龙头光明地产进行开发,希望光明能带来一个惊艳的作品。
不负土地不负卿。
声明:本文由入驻焦点开放平台的作者撰写,除焦点官方账号外,观点仅代表作者本人,不代表焦点立场。


