突发!晶耀名邸三期拿证,前滩正在加速出货
扫描到手机,新闻随时看
扫一扫,用手机看文章
更加方便分享给朋友
内容来自:@一房一万
公众号:fangdis
内容由 @一房一万 授权,未经允许不得转载
买房前 、 挂牌前
看看一房一万,总会帮到你
晶耀名邸三期拿证
认筹时间:10月26日-11月1日
认筹金:161万元
认筹地点:泳耀路300号
(东方体育大厦一楼新闻厅)
另需提供银行资金冻结证明
首套:122万元;二套:405万元
摇号日期:11月17日
选房日期:11月18日





此次晶耀名邸开盘
为项目最后两幢住宅房源

总高30层,3梯4户
共351套
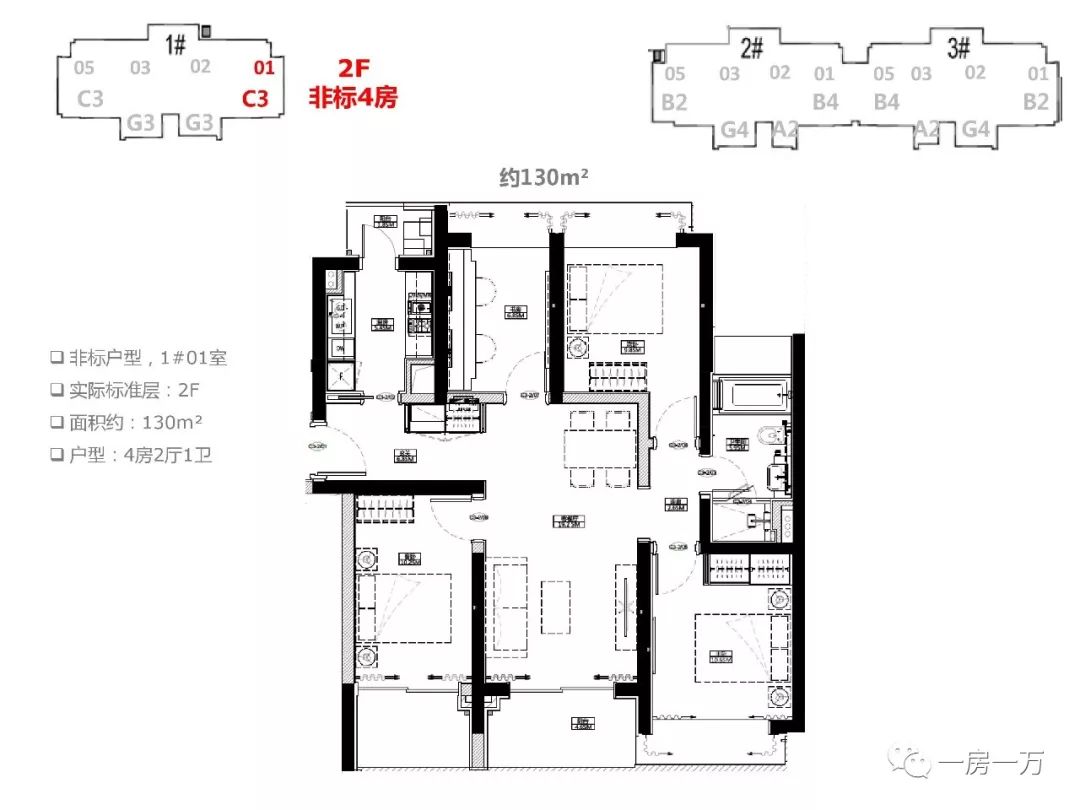
面积:62-111㎡1-3房
(非标130㎡4房)

户型图






具体一房一价表暂未公布
均价估计与上一期相当
约8.6W左右
值得一提的是
晶耀名邸此次三期拿证认筹
距离二期开盘都不到半个月
而近期前滩地区多个项目
如尚峰名邸、海航领航、东方悦耀等
均传出将要拿证入市的消息
难道昔日无房可售的前滩
正在加速出货?
其他精彩话题和内容 可进群获得
群内精彩内容
一、每日市场行情监测
二、每周各片区二手房真实成交案例
三、各片区周成交数据
四、新房踩盘谍照
五、驻场大神的回复
请未进群的各位伙伴
扫描下方群主二维码
并备注自己要进的群
群主会帮大家拉进群里
中区群:黄浦、静安、徐汇、长宁
北区群:虹口、杨浦、闸北、宝山、嘉定、普陀
西南区群:闵行、青浦、松江、奉贤、金山
东区群:浦东、崇明
群主二维码
在对话框输入项目名称,即可获得一房一价透视图
详细项目名称如下图:
在对话框输入学区所在地的区县名,即可获得各区县的重点学校和学校所覆盖的学区范围,看看你家是否在里面。
详细区县名称如下图:
大家都爱看:
二手房:
1.《2018上海房价到底下跌多少?各阶层资产损失报告,未来我们将如何购房?》
2.《别慌,9月上海楼市成交的基本面还在》
3.《上海较新抗跌住宅分布地图》
4.《上海楼市由“阴跌”进入了“加速见底”》
一手房:
1.《近期热盘一房一价详解,房价透视图最强选房手册》
2.《9月上海新房供应减少近4成,新房成交惨淡》
3.嘉泷汇《if上海新盘都像它,离住房空置税也不远了》
4.前滩东方逸品《久等了,前滩东方逸品价格赤裸地来了》
5.滨江公园壹号《等你等到"拉横幅",这次南大滨江公园壹号真的要领证了》
6.绿地·海珀玉晖、复兴珑御、金融街·融府《6月即开的3大豪宅新盘曝光,18年楼市下半场开始》
声明:本文由入驻焦点开放平台的作者撰写,除焦点官方账号外,观点仅代表作者本人,不代表焦点立场。


