170㎡现代简约风 高级黑白灰打造精致生活
扫描到手机,新闻随时看
扫一扫,用手机看文章
更加方便分享给朋友

整体格局的改造增加更多功能,符合业主的生活方式和习惯,同时改善采光问题,让空间通透明亮,有层次感。以黑白灰为主色调,配合暖灯光,线条元素、轻工业风配饰,营造利落、时尚、现代的质感。
美家信息 Information
面积:170㎡
户型:四居
风格:现代
设计:肖毅峰工作室

▲ 进大门左手边是组合衣帽柜,右边是穿衣镜。另外特意给门厅设计了一道门,可以减少走廊的噪音和灰尘。

▲ 黑白加原木色为主色调,沙发背景墙局部深灰,墙面层次对比增加空间感。

▲ 利用电视墙和开放式厨房的关系,中岛、吧台、电视墙综合设计。

▲ 三个功能合二为一,让客厅的整体视线不受阻碍。

▲ 原木色和纯色家具,提亮空间。配合不同颜色、材质的变化,让背景墙实用而有设计感。

▲ 改造后的客厅分了一部分空间给客卫做淋浴房,沙发背景墙顺势打造成凹凸的立体墙面,凹进去的部分增加了水吧和储物柜。

▲ 客厅看向餐厅,整体宽敞明亮。因为有中央空调和新风系统,所以周边都有吊顶。


▲ 原户型中餐厅是整个空间最暗的角落,所以墙上增加大面镜子,原餐桌折射出一倍的效果,既有延伸空间的感觉,又可以借用反光,使餐厅看上去通透明亮。

▲ 业主较少时间做饭,所以选择了开放式厨房。

▲ 柜体和台面以纯白色为主,墙面选择仿水泥灰墙砖,增加工业元素。

▲ 原来对着阳台的窗户,设计成层板,保证采光的同时增加装饰感。

▲ 在阳光较好的区域安排了一张懒人沙发,希望业主可以享受窝在里面喝茶放松的感觉。

▲ 原户型中书房是一间封闭的房间,现在将非承重墙拆除,门洞扩大,使用折叠门,营造出更为宽敞通透的效果,并且增加了客厅的采光。

▲ 黑色书架和棕色椅子,延续了空间整体的基调。

▲ 多功能房是书房兼客房的设计。

▲ 主卧依然以黑白灰为主色调,配合灯光的氛围设置,营造高级质感。


▲ 装饰画错落安排,加上简约的线条设计,让背景墙生动丰富。

▲ 卫生间的门刚好对着床头,所以设计了隔墙挡住。因为有单独的衣帽间,所以安排1米的衣柜足够用。

▲ 隔墙上留一道空隙,显得更轻盈,避免了视觉上的压抑感。

▲ 卫生间使用水泥灰地砖,顶面是仿生态木的吊顶材料,延续工业感。利用一部分客厅面积实现浴缸。

▲ 次卧白色和大面积深灰色墙面,视觉上扩大空间面积。

▲ 装饰画的点缀,为素色空间带来更多的优雅和质感。

▲ 飘窗加懒人沙发,休闲又惬意。


▲ 很多人觉得深色会压抑,这是一个误区。在没有自然光的环境下,深色环境的灯光效果较好。

▲ 扩大后的衣帽间,实用性更强。
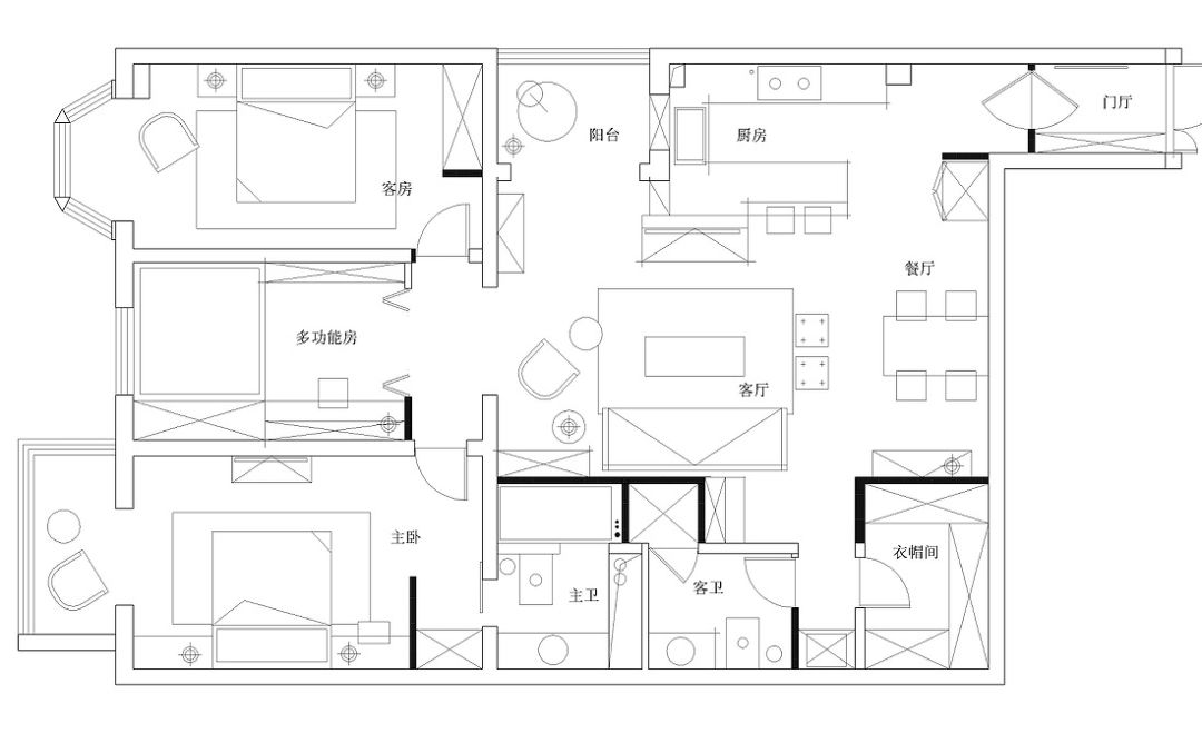
平面图:

(以上图片均转装修效果图,如有侵权请联系删除)

[ ▲ ]
筑图装饰
Contact us

上海筑图装饰设计工程有限公司

业务范围:家居空间、别墅豪宅、售楼处样板间、私人会所、娱乐休闲、商业卖场、酒店宾馆、餐饮空间、办公空间、美容SAP健身空间等领域。
上海总公司地址:上海市闵行区联航路1505弄复地浦江中心3号709室
平阳分公司地址:平阳县海西镇滨海新区新业路科技孵化器5号楼404室
温州鳌江分公司地址:温州市平阳县鳌江镇铂金湾家园5栋301室
免费咨询热线:400-863-8599
E-mail:shzhutu@163.com
证
书




声明:本文由入驻焦点开放平台的作者撰写,除焦点官方账号外,观点仅代表作者本人,不代表焦点立场。
