浦江园+新梓园!黄浦两大重磅项目案名官宣
扫描到手机,新闻随时看
扫一扫,用手机看文章
更加方便分享给朋友
最近的上海豪宅市场成交亮眼、战绩全国瞩目。从中海·顺昌玖里到滨江凯旋门,再到融创外滩壹号院,短短一个月之内,三大高端住宅的销售额超过366.7亿。(3大豪宅“日光盘”总成交超366亿,上海豪宅市场“杀疯了”!)
最新消息,上海市中心豪宅圈将再添两个重磅项目:绿发浦江园、绿发新梓园!两盘刚刚官宣案名,其中绿发浦江园预计三季度率先入市。
地块回顾:2023年4月,上海黄浦城市更新建设发展有限公司在上海产交所转让黄浦两大超级豪宅地块的股权转让正式成交,中国绿发及其旗下的地产开发平台鲁能集团参与竞标,并以底价竞得两家公司项目公司股权,夺得这两幅优质地块,两个地块的转让起始价格合计约132.9亿元。
绿发浦江园
绿发浦江园即黄浦滨江地块,靠近南浦大桥,与黄浦江之间仅相隔一个自来水厂以及滨江绿地,拥有约350米的朝南看江面,对岸就是浦东新盘保利世博天悦(均价16.8万/平方米)。
项目拟建7幢17-31F高层住宅、1幢物业管理用房及其他配套设施,南侧5栋商品房,北侧1栋保障房、1栋自持公寓,总户数722户。
项目规划有建面约1200㎡会所,结合下沉庭院设置于地下一层,有健身房、室内泳池、会客厅、儿童活动区等。未来,商业将设计成邻里汇,规划引进生鲜超市、餐饮、轻餐饮、面包烘焙、便利店等,方便统一运营和管理。
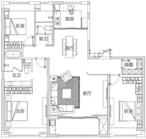
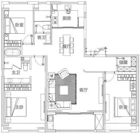
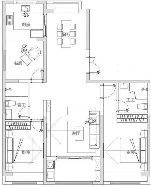
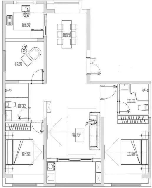
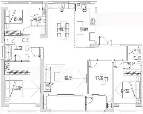
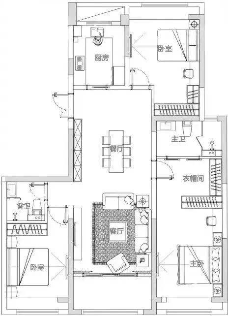
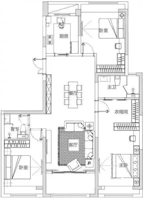
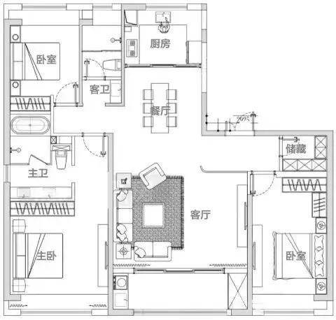
项目将推房源有:143㎡3房、168㎡3房、195㎡4房,可售商品房共计409套。
户型图如下:(过程稿仅供参考,最终以实际为准)
▼ A户型 建面约143㎡3房边套
▼ B户型 建面约143㎡3房中间套
▼ C户型 建面约168㎡3房边套
▼ C户型 建面约168㎡3房中间套
▼ E户型 建面约168㎡4房边套
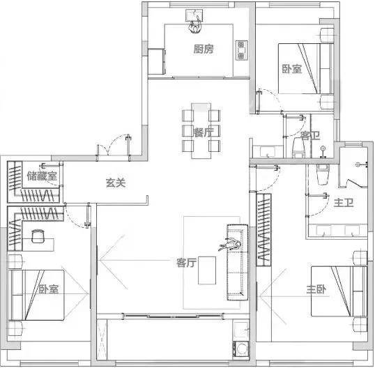
▼ F户型 建面约195㎡4房
绿发新梓园
绿发新梓园即黄浦乔家路A地块,位于黄浦区老西门板块小东门街道,雄踞内环内核心“老城厢”区域,是上海中心城内整体性最好、规模最大的以上海传统地域文化为风貌特色的历史文化风貌区。整个乔家路地块实施方案设计分散成三个大组团。

未来乔家路A地块将打造成为最具江南民俗特色、兼具商贸活力与人居品质的文商旅居功能融合区。项目总建面约15.5万㎡,规划约150多栋中式风貌低密度合院,配置约1.3万㎡商业以及约1200㎡私享会所。未来销售单价或接近20万/㎡。
声明:本文由入驻焦点开放平台的作者撰写,除焦点官方账号外,观点仅代表作者本人,不代表焦点立场。


