瑞士养老建筑,这样的设计把生活搬进了老年住所
扫描到手机,新闻随时看
扫一扫,用手机看文章
更加方便分享给朋友
在全球百余个国家中,很多人将“最适合养老的国家”称号给了瑞士。

瑞士国土面积虽只有四万平方公里,却星罗棋布的盘踞着山川、河流、湖泊、森林,加之其强劲的经济实力、全面的全民医疗保健体系以及强制性养老金制度,让它成了名符其实的“最适合养老的国家”。

同样,瑞士拥有成熟的养老模式,对老年住所也有相对成熟的做法,下面跟小编一起来看一下:
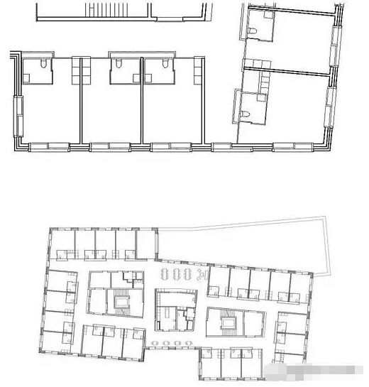
以苏黎世的Seniorenresidenz Spirgarten为例,其首层有餐厅,咖啡,会客厅,洗衣室,活动间的空间。

▲ 图1:Seniorenresidenz Spirgarten外观
上面为住户:有8个单间(1 Zimmer),56个一室一厅(2 Zimmer),还有4个两室一厅(3 Zimmer)。户型如下:

▲ 图2:玄关处理

▲ 图3:回路设计

▲ 图4:两面采光

▲ 图5:精装用材
建筑标准层有两个公共楼梯,走廊有两处放大,并形成公共起居空间:

▲ 图6:端部走廊放大,形成休憩空间

▲ 图7:大窗和宽窗台凸显奢华品质

▲ 图8:一个一个带窗的厨房盒子
另外一个比较有现实意义的是pool Architekten设计的Siedlung Frieden。这是一个融合了老年住宅、幼儿园、儿童乐园的综合体。其户型设计并不出彩,但是这种混合的开发形式非常值得借鉴。

▲ 图9:Frieden社区从开发上是非常成功的案例,设计品质也不差。
瑞士老年公寓的设计,仅有的规律一个是走廊式布局,可以增加交流。但其前提是暗厨房,但新出现的一些“走廊和房间”分开布置的案例解决了这个问题。
另一个规律是阳台,总的来说采用的是凹阳台,但也要有封闭实墙,这和防寒关系较大。瑞士因为有足够大的人均使用面积,且干燥的气候适合阴干衣服,同时有完备的有机垃圾处理方法,所以没人占用阳台。
而在中国,必要的室外晾衣空间必须予以重点考虑。
除老年公寓外,其他“养老院”的居住模式跟“酒店客房”和“医院单间”类似。老人的居住单元大都为一个20平方米左右的房间。餐厅,活动室等公共设施都位于一楼。作为一种新的居住类型,瑞士的探索是从近10年开始的。
瑞士大部分养老院的设施设计有专家、面积指标,甚至有一个医学标准尺寸,个性化设计主要针对阳台和入口,或者在某些没有给定房间尺寸情况下,建筑师会有一些创新。
▲ 图10:最标准的无阳台房型
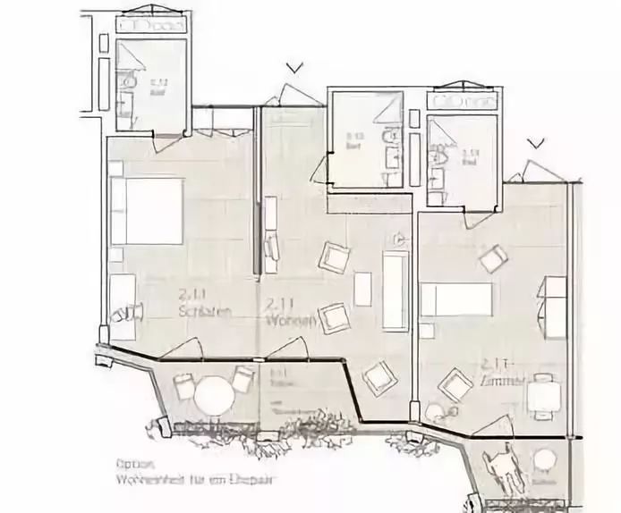
在下面例子中,房间的错动、卫生间的拼合、入口的凹空间、窗口的厚度、阳台储物柜、床及床头柜横竖布置及家具的灵活摆放也是满满设计感。

▲入口空间及窗洞厚度

▲标准单元间相互错动

▲卫生间在平面上咬合

▲阳台柜子

▲入口空间

▲阳台和房间的formal play

▲房间室内布置
标准层平面的设计是建筑师发挥空间较大的部分,和所有设计一样,平面既要照顾到周边关系,又要考虑内部组织。
在瑞士这10年的平面探索中,最开始以Hotel(旅店)和Spital(医院)的平面作为出发点。平面发展的驱动力来自与老年人的交流需求。慢慢的,在设计评价中出现了一个Wohngruppe(居住组团)的概念,即“居住单元”与“公共交流空间”的组合。

▲近10年,瑞士养老院的经典平面
如今,很多老人虽住进老年公寓或者养老院,但是生活大都能自理,养老机构对老年住所进行暖心设计,为他们创造了一个更安全、更有尊严、更符合他们生活习惯的住宅环境。
- End -

/ 推荐阅读 /
电器大亨打造超前卫IT养老院 一年养老业产值20亿
“日本养老院”逆天了?真正逆天的在中国,还是上海市中心!
好玩的东京日暮里有座好玩的养老设施,堪称社区融合的老牌典范
美国Blackhurst,一所刷新传统定式思维的养老院
德国这个养老村是地球上比较“狂”的地方

购书请点击阅读原文
声明:本文由入驻焦点开放平台的作者撰写,除焦点官方账号外,观点仅代表作者本人,不代表焦点立场。
