中铁华发古美项目户型图曝光,建面约103-130㎡3-4房,联动价8.58万/㎡
上海搜狐焦点 2024-05-12 16:55:36
用手机看
扫描到手机,新闻随时看
扫一扫,用手机看文章
更加方便分享给朋友
2024年上海首轮土拍中,中铁置业联合华发以总价34.71亿元竞得闵行区七宝镇古美北社区S110501单元17-01、21-01地块,溢价率10%,成交楼板价55066元/㎡,房地联动价85800元/㎡!建面…
2024年上海首轮土拍中,中铁置业联合华发以总价34.71亿元竞得闵行区七宝镇古美北社区S110501单元17-01、21-01地块,溢价率10%,成交楼板价55066元/㎡,房地联动价85800元/㎡!
根据设计方案显示,地块拟建8栋14-16F高层住宅、1栋17F保障住宅以及若干配套用房,可售住宅约552套。
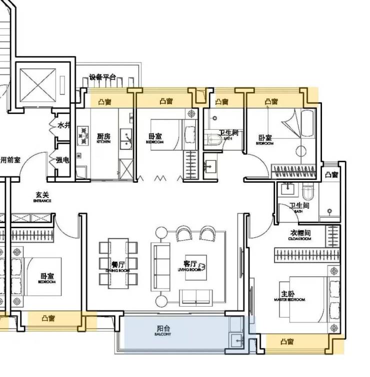
预计户型建面约100/130㎡2种户型,计划下半年入市。
建面约103㎡3房2厅2卫
声明:本文由入驻焦点开放平台的作者撰写,除焦点官方账号外,观点仅代表作者本人,不代表焦点立场。


