12号线旁,保利建工海玥锦上约99-128㎡3-4房将入市,联动价8万/㎡
扫描到手机,新闻随时看
扫一扫,用手机看文章
更加方便分享给朋友

【项目概况】
建筑面积:约4.59万方
容积率:2.1
绿地率:约35%
建筑风格:现代简约
物业类型:高层
商品房户数:249户
产品户型:约99平三房两厅两卫、约128平三+1房两厅两卫
交付标准:精装交付 车位配比:约1:1.2 销售动态:售楼处及样板房即将公开
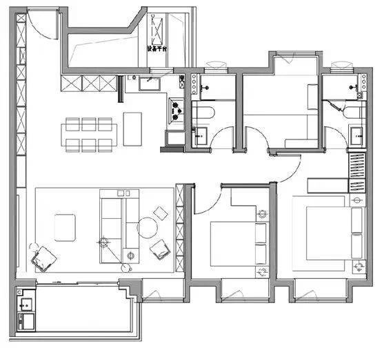
①全明户型,方正格局,卧室均带飘窗,沐浴阳光的温度;
②敞阔阳台,安放家庭梦想的小天地;
③餐客分离,动静有度,半开放式厨房,让家庭互动不受空间挡隔;
④套房式主卧,衣帽间、干湿分离卫生间,让精致享受自由的尺度;
⑤可创变性次卧空间,适应多变的家庭氛围及居住需求;
⑥过道设置收纳空间,空间达到极致利用;
①全明户型,方正格局;全屋飘窗;
②阔景阳台,眺望湖泊的律动;
③三房布局,盛放三代同堂的幸福;
④横向奢敞客厅,容纳家庭的日常趣味(面宽5.45m);
⑤多变性书房布局,内入工作天地;外扩生活空间,体现,奢宅配置;
⑥半放式厨房搭配岛台餐厅,延伸生活娱乐的趣味;
⑦U型厨房布局,容纳美食的风味;
⑧玄关搭配整墙收纳,让生活的四季有地存放;
声明:本文由入驻焦点开放平台的作者撰写,除焦点官方账号外,观点仅代表作者本人,不代表焦点立场。


