17号线旁600米,青浦赵巷国贸虹桥璟上户型图首发!约82-129㎡2-4房预备入市
上海搜狐焦点 2023-05-11 15:38:29
用手机看
扫描到手机,新闻随时看
扫一扫,用手机看文章
更加方便分享给朋友
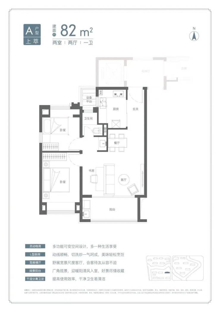
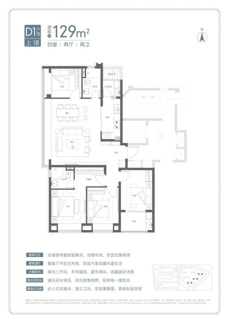
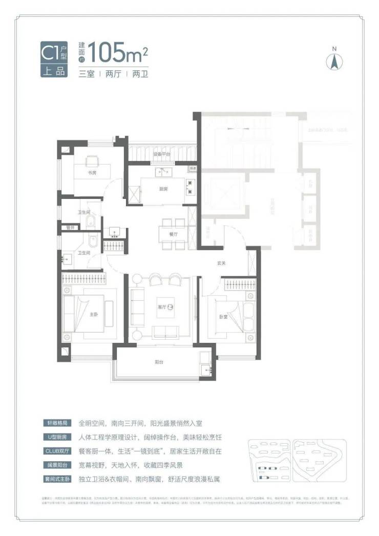
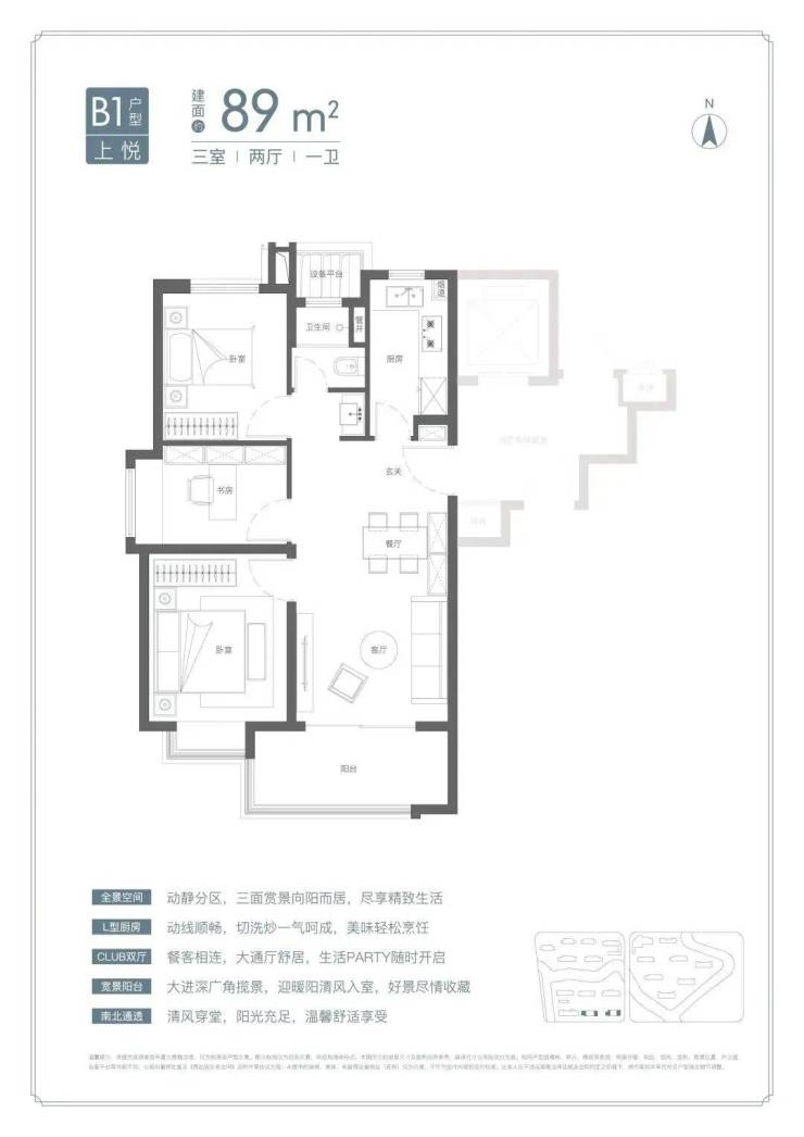
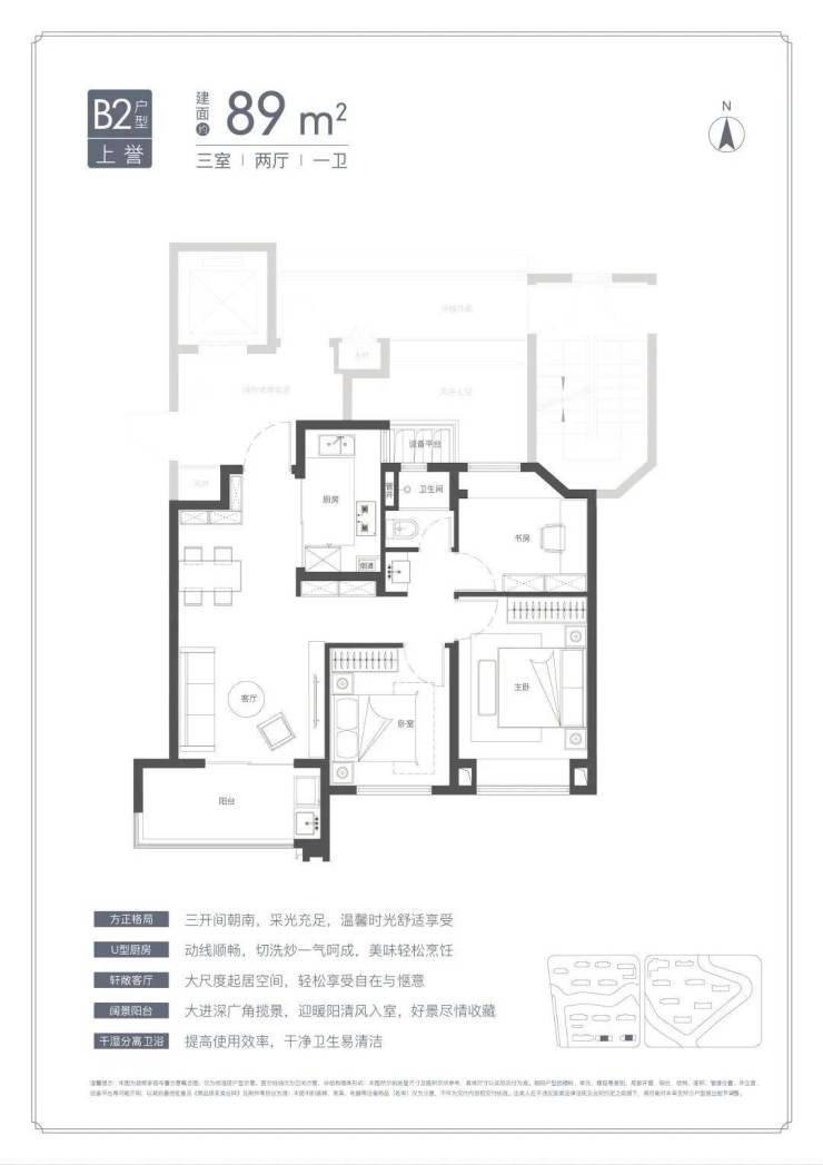
直线距离17号线嘉松中路站约600米,青浦赵巷国贸虹桥璟上预备入市!项目主推建面82-129㎡2-4房,最新户型图如下:项目由三个地块组成,容积率为2.2,住宅套数下限1325套,需配建5%以上的保障性住房,…
直线距离17号线嘉松中路站约600米,青浦赵巷国贸虹桥璟上预备入市!项目主推建面82-129㎡2-4房,最新户型图如下:
项目由三个地块组成,容积率为2. 2,住宅套数下限1325套,需配建5%以上的保障性住房,全装修比例100%!
B3A-01地块:拟建6栋17F高层住宅及若干配套用房,住宅套数下限381套;
B3A-02地块:拟建6栋16-17F高层住宅、1F商业裙房及若干配套用房,住宅套数下限376套;
B3B-01地块:拟建7栋17F高层住宅、1栋28F保障房、1栋3F菜场及若干配套用房,住宅套数下限568套!
该项目房地联动价统一为54500元/㎡。
最新效果图如下:
声明:本文由入驻焦点开放平台的作者撰写,除焦点官方账号外,观点仅代表作者本人,不代表焦点立场。


