静安内环,中兴路一号收官193套新品已过会,全套户型曝光
上海搜狐焦点 2023-04-03 17:31:35
用手机看
扫描到手机,新闻随时看
扫一扫,用手机看文章
更加方便分享给朋友
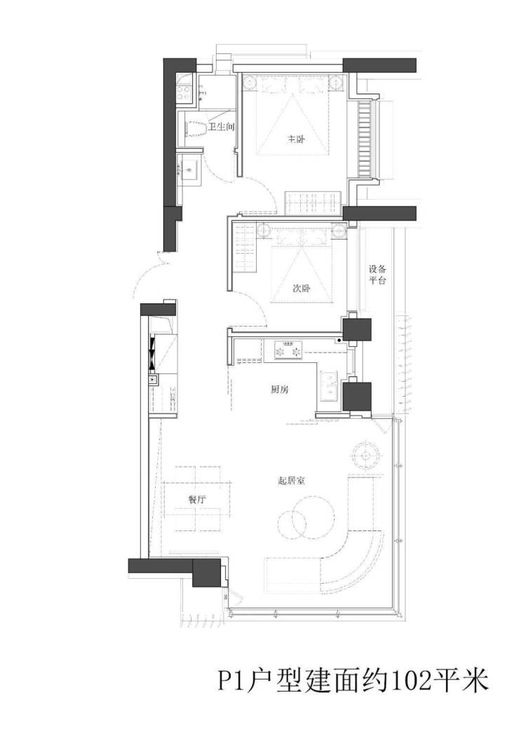
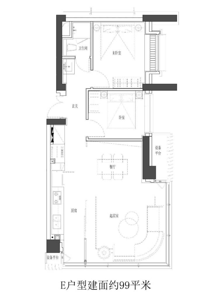
百万方中兴城规划中兴路一号三期即将入市191套建面约75-100㎡收官房源预计本周开启验资全套户型图如下:…
声明:本文由入驻焦点开放平台的作者撰写,除焦点官方账号外,观点仅代表作者本人,不代表焦点立场。


