中铁建华漕项目建面约99-140㎡3-4房预备入市,联动价6.95万/㎡
上海搜狐焦点 2023-08-25 16:27:03
用手机看
扫描到手机,新闻随时看
扫一扫,用手机看文章
更加方便分享给朋友
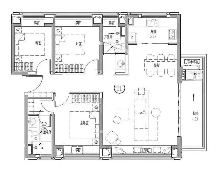
中铁建华漕项目预备入市,主推建面约99-140㎡3-4房,联动价6.95万/㎡。户型图如下(过程稿仅供参考,以开发商正式公示为准):建面约99平3房建面约115平3房建面约115平3房建面约140平3房…
中铁建华漕项目预备入市,主推建面约99-140㎡3-4房,联动价6.95万/㎡。
户型图如下(过程稿仅供参考,以开发商正式公示为准):
建面约99平3房
建面约115平3房
建面约115平3房
建面约140平3房

声明:本文由入驻焦点开放平台的作者撰写,除焦点官方账号外,观点仅代表作者本人,不代表焦点立场。


