美爆了!嘉定这两所新建学校效果图曝光!
扫描到手机,新闻随时看
扫一扫,用手机看文章
更加方便分享给朋友
近年来 ,嘉定工业区动迁农民都住进了集中安置房,短短两三年,工业区胜竹路沿线,出现了梧桐坊、盛蔷坊、蔷薇苑等几个大型动迁小区。而这些小区周边的一系列配套项目也一直在规划和筹建中。
规划中,将新建一所小学和一所中学,预计明年上半年开工建设,计划在2020年建设完成。
嘉定城北小学
学校位置
嘉定城北小学位于嘉定城北大型居住区
南邻胜竹路,北邻品菊路
西面为慈竹路,东面为初中建设用地
周边规划有大量居住区
南北面居住小区已竣工,有居民入住

▲ 学校位置图

▲ 学校位置图
学校规模
建设用地面积为21046平方米
用地性质为基础教育设施用地
总建筑面积为13153.04平方米
容积率1.0, 建筑限高24米

▲ 学校经济技术指标
主要建筑物包括:一栋(3 层) 教学实验楼、一栋(4 层)教学实验楼、 一栋行政办公楼(4 层)、一栋图书馆多功能厅(2 层)、 风雨操场和一栋食堂(3 层)。
主要建筑通过一个大平台及连廊连为一体,形成一个整体建筑群, 以期塑造出多维度场所空间。
小学为五年学制,设计规模为20个班级,每班40人。

▲ 学校主要建筑位置图

▲ 教学实验楼透视效果图

▲ 行政办公楼、图书馆透视效果图

▲ 食堂、风雨操场透视效果图
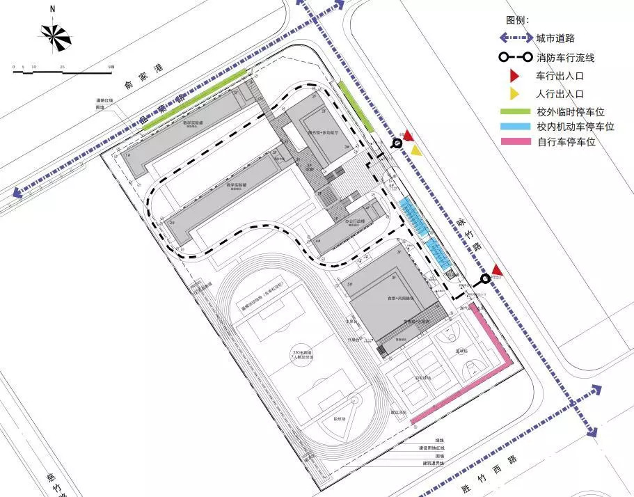
学校交通
01
出入口
学校对外设置了一进一出的两个出入口
均设置在慈竹路上
其中,主要出入口分为
人行出入口和车行出入口
靠近品菊路慈竹路
另一车行出入口靠近慈竹路胜竹路
方便后勤服务

▲ 慈竹路入口人视效果图
02
车行系统
设计对整个场地的交通系统进行了整理
从学校出入口开始将实施人车分流
合理安排各个出入口,沿路设置停车位
整个车行系统
沿建筑外围西面和北面呈半环状
较大程度上减少对教学区的干扰
03
步行系统
整个建筑的步行系统沿校园主入口展开
二层平台的介入
一方面将步行系统立体化
创造出更加丰富的立体空间
另一方面,与各层连廊结合为有机整体
使师生最为便捷地到达教学与生活区
04
静态系统
整个校区采用地面停车
校内停车位设置在紧邻行政办公楼及后勤出入口的道路,采取沿路布置方式
此外,学校出入口附近还设置了临时停车位

▲ 停车位位置图
嘉定城北初中
学校位置
嘉定城北初中位于嘉定城北大型居住区
南邻胜竹路,北邻品菊路
西面为小学建设用地,东面为咏竹路
与练祁佳城梧桐坊隔孙浜河相望

▲ 学校位置图

▲ 学校位置图
学校规模
建设用地面积为24385平方米
用地性质为基础教育设施用地
总建筑面积为15798.32平方米
容积率1.0, 建筑限高24米

▲ 学校经济技术指标
主要建筑物包括:两栋教学实验楼(5 层)、一栋行政办公楼(4 层)、一栋图书馆多功能厅(2 层)、风雨操场和一栋食堂(3 层)。
主要建筑通过一个大平台及连廊连为一体,形成一个整体建筑群, 以期塑造出多维度场所空间。
小学为四年学制,设计规模为20个班级,每班48人。

▲ 学校主要建筑位置图

▲ 学校鸟瞰效果图

▲ 教学实验楼透视效果图

▲ 行政办公楼透视效果图

▲ 图书馆透视效果图

▲ 食堂、风雨操场透视效果图

▲ 平台透视效果图
学校交通
01
出入口
学校对外设置了一进一出的两个出入口
均设置在咏竹路上
其中,主要出入口设置了人行出入口和车行出入口
靠近品菊路咏竹路
另一车行出入口设置在咏竹路靠近胜竹路
方便后勤服务

▲咏竹路入口人视效果图
02
车行系统
设计对整个场地的交通系统进行了整理
通过人行和车行入口分开设置,将人车分流
合理安排各个出入口,沿路设置停车位
整个车行系统沿建筑外围东面和北面呈半环状
较大程度上减少对教学区的干扰
03
步行系统
整个建筑的步行系统沿校园主入口展开
二层平台的介入
一方面将步行系统立体化
创造出更加丰富的立体空间
同时,与各层连廊结合为有机整体
使师生最为便捷地到达教学与生活区
04
静态系统
整个校区采用地面停车
校内机动车停车位设置在靠近后勤的学校出口周边,采取沿路布置的方式
非机动车停车位则结合贴线率构架进行设置
此外,学校出入口附近还设置了临时停车位

▲ 停车位位置图
来源:上海嘉定
往 期 精 选
▲国家发改委正式批复苏州轨交S1线!力争年底开工!
▲特别重磅 | 嘉昆太一体化!嘉闵线较新规划出炉!
▲8.4km²自然生态!嘉定这座莫干山式文艺小镇来了!
▲100万㎡!南翔隔壁超大开放式绿地!,仅10分钟路程!
▲嘉定又一重要规划获批!将开启大虹桥高逼格湖居时代!
▲嘉定2035年的交通简直要逆天!将有9条轨交线路!
▲印象城顶配打造,进化升级!内部效果图、主力店曝光!
▲历史性重大规划!嘉定总体规划(2017-2035年)公示!
▲11号线陈翔路站已开始上部结构施工!
▲嘉闵线,今天认真的聊一聊
▲嘉定,对不起!江桥以后可能是世界的...
▲史上最全嘉定医院大汇总!3家三甲领衔80家医院
▲2018嘉定“热门”出罚单地点,你值得收藏!
▲南翔将建第三座景观湖!
更多热点资讯......
声明:本文由入驻焦点开放平台的作者撰写,除焦点官方账号外,观点仅代表作者本人,不代表焦点立场。


