无界江景 天际大宅【中粮海景壹号复式】屹立小陆家嘴 俯瞰百年外滩
扫描到手机,新闻随时看
扫一扫,用手机看文章
更加方便分享给朋友
陆家嘴作为上海乃至整个亚太区的象征,在自贸区双概念利好引领下,承载了中国建设高级金融中心发展的重头,未来将比肩伦敦金融城和纽约曼哈顿的金融街的发展规模和前景,其升值潜力和地段稀缺性造就不可复制性的王者气质。同时凭借上海百年外滩,黄浦江排名前列湾的地理人文属性,以及比邻世界500强财智精英的高端圈层,也为其黄金地段增添了浓重的人文价值。
《中粮海景壹号复式》

一线滨江,收藏外滩少有800米
正对外滩800米—黄浦江最美的一段江景,北起外白渡桥、南抵金陵东路,万国建筑汇集,这里是全世界人心目中真正的外滩。随着“外滩一体化”工程规划的展开,百年外滩正在华丽转身,一个融合风貌保护区、综合功能区、滨江居住区和世博综合区的全新外滩正在崛起。
中粮•海景壹号以地段和景观的双重稀缺性,日益成为上海高端住宅的全新引领者。该区域未来鲜有住宅用地供应,使中粮•海景壹号或成为入主该区域的少有收藏。


珍品质,传承百年城市地标
中粮•海景壹号以传承世纪陆家嘴百年建筑文明为立意精心打造。中粮•海景壹号每平方米建筑含钢量远远超过普通高层住宅,保证了建筑品质;外立面幕墙采用芬兰进口的合金钢板,这是一种结构钢,大多用于商办物业,其美学使用年限长达95年,之所以决定不吝成本地采用合金钢板,正是期望建造百年建筑,匹配陆家嘴这一百年地段。
中粮•海景壹号正被越来越多的财智阶层关注并收藏,其热销态势使陆家嘴一线滨江区诞生了全新地标名宅。可以想象,在不远的将来,外滩对岸的陆家嘴东方明珠、上海中心、中粮•海景壹号将鼎足而立、相映成趣,成为代言上海形象、商业和人居的三大全新地标。

重投资,资金避险好去处
中粮•海景壹号社区内的上海鹏利辉盛阁公寓,入住率持续高达90%以上,是上海最知名的高级服务式公寓之一。其中90%的客户是公司客户,并有7成客户来自世界500强企业的高管阶层。良好的楼盘素质、周边强大的租赁需求和全球跨国企业高管毗邻而居的生活氛围,让众多财智人士及精明的投资者青睐有加,却碍于中粮•海景壹号只租不售的现实而“求之不得”。现在即将推出,如同一次定向爆破,为财智人士的高端购买力找到了一个及时释放的突破口。

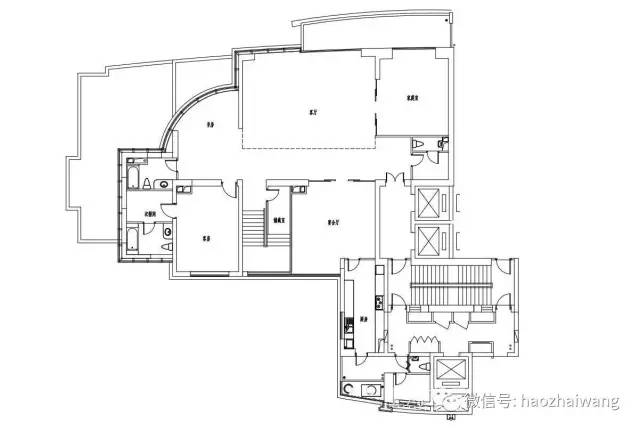
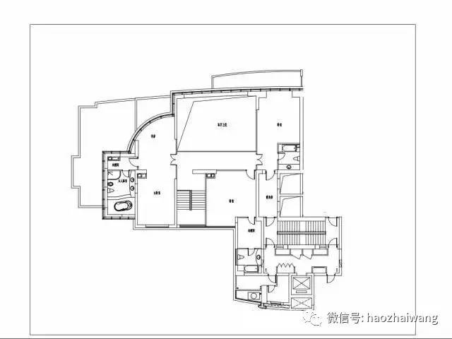
户型
(39F、40F)592.8平

首层

二层

实景图 复式大宅·景观

实景图 复式大宅·客厅

实景图 复式大宅·客厅


实景图 复式大宅·客厅

实景图 复式大宅·客厅

实景图 复式大宅·客厅

实景图 复式大宅·餐桌

实景图 复式大宅·餐桌

实景图 复式大宅·餐桌

实景图 复式大宅·餐厅

实景图 复式大宅·餐桌

实景图 复式大宅·休闲

实景图 复式大宅·窗景

实景图 复式大宅·厨房

实景图 复式大宅·浴室
由世界超一流酒店管理团队打造的辉盛阁酒店式公寓曾先后多次获得国内外业界先进大奖,中粮海景壹号以卓绝的领袖气质先行一步,晋升世界先进豪宅之列。

中粮海景壹号先进王座天悦再推临江汇景天际墅,极尽奢华,拥揽少有的景观地段优势而成为项目的价值先进,6.9米挑高客厅和30米面宽的观景阳台,纵览外滩一线江景,淋漓展现王家风范。恢弘气度源始云顶天界,复式阔景中方显从容本色。
汇聚全球目光 少有限量预约品鉴
声明:本文由入驻焦点开放平台的作者撰写,除焦点官方账号外,观点仅代表作者本人,不代表焦点立场。


