大宁金茂府最后78套叠加认筹中丨222-268㎡丨附一房一价表!
扫描到手机,新闻随时看
扫一扫,用手机看文章
更加方便分享给朋友
新静安大宁板块最强网红盘
都市叠加别墅精装交付
大宁金茂府叠墅
区域:静安区
78套叠墅户型222-268㎡
价格:单价均价12.75万元
往下阅读一房一价表
认筹时间12月7日-12月13日
认筹金:100万元

认筹规则



概念展示间 实拍图


客餐厅

厨房




卧室

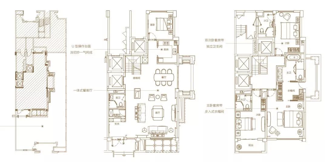
项目在售约222-268㎡的面积段的叠加别墅。 上叠、中叠,下叠均为四房两厅三套房的舒适户型。以这套19号下叠为例,先来看一下户型图。 约224㎡4房2厅4卫 (不包括地下室和花园部分)

一房一价表


科技人居

完备的高端商业

全年龄段教育

据了解
这是大宁金茂府的收官之作
错过就不会再有了
有天有地的静谧生活
222-268㎡叠加别墅
假如你想省去装修麻烦
假如你对科技人居系统感兴趣
不要错过了
编辑: 箴洛
——上海新房观察——
在心里和你过完了一生
见面只能说声
你好,余生好长,你最难忘!
合作请联系私聊!
热点|房产|政策|评论|投稿
版权声明:本文中所涉及的图文资料仅供参考,不构成要约内容。开发商可能对项目细节等做进一步优化调整,具体信息以合同约定及政府最终审批为准,开发商在法律规定的范围内保有最终解释权。
---- 推荐阅读 ---
2018上海限购政策、贷款、买房流程、地址…全都在这了
父母名下房产给子女,赠与?买卖?继承?看哪样最划算!
婚前买房、婚后买房、父母出资买房房产归属一览表。
为什么不建议父母在房本上加孩子名?看完请三思。
房产证想更名怎么办?都需要进行什么操作呢?
上海二手房交易需要交哪些税费?看完感觉还是一手划算!
如何购买二套房?2018年最全购房攻略来了!
上海居住证办理具体流程.

下图右滑,添加关注上海新房观察
有些小秘密我们只发朋友圈
你懂的!
声明:本文由入驻焦点开放平台的作者撰写,除焦点官方账号外,观点仅代表作者本人,不代表焦点立场。


