抢!浦西市中心精装公寓(非住宅)不限购!
扫描到手机,新闻随时看
扫一扫,用手机看文章
更加方便分享给朋友
1、浦西市中心精装公寓 博鸿大厦仅1套14楼80平388万!
2、月底虹口足球场1套多层五楼复式精装 公寓通煤气 210平总价580万!
3、虹口足球场轨交枢纽类住宅大平层几套 通煤气 4室2厅3卫 244㎡ 总价850万起!
4、汉中路地铁口230万精装公寓42-58-82平10套 开盘仅一周售罄!

1 浦西市中心精装公寓博鸿大厦
上海市静安区江宁路495号 精装现房(带独立卫生间)产权50年,99年拿地 物业管理费7.5元 层高3.2米 3梯8户 。仅1套14楼80平388万!





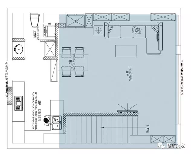
2 东体育会路公寓 五楼复式 通煤气
月底虹口足球场会出来一套五楼复式稀缺精装公寓通煤气,楼下鲁迅公园,对面就是外国语学院。目前住户以居住偏多,现在精装修中,均价2.8万,总价580万,210平。可以提前线上预定。

东体育会路该公寓设计图纸为楼上一层是客厅餐厅,楼下一层等面积是卧室,目前还没效果图。




3 虹口足球场轨交枢纽类住宅大平层
内环内虹口足球场轨交枢纽神盘不限购,大平层低总价通煤气剩下不多了。先进国际商务大楼,轨交枢纽 虹口足球场站 100米,北上海较大商业体 凯德龙之梦 200米,25层 类住宅大平层 户户通煤气,4室2厅3卫 244㎡ 2梯2户 得房率78% , 板式设计 南北通透 精装现房交付,大面积 低总价 约1000万 均价仅3.7万2楼开发商急售特价850万。不限购 不限贷 商业水和电,民用天然气。


项目位于虹口区四川北路核心闹市, 占地面积1515m,建筑面积11967m,总共25层。按商住标准设计,采用类住宅立面,2梯2户,板式设计,南北通透:4室3卫,户户通天燃气,客厅开间近7米,享鲁迅公园开阔景观,餐厅开间4.5米,可享城市开阔景观,可望上海中心,属臻稀资产,可满足多样,功能需求。







4 汉中路地铁口230万精装公寓42-58-82平仅10套 开盘仅一周售罄!




总价低 单价低 面积大适合投资
免责声明:
1.本文转载自:魔都房房房
2.凡注明转载来源的文章,均为其他媒体或平台的作品,均为转载,转载目的在于传递更多信息,并不代表本平台赞同其观点和对其真实性负责,本平台不承担任何法律责任。
3.如有侵权,请及时告知删除。或者联系搜狐焦点上海站版权部:021-23081573
声明:本文由入驻焦点开放平台的作者撰写,除焦点官方账号外,观点仅代表作者本人,不代表焦点立场。


