上海外滩金融中心
扫描到手机,新闻随时看
扫一扫,用手机看文章
更加方便分享给朋友
上海外滩金融中心是一个大型建筑综合体项目,由Foster +Partners及Heatherwick Studio事务所合作完成,该项目旨在活跃外滩的生活氛围。项目位于上海著名的外滩景点处,并且这座新建筑成为了上海最著名街道的“终点”。项目总体规划为42万平方米的建筑面积,这对于行人来说具有高度的渗透性,设计构思是要让这座建筑成为旧城区与新金融区之间的连接点。

▲鸟瞰外滩金融中心
受城市环境因素启发,在场地的南面有两座180米高的地标性建筑,而面向外滩的建筑群高矮不一,错落有致,并与外滩那些著名的十九世纪建筑物有节奏的联系在了一起。该项目的核心是要建立一个灵活的文化艺术中心,并作为复星基金会的所在地,同时将展览和活动大厅以及表演场地结合在一起,这个灵感来自于中国传统的开放式舞台剧场。

▲创造亲密的市民广场

▲建筑融入城市生活


▲项目所营造的精品商店和餐厅
总体规划鸟瞰图福斯特建筑事务所的负责人和高级合作伙伴Gerard Evenden杰拉德埃文登说道:“外滩金融中心在老城区和新金融区之间建立起了关键的联系。制定建筑物的体量策略是一次很好的挑战,因为这涉及到旧建筑和新建筑的背景情形,并反映出了整个外滩的规模和历史遗迹的特征。”
▲舞动的外立面

▲基金会外立面

▲文化中心特色外围装饰设计


▲独特的外立面设计参考传统中式新娘头冠装饰

▲随着各个层面的旋转交叠,建筑外貌展现出不同的透明度和视觉效果
复兴基金西立面图在这八幢总面积为42万平方米的建筑的开发过程中,我们将高级写字楼与精品酒店,文化中心和各种奢侈品零售店组合在一起,并将它们全部布置在公共广场的周围。 零售空间与精品店,国际品牌概念店,奢侈品购物中心和餐馆呈立体分层布局。而精美的石雕和青铜饰品让建筑拥有了宝石般的品质。每个体量的边缘都是由富有质感的手工制作的花岗岩构成,并且随着楼层的增高它们也变得更加的苗条,给人的感觉是基础牢固,而顶部有足够的透明度。
“文化中心是手工艺与科技的优质混合产物。它的设计灵感来自于传统中式编织工艺,并融入了较高端的科学技术来防范地震,台风和恶劣天气。它独特的形态为来访者带去非比寻常的观赏体验,而其绚丽的照明系统和移动外围装饰为城市生活带来缤纷色彩。” Evenden补充道。

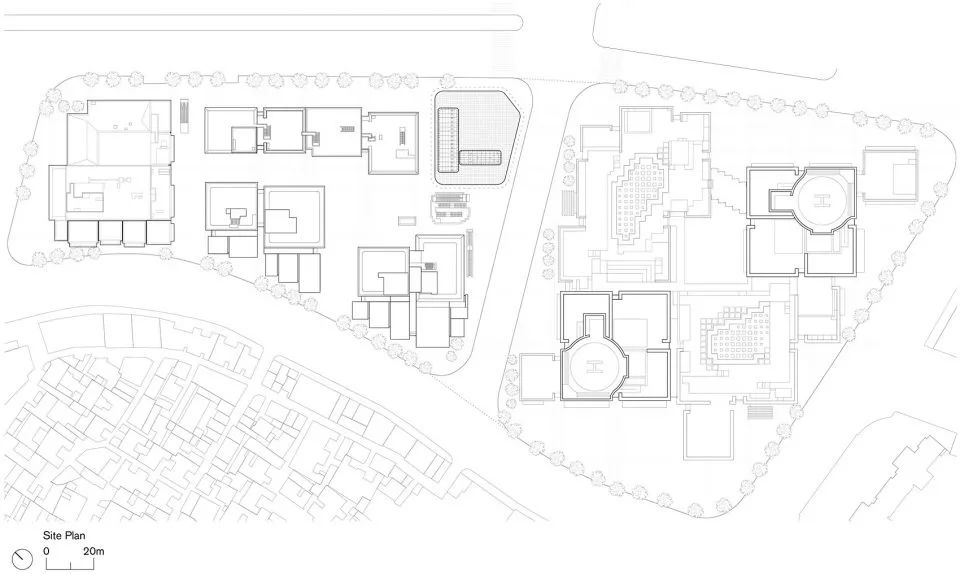
▲场地图

▲北部建筑群一层平面图

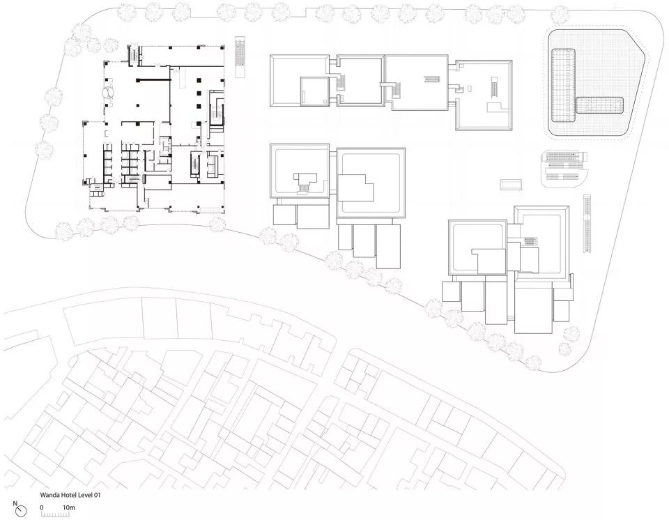
▲酒店一层平面图

▲剖面图


声明:本文由入驻焦点开放平台的作者撰写,除焦点官方账号外,观点仅代表作者本人,不代表焦点立场。
