案例|世界上较大的被动式学院建筑
扫描到手机,新闻随时看
扫一扫,用手机看文章
更加方便分享给朋友

建筑外观
项目:美国康奈尔大学彭博中心
地址:纽约,美国
建筑面积:14864 平方米
项目负责人:Ung-Joo Scott Lee
项目建筑师:Luke Yoo
彭博中心的目标是产生尽可能多的电,尽量能和使用的持平,这个概念称为 “净零”(net zero)。
彭博中心覆盖于光电伏板之下,其低矮精致的外观成为该处独特的城市景观。它与众不同的立面设计,在充分利用太阳光照的同时,又优化了外部的视觉感受,在保证其立面透明度的同时,又隔绝的室内外热量传输。

视觉联系
立面的最外层用铝板加彩色PPG聚合物涂层作为防雨外表皮。从远处望去,建筑立面的铝板将康奈尔大学罗斯福岛校区与纽约康奈尔大学内悠然的校内环境连接成一幅美丽的河岸景观。在河对岸面向城市的一边,在该建筑与曼哈顿城市轮廓的对立面,它吸引着人们的目光。沿着园区的主要通道和中央脊背(科技走廊),其东立面如同伊斯卡岛的峡谷剖面般展开在人们眼前。

独特的建筑外立面
设计师与建筑金属制造商Zahner紧密合作,采用Zahner公司的ZIRATM百叶装置系统打造独特的立面图案。其每一个立面单元都由独立的、两英寸长、可旋动圆形插片嵌入铝板之中,而每一块圆形插片的深度和轮转都决定了反射的光亮。这个像素化的图像由全新的焊接机器人打造,该技术将数字信息进行加工后将337,500个立面旋转插片嵌入其中。该运算法则实现自康奈尔大学和麻省理工大学学生的合作开发技术。

中央楼梯
项目负责人Ung-Joo Scott Lee说,“我们致力于向人们证实,净零耗能外立面不仅可以创造一个更加节能的建筑,还可以打造一个更加健康和舒适的内部环境。这个特有的系统为我们在高层建筑外貌系统提供示例,促使建筑在展现外貌特性的前提下,可以更好的接受使用者的控制。康奈尔大学在可持续发展领域的主导地位令这个技术的实现成为可能。我们将持续这个领域的领导力,将该技术应用于各个校区的建设中。”

内部空间
彭博中心是Roosevelt岛的社区中心,其首层南边的咖啡厅向校区以外的居民生活开放。入口中庭和学术报告厅与曼哈顿57号大街齐平,令室内享有优质的曼哈顿视野。大厅的标志性楼梯占据了建筑的视觉焦点,它引导着人们层层渐入到达各个空间。此外,站在主楼梯上,沿着周围其他建筑所形成的视觉轴线,你可以看到河对岸的皇后区,回应了该校区对于河岸对视景观的营造。开放的商业走廊沿建筑长边依次展开,成为开放式的会面,洽谈和合作空间,满足多种临时性的会客需要,多功能会客厅和会议室位于该商业街的尽头。

内部空间
彭博中心配备最基本的教育教学空间。其多样的教学区域构成了该校灵活多变的教学模式。合作办公空间与沉静私密的私人学习空间是该校区设计中同等重要。因此,校区除设立各种传统的教室和大型开放研讨室之外,还特别设计了一系列舒适的环境,社交区域,团队合作工作室,个人工作室等满足学生的合作及个人工作模式,打造不同的工作体验。
为了迎合校区激发创意灵感的设计理念,彭博中心将百分之一的预算留给艺术。该校区委任众多杰出的当代艺术家包括Matthew Ritchie,Michael Riedel,Alison Elizabeth Taylor,和Matthew Day Jackson在由Morphosis设计的构筑物上创作艺术。此外,彭博中心还修复了Ilya Bolotowsky在WPA-era时代的壁画,该壁画在2014年展示结束后,在罗斯福岛前金水纪念医院被发现。

交通空间/教室

合作办公空间/主要空间

公共空间/工作空间
作为较大的净零耗能学院建筑并达到LEED白金级评定标准,该建筑的基本能源来源于建筑本身。康奈尔大学采用多种途经来实现建筑节能。
建筑分离内部能量需求和荷载量,同时较大化利用可再生能源来维持建筑运行日常需要。其中,实现环境保护和节能减排的关键性步骤包括如下:
1.全电气化建筑:不采用矿物能源
2.太阳能:一个40,000平方英尺的顶棚覆盖1,465张光伏面板,在融合了工程和建筑需求的前提下,提供太阳能,并通过遮挡阳光来降低室内温度。
3.绿色屋顶:通过在东南部户外露台上种植本地物种,形成低维护成本绿色屋顶,可以帮助冷却屋顶表面,管理雨水径流。
4.智慧建造科技:由Morphosis和Arup工程团队共同设计的,智能连接性照明控制系统,占用传感器,安保和其他建筑控制系统为请求式能源和需求回应创造便利。
5.高隔热性立面:一个组合的,持续绝缘的金属板防水外墙系统,平衡了外部视觉效果和日光,增大节能绝缘,降低热导。项目实现了60%外墙覆盖绝缘隔热不透明材质,40%外墙覆盖高性能绝缘玻璃。
6.地热井:每呎400英尺的80个闭环地热井,位于校园主要公共休憩用地南草坪下。电动地源热泵通过热辐射对周边水体加热,并通过主动冷冻光束系统对建筑物进行冷却。
7.雨水收集系统:40,000加仑雨水收集池被埋在校园草坪内,作提供建筑的非饮用水,提供建筑冷却,灌溉等作用。
8.弹性:关键性建筑设备位于屋顶机械室,同时将地下室的占地面积和设备最小化。 建筑物的底层和入口门窗都被提升,以应对平原洪涝。
作为彭博中心新校区排名前列阶段的一部分,还包括一座首创的建筑形式,将高端科技公司与康奈尔大学学术研究团队紧密结合在一起。而该校区建筑,作为世界上较大的被动式房屋,符合最严格的国际能源效率标准。

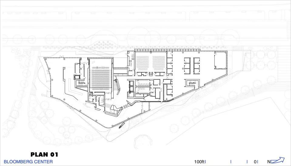
一层平面图

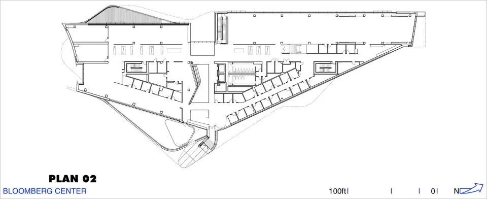
二层平面图

三层平面图

四层平面图

地下一层平面图

屋顶平面图

剖面图

东立面图

西立面图

北立面图

南立面图
本文来源:绿色建筑研习社
声明:本文由入驻焦点开放平台的作者撰写,除焦点官方账号外,观点仅代表作者本人,不代表焦点立场。


