联动价99000元/㎡,【杨浦置业长海项目】设计方案已公示
上海搜狐焦点 2023-01-13 14:55:19
用手机看
扫描到手机,新闻随时看
扫一扫,用手机看文章
更加方便分享给朋友
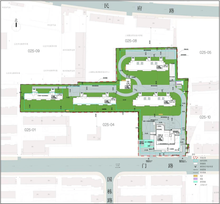
根据公示,项目将拟建3栋17层商品住宅,1栋5层商品住宅,1栋18层公租房,自持租赁住宅及配套楼(其1-2层为菜场)和1栋1层的KT电站,并设置2层地下车库。
去年7月,上海第二批次土拍中,杨浦置业以20.8816亿竞得杨浦区长海社区025-07地块(长海路街道332街坊)地块,地块出让面积16638.7㎡,容积率2.5,溢价率0%,成交楼板价50200元/㎡,房地联动价99000元/㎡。
如今项目设计方案已公示,等待入市。
根据公示,项目将拟建3栋17层商品住宅,1栋5层商品住宅,1栋18层公租房,自持租赁住宅及配套楼(其1-2层为菜场)和1栋1层的KT电站,并设置2层地下车库。
规划方案如下:

项目信息:
地块名:杨浦区长海社区025-07地块(长海路街道332街坊)
四至范围:东至国和路,西至025-01地块,南至三门路,北至025-08、025-09地块
用地性质:普通商品房
声明:本文由入驻焦点开放平台的作者撰写,除焦点官方账号外,观点仅代表作者本人,不代表焦点立场。


