浦东中环旁,港城中环汇·云启将推建面约98-183㎡3-5房,联动价6.25万/㎡
扫描到手机,新闻随时看
扫一扫,用手机看文章
更加方便分享给朋友

去年12月1日,浦东新区北蔡御桥社区单元(Z00-0902)NH021b-05地块、NH021a-06地块、NH021b-09地块、NH021b-13地块,由上海港康企业管理有限公司(港城集团)竞得,以底价45.1433亿元成交,折合楼面价13489元/㎡。
地块出让面积157921㎡,为混合用地,NH021b-05地块租赁住房,NH021b-09地块普通商品房、办公楼,NH021a-06地块商业用地、办公楼、普通商品房,NH021b-13地块科研设计用地。

作为张江科学城区域的延伸,加上良好的工业园区基础,港城项目充分利用得天独厚的区域位置,高标准进行产业规划,以数字技术为赋能核心,依托“智慧2.5”为切入点,推动人工智能、5G、芯片等高附加值产业发展。
将打造集居住、办公、休憩、购物于一体的高品质“一站式”人才生活社区,建设具有核心竞争力的办公集群,建设康桥区域产业转型升级示范地。

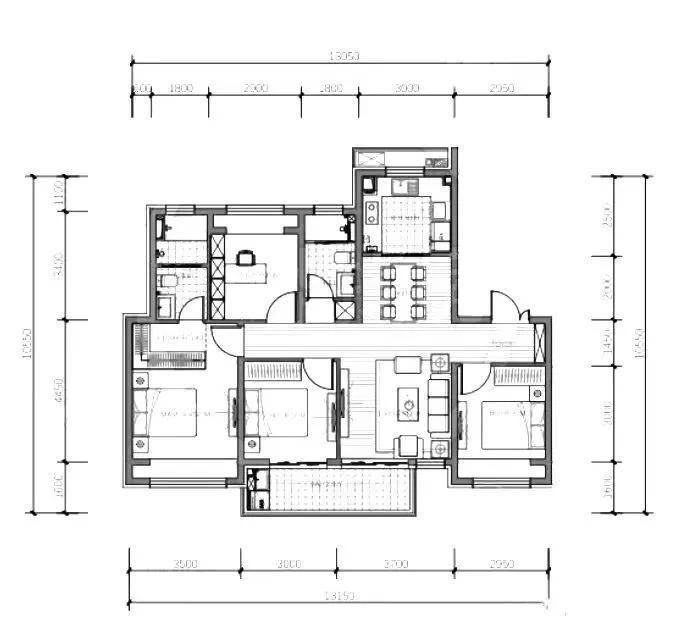
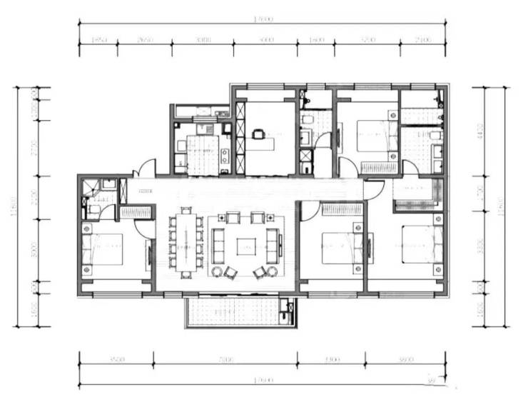
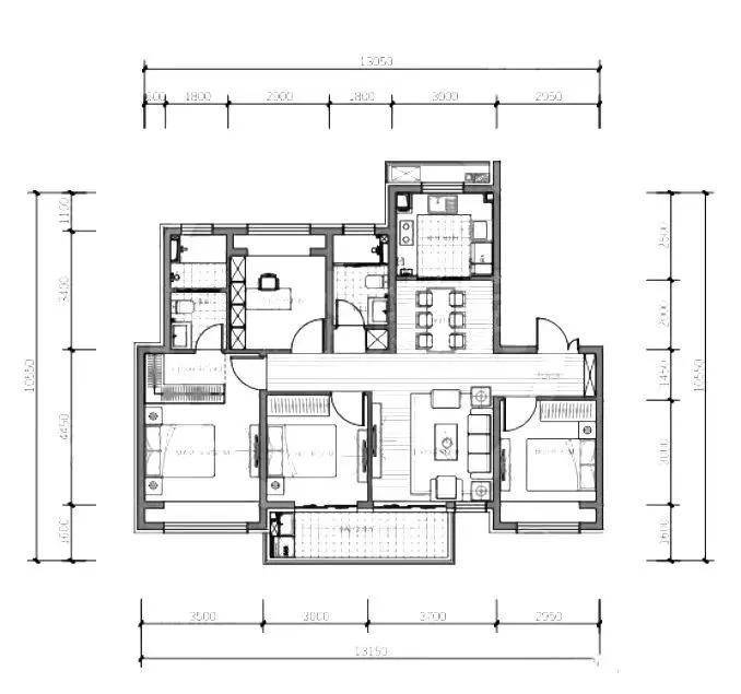
目前两个商品房地(即NH021a-06地块和NH021b-09地块)设计方案已经公示,根据设计方案显示,两个地块共拟建11栋17-18F高层住宅、1栋4-5F商业裙房、2栋12-13F办公塔楼以及部分配套用房,预计可售商品房约650套+。

根据出让合同要求得知,中小套户型不得低于70%,根据6.25万的联动价来估算,总价约600-700万。,预计今年上半年入市。
声明:本文由入驻焦点开放平台的作者撰写,除焦点官方账号外,观点仅代表作者本人,不代表焦点立场。


