17号线正地铁盘,国贸虹桥璟上即将上市,售楼处和样板房已开放!
上海搜狐焦点 2023-06-20 16:00:51
用手机看
扫描到手机,新闻随时看
扫一扫,用手机看文章
更加方便分享给朋友
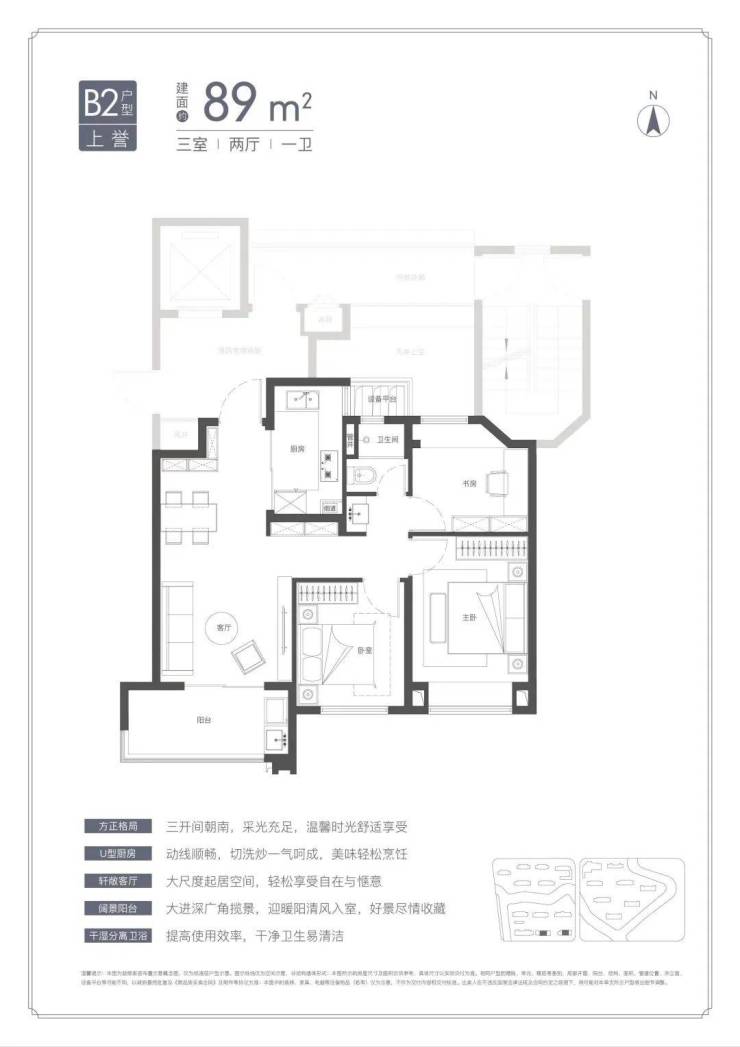
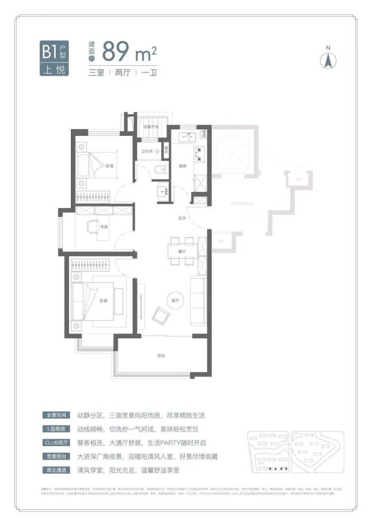
17号线700米正地铁盘国贸虹桥璟上售楼处、样板房已开放建面约82-129㎡2-4房即将上市联动价5.45万/㎡效果图项目打造全龄面积段,建面约82㎡两房两厅一卫、89㎡三房两厅一卫、105㎡三房两厅两卫以及…
项目打造全龄面积段,建面约82㎡两房两厅一卫、89㎡三房两厅一卫、105㎡三房两厅两卫以及129㎡四房两厅两卫。
声明:本文由入驻焦点开放平台的作者撰写,除焦点官方账号外,观点仅代表作者本人,不代表焦点立场。


