9号线50万方TOD,招商时代潮派预计5月入市!首开建面约89-125㎡3-4房
上海搜狐焦点 2024-04-18 14:31:47
用手机看
扫描到手机,新闻随时看
扫一扫,用手机看文章
更加方便分享给朋友
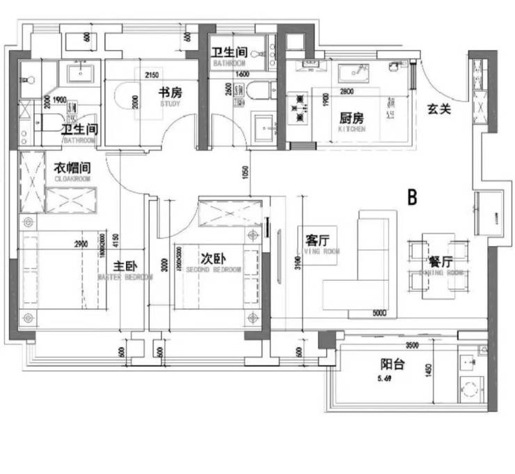
9号线泗泾站9站徐家汇约50万方TOD综合体招商时代潮派预计5月入市首开建面约89-99-125㎡3-4房联动价51100元/㎡七宝万科展厅已开放效果图源自网络效果图户型图如下:(过程稿仅供参考,最终以实际为…
效果图源自网络
效果图
声明:本文由入驻焦点开放平台的作者撰写,除焦点官方账号外,观点仅代表作者本人,不代表焦点立场。


