【招商时代乐章】官方户型出街!3月30日开放临时展厅!
上海搜狐焦点 2024-03-24 19:24:32
用手机看
扫描到手机,新闻随时看
扫一扫,用手机看文章
更加方便分享给朋友
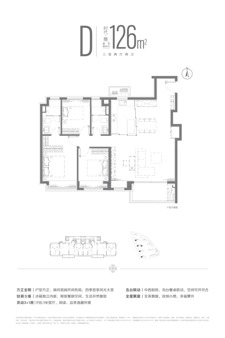
2023年4批次土拍,招商拿下宝山顾村地块,即潘广路TOD!项目案名发布【招商时代乐章】,指导价4.94万/m²,预计3月30日临时展厅开放,同步开启验资及样板房预约!项目官方户型图出街:根据设计方案,030…
2023年4批次土拍,招商拿下宝山顾村地块,即潘广路TOD!项目案名发布【招商时代乐章】,指导价4.94万/m²,预计3月30日临时展厅开放,同步开启验资及样板房预约!
项目官方户型图出街:









根据设计方案,0303-02地块地块方正,拟建设12栋17-18F高层住宅以及2栋社区配套,无保障住宅,共计规划901户。
而0309-04地块拟建8栋17-18F高层住宅、1栋17F保障住宅以及3栋1-3F商业,共计规划645户!
项目房地联动价为4.94万/㎡。
声明:本文由入驻焦点开放平台的作者撰写,除焦点官方账号外,观点仅代表作者本人,不代表焦点立场。


