约0.36容积率,湖滨半岛低密宅院!万科掌心湖·原舍12.2认购
上海搜狐焦点 2022-12-01 14:27:17
用手机看
扫描到手机,新闻随时看
扫一扫,用手机看文章
更加方便分享给朋友
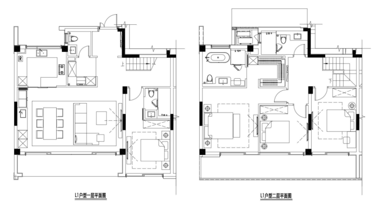
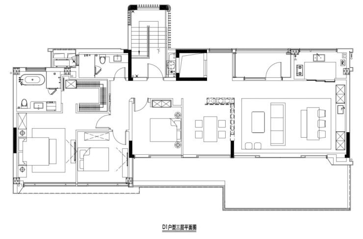
安亭新镇一期收官之作,约0.36容积率,「掌心湖·原舍」已取证,将于12月2日开启认购。项目将推出建面约180-360㎡大平层、叠加、合院,均价仅约5.04万/㎡,总价约800万起。本次推出的户型包括平层、叠…
安亭新镇一期收官之作,约0.36容积率,「掌心湖·原舍」已取证,将于12月2日开启认购。项目将推出建面约180-360㎡大平层、叠加、合院,均价仅约5.04万/㎡,总价约800万起。
本次推出的户型包括平层、叠加、合院,选择丰富!总共209套房源,主力户型是建面约190㎡叠加、建面约180㎡平层。


声明:本文由入驻焦点开放平台的作者撰写,除焦点官方账号外,观点仅代表作者本人,不代表焦点立场。


