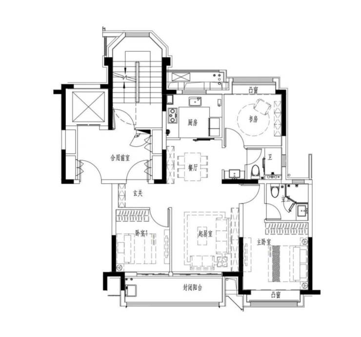
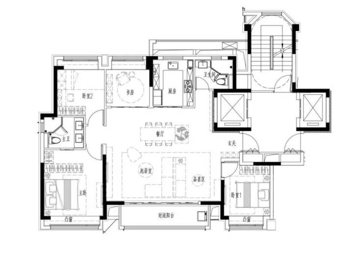
华发古美华府预计一季度入市,首开300余套107-145㎡3-4房
上海搜狐焦点 2023-01-29 15:19:59
用手机看
扫描到手机,新闻随时看
扫一扫,用手机看文章
更加方便分享给朋友
联动价8.25万/㎡
声明:本文由入驻焦点开放平台的作者撰写,除焦点官方账号外,观点仅代表作者本人,不代表焦点立场。


