浦东2号线地铁盘!「东岸观邸·云尚丹霞」二期洋房将加推,户型图曝光
扫描到手机,新闻随时看
扫一扫,用手机看文章
更加方便分享给朋友

最新消息,浦东川沙2号线凌空路站旁,东岸观邸·云尚丹霞二期即将加推。
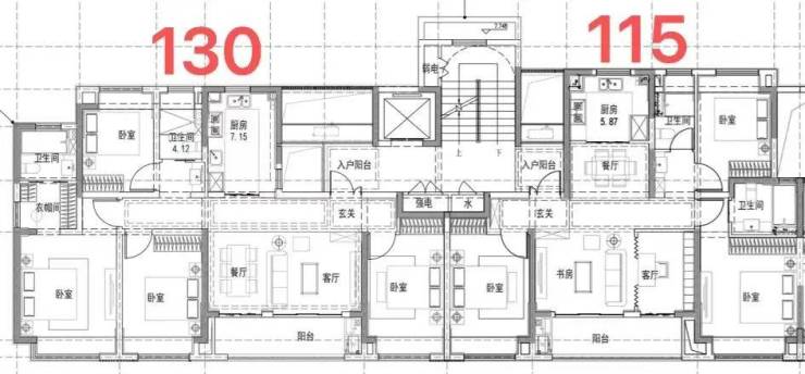
二期产品皆为洋房,待开楼栋号1、3、6#,户型为建筑面积约115平以及130平,其中115平49套、130平35套。户型皆为大面宽设计,还是相当惊艳的。
另外,目前少量建面约83-96㎡3房,均价6.4万/㎡,无需积分 持续热销中。

附上项目最新效果图:


样板间实拍图


东岸观邸·云尚丹霞位于浦东川沙,直线距离2号线凌空路站约800米。
从凌空路站进站后,4站可达唐镇,7站可达张江高科,11站可达世纪大道,然后一路畅通陆家嘴、南京路、人广等商圈。
自驾出行,项目比邻华夏高架、迎宾高速,可分别直达张江科学城与上海国际旅游度假区;申嘉湖高速环绕周边,则可直接串联长三角重要城市群。
商业方面,项目周边约2KM内涵盖多个商业综合体,包括百联川沙购物中心、绿地东海岸国际广场、浦东现代商业广场等。稍远一些,还有金汇商业广场、佛罗伦萨小镇上海名品奥特莱斯等。
另外期待的是,凌空路站本身规划了一个地铁上盖的商业中心,同时东岸观邸大盘开发自带商业。


教育资源方面,项目周边有观澜小学、川沙中学等学校,而且项目本身也有教育规划用地(预售房屋不划分学区,仅为提供相关信息参考)。
医疗配套方面,项目周边有浦东新区人民医院、浦东新区中医医院、上海安平医院等优质医疗资源,为全家庭健康保驾护航。

生态氛围也较为优越,周边川沙公园、川沙广场、川沙古城墙公园、北城绿地公园、浦东运河等城市公园和绿地环绕,让业主畅享家门口的鲜氧生活。

而项目本身,东岸观邸是一个约54公顷超级大盘,以“两轴一湾四组团”格局,规划了居住、商业、公共服务、绿地等多元业态,构建了一座机能丰富的理想之城!
而云尚丹霞正是项目的首发地块!于浦东运河畔,以1.5容积率,打造高层、洋房两大定制级场域,构筑低密、生态、舒适的湾岸住区。
声明:本文由入驻焦点开放平台的作者撰写,除焦点官方账号外,观点仅代表作者本人,不代表焦点立场。


