万科嘉定新城项目预计首推建面约89-175㎡3-4房,联动价5.04万/㎡
扫描到手机,新闻随时看
扫一扫,用手机看文章
更加方便分享给朋友

2022年9月,上海第三批次土拍中,中建二局以总价约643607万元,竞得嘉定区嘉定新城E19A-1、E19B-1、E20A-3、E20B-1、E20C-1、E20D-3地块,地块出让面积141581.2㎡,成交楼板价17460元/㎡,房地联动价50400/㎡。


根据公示,项目拟建22栋住宅,4栋办公,3栋商业以及3栋社区配套用房以及相应的配电房、垃圾房、地下车库。
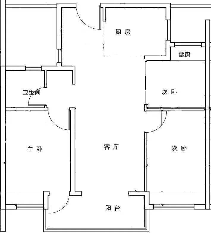
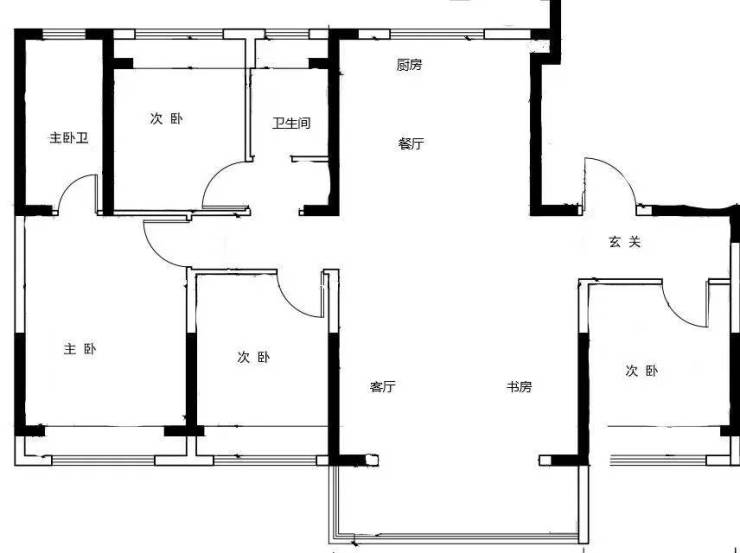
项目预计一季度入市销售。产品方面,首推户型包括:建面约89㎡3房2厅1卫、约103㎡3房2厅2卫、约128㎡3+1房2厅2卫、约145㎡4房2厅2卫、建面约175㎡4房2厅2卫。户型图如下:(过程稿仅供参考,最终以开发商发布为准)
声明:本文由入驻焦点开放平台的作者撰写,除焦点官方账号外,观点仅代表作者本人,不代表焦点立场。


